WI
Sellons Avenue, London, NW10
By Winkworth
£ 2,400
Winkworth says ..
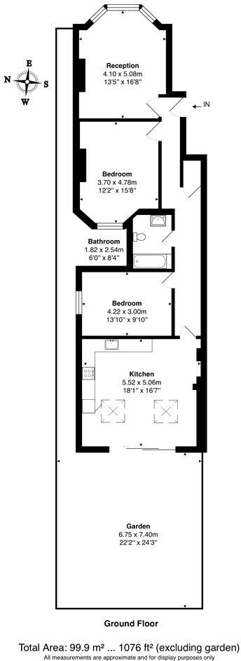
NEW - Introducing this 1,070+ sq. ft. three bedroom, garden apartment to the letting market offering spacious lateral living over the ground floor of this Victorian conversion.
- Bedrooms
- 3
- Bathrooms
- 1
The heatmap indicates the level of crime in the area. The color of the heatmap indicates the crime severity and recency.
Metrics Year-on-Year
- Average area value
- 745,000.00 £Decreased by 11.71 %
- Average area rental value
- 2,378.00 £/moIncreased by 14.49 %
- Est rental Yield
- 3.83 %Increased by 29.83 %
- Crime Rate
- 14.00 %Unchanged by 0.00 %
from 843,775.00 £
from 2,077.00 £/mo
from 2.95 %
from 14.00 %
Agent Activity
Winkworth created the listing.
Nearby Schools
| Name | Type | Ofsted | Distance |
|---|---|---|---|
| Roundwood School And Community Centre | Free Schools Alternative Provision | 0.30 KM | |
| Saint Claudine'S Catholic School For Girls | Academy Converter | Good | 0.42 KM |
| Newman Catholic College | Voluntary Aided School | Good | 0.42 KM |
| Maple Walk School | Other Independent School | 0.43 KM | |
| John Keble Cofe Primary School | Voluntary Aided School | Good | 0.45 KM |
Images
Nearby Streets
| Name | Average Price | Average Sqft | Distance |
|---|---|---|---|
| Rucklidge Passage | £ 0 | 0 | 0.00 KM |
| The Drive | £ 0 | 0 | 0.00 KM |
| Harlesden Plaza | £ 3,350,000 | 0 | 0.00 KM |
| Station Road | £ 0 | 0 | 0.00 KM |
| Caple Road | £ 350,000 | 0 | 0.00 KM |
Nearby Transport
| Name | NLC | TLC | Distance |
|---|---|---|---|
| Willesden Junction | 1457 | WIJ | 0.56 KM |
| Harlesden | 1521 | HDN | 1.63 KM |
| Kensal Green | 1447 | KNL | 2.12 KM |
| Kensal Rise | 1448 | KNR | 2.56 KM |
| Acton Main Line | 3000 | AML | 3.45 KM |
Nearby Listings
| Address | Price | Type | Score | Distance |
|---|---|---|---|---|
| Sellons Avenue, London, NW10 | £ 2,400 | RENT | Unknown | 0.00 KM |
| Park Parade, London, NW10 | £ 692 | RENT | Unknown | 0.06 KM |
| Sellons Avenue, London, NW10 | £ 2,250 | RENT | Unknown | 0.07 KM |
| Park Parade, London, NW10 | £ 1,200 | RENT | Unknown | 0.07 KM |
| Park Parade, London, NW10 | £ 1,100 | RENT | Unknown | 0.08 KM |
Nearby Properties
| Address | Price | Distance |
|---|---|---|
| 23 Park Parade | £ 1,600,000 | 0.06 KM |
| 22a Park Parade | £ 66,000 | 0.06 KM |
| 14b Sellons Avenue | £ 335,000 | 0.06 KM |
| 53 Park Parade | £ 340,000 | 0.07 KM |
| 49 Park Parade | £ 185,000 | 0.07 KM |