Hunters says ..
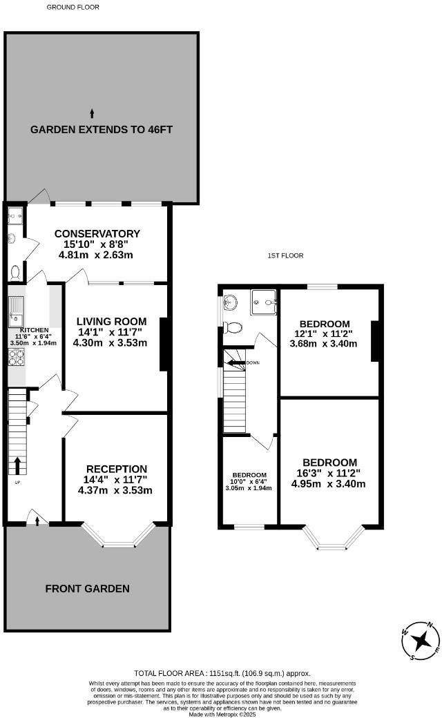
This freehold 3 bedroom semi-detached house offers fantastic potential to extend STPP. Currently consisting of two reception rooms and a kitchen on the ground floor as well as garden to rear which measures close to 50ft. The first floor offers three bedrooms and a family bathroom. Potential to ex...
Property Oracle says ..
This three-bedroom, two-bathroom house located in Cumbrian Gardens, Golders Green (NW2 1NR) is listed for £700,000. The property’s location offers convenient access to transport links via Cricklewood station and nearby schools, including highly rated primary schools. The area benefits from local shops and amenities. However, while the property is structurally sound, the interior requires modernisation and updates. The kitchen and bathrooms look dated and would benefit from a significant refurbishment. The included garden adds to the property’s appeal; however, its size is not specified and appears small. The asking price may be considered on the higher side, considering the required renovations, lack of precise plot size data, and the fact that the average house price for the street is nearly double the listed amount. Potential buyers should factor in costs associated with modernising the property. A property survey is crucial before purchase. In conclusion, this property is positioned in a desirable area but requires work, making it a project for a buyer willing to invest time and money in renovations.
Therefore, we give this property 5 / 10. *Disclaimer: This is our option and does constitute a recommendation or financial advice. Do your own research. *
- Price
- 6
- Condition
- 5
- Location
- 7
- Land
- 4
- Bedrooms
- 3
- Bathrooms
- 2
- Sqft (est)
- 1,150.66
The heatmap indicates the level of crime in the area. The color of the heatmap indicates the crime severity and recency.
Metrics Year-on-Year
- Average area value
- 864,995.00 £Decreased by 3.17 %
- Est sale value
- 372,813.84 £Decreased by 41.73 %
- Average area rental value
- 2,390.00 £/moIncreased by 6.32 %
- Est letting value
- 0.00 £/moDecreased by 100.00 %
- Est rental Yield
- 3.32 %Increased by 9.93 %
- Crime Rate
- 6.00 %Unchanged by 0.00 %
Agent Activity
Hunters created the listing.
Nearby Schools
| Name | Type | Ofsted | Distance |
|---|---|---|---|
| Claremont Primary School | Academy Converter | Good | 0.61 KM |
| St Agnes' Catholic Primary School | Voluntary Aided School | Outstanding | 0.63 KM |
| Wessex Gardens Primary School | Community School | Good | 0.71 KM |
| Childs Hill Primary School | Academy Converter | 0.71 KM | |
| Peninim | Other Independent School | Requires improvement | 1.02 KM |
Images
Nearby Streets
| Name | Average Price | Average Sqft | Distance |
|---|---|---|---|
| Cumbrian Gardens | £ 999,500 | 0 | 0.00 KM |
| Grampian Gardens | £ 0 | 0 | 0.00 KM |
| Malvern Gardens | £ 0 | 0 | 0.00 KM |
| Harman Close | £ 382,500 | 0 | 0.00 KM |
| Hudson Way | £ 625,000 | 0 | 0.00 KM |
Nearby Transport
| Name | NLC | TLC | Distance |
|---|---|---|---|
| Cricklewood | 1519 | CRI | 0.83 KM |
| Brondesbury | 1437 | BSY | 2.55 KM |
| Brondesbury Park | 1438 | BSP | 2.81 KM |
| West Hampstead Thameslink | 1525 | WHP | 2.97 KM |
| West Hampstead | 1421 | WHD | 3.09 KM |
Nearby Listings
| Address | Price | Type | Score | Distance |
|---|---|---|---|---|
| Cumbrian Gardens, London, NW2 | £ 700,000 | BUY | 5 / 10 | 0.00 KM |
| Pennine Drive, Golders Green Estate, ., London, NW2 1NR | £ 400,000 | BUY | 7 / 10 | 0.06 KM |
| 90 Cheviot Gardens, Cricklewood, London, NW2 1QA | £ 495,000 | BUY | 5 / 10 | 0.09 KM |
| Pennine Drive, Golders Green Estate, NW2 | £ 500,000 | BUY | 8 / 10 | 0.10 KM |
| Cheviot Gardens, London, NW2 | £ 750,000 | BUY | 6 / 10 | 0.14 KM |
Nearby Properties
| Address | Price | Distance |
|---|---|---|
| 73 Cumbrian Gardens | £ 550,000 | 0.06 KM |
| 85 Cumbrian Gardens | £ 660,000 | 0.06 KM |
| 81 Cumbrian Gardens | £ 320,000 | 0.06 KM |
| 99 Cumbrian Gardens | £ 590,000 | 0.06 KM |
| 59 Cumbrian Gardens | £ 725,000 | 0.13 KM |