Beswick Gardens, Rugby, Warwickshire CV22 7PP
By Fine & Country
£ 425,000
Reviews
3 out of 5 stars
Fine & Country says ..
A beautifully presented and extended semi-detached home in a highly desirable street near Bilton village
Property Oracle says ..
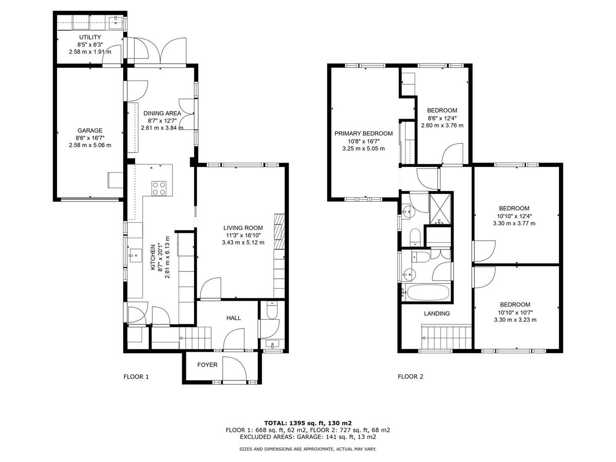
The property is a 4-bedroom, 2-bathroom semi-detached house located in Beswick Gardens, Rugby, Warwickshire. It benefits from its proximity to several good schools and the Rugby train station. The property itself appears to be in excellent condition, with a recently modernised kitchen and bathrooms. Images show a well-maintained garden. The list price of £425,000 is higher than the average price for the area, but the property’s larger size and superior condition justify this difference to some extent. Considering the modernisations, the good location, and the presence of a garden, the asking price appears reasonable within the context of the local market.
Therefore, we give this property 7 / 10. *Disclaimer: This is our option and does constitute a recommendation or financial advice. Do your own research. *
- Price
- 7
- Condition
- 9
- Location
- 8
- Land
- 7
- Bedrooms
- 4
- Bathrooms
- 2
- Sqft (est)
- 1,399.31
The heatmap indicates the level of crime in the area. The color of the heatmap indicates the crime severity and recency.
Metrics Year-on-Year
- Average area value
- 310,824.00 £Decreased by 10.74 %
- Est sale value
- 552,727.45 £Increased by 23.05 %
- Average area rental value
- 798.00 £/moDecreased by 43.28 %
- Est letting value
- 1,399.31 £/moUnchanged by 0.00 %
- Est rental Yield
- 3.08 %Decreased by 36.49 %
- Crime Rate
- 2.00 %Unchanged by 0.00 %
Agent Activity
Fine & Country created the listing.
Nearby Schools
| Name | Type | Ofsted | Distance |
|---|---|---|---|
| Rugby High School | Academy Converter | 0.32 KM | |
| Crescent School | Other Independent School | 0.45 KM | |
| Bilton Infant School | Community School | Good | 0.53 KM |
| Bilton Cofe Junior School | Voluntary Controlled School | Good | 0.71 KM |
| Bawnmore Community Infant School | Community School | Good | 0.80 KM |
Images
Nearby Streets
| Name | Average Price | Average Sqft | Distance |
|---|---|---|---|
| Jasmine Way | £ 325,000 | 0 | 0.00 KM |
| Jasmine Way | £ 269,950 | 0 | 0.00 KM |
| Laburnum Grove | £ 280,000 | 0 | 0.00 KM |
| Arden Close | £ 240,000 | 0 | 0.00 KM |
| Lime Tree Avenue | £ 0 | 0 | 0.00 KM |
Nearby Transport
| Name | NLC | TLC | Distance |
|---|---|---|---|
| Rugby | 1087 | RUG | 4.91 KM |
Nearby Listings
| Address | Price | Type | Score | Distance |
|---|---|---|---|---|
| Beswick Gardens, Rugby, Warwickshire CV22 7PP | £ 425,000 | BUY | 7 / 10 | 0.00 KM |
| Longrood Road, Rugby | £ 725,000 | BUY | 7 / 10 | 0.12 KM |
| Beswick Gardens, Rugby, Warwickshire | £ 265,000 | BUY | 6 / 10 | 0.21 KM |
| Dalkeith Avenue, Bilton | £ 715,000 | BUY | 7 / 10 | 0.21 KM |
| Hampden Way, Bilton, Rugby | £ 459,950 | BUY | 7 / 10 | 0.21 KM |
Nearby Properties
| Address | Price | Distance |
|---|---|---|
| 9 Beswick Gardens | £ 288,000 | 0.07 KM |
| 43 Beswick Gardens | £ 258,000 | 0.07 KM |
| 44 Beswick Gardens | £ 157,500 | 0.07 KM |
| 40 Beswick Gardens | £ 259,950 | 0.07 KM |
| 14 Beswick Gardens | £ 179,000 | 0.07 KM |