Robert Luff & Co says ..
Robert Luff & Co are delighted to offer to the market this freehold piece of land in this highly popular residential area of West Worthing with local shops, schools, parks, the beach and mainline stations all nearby. The land is being sold with residential development possibilities (subject to pl...
Property Oracle says ..
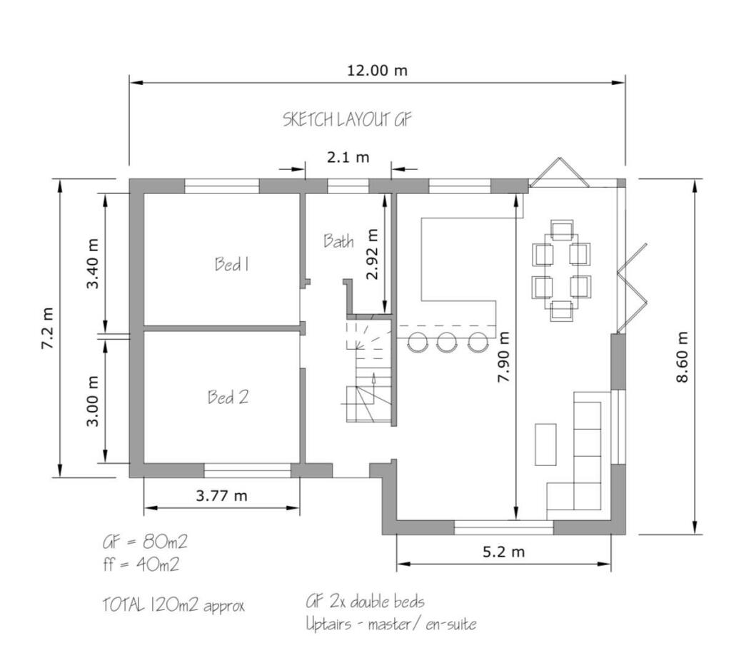
This listing is for a piece of land in Heene, Worthing, marketed for residential development. The location is generally desirable, being relatively close to amenities such as shops, schools, parks and the beach, along with train station access. However, the precise location on Manor Road and its surrounding characteristics should be assessed to gain a clearer picture of its desirability. The plans show a proposed two-bedroom property with a small garden. This represents a modest development opportunity, especially considering the proximity to other properties on Manor Road, that are considerably larger and higher valued (845,000 for example). Further information is required to determine the feasibility and potential profitability of the development plans. The price is not unreasonable in the context of the local market, with neighboring properties exhibiting a broad range of values, indicating the need for a thorough market analysis of comparable land plots. The absence of key data such as plot size in sq ft and the lack of photos hinder a full and comprehensive analysis. A site visit would be advantageous to ascertain current land condition and suitability. A surveyor’s report, structural survey and environmental survey would be recommended before any purchase.
Therefore, we give this property 5 / 10. *Disclaimer: This is our option and does constitute a recommendation or financial advice. Do your own research. *
- Price
- 6
- Condition
- 5
- Location
- 7
- Land
- 4
- Bedrooms
- 0
- Bathrooms
- 0
The heatmap indicates the level of crime in the area. The color of the heatmap indicates the crime severity and recency.
Metrics Year-on-Year
- Average area value
- 285,000.00 £Decreased by 9.41 %
- Average area rental value
- 1,252.00 £/moIncreased by 3.30 %
- Est rental Yield
- 5.27 %Increased by 14.07 %
- Crime Rate
- 4.00 %Unchanged by 0.00 %
Agent Activity
Robert Luff & Co marked this listing as sold.
Robert Luff & Co created the listing.
Nearby Schools
| Name | Type | Ofsted | Distance |
|---|---|---|---|
| Heene Cofe Primary School | Voluntary Aided School | Requires improvement | 1.06 KM |
| St Mary'S Catholic Primary School | Academy Sponsor Led | Good | 1.08 KM |
| Our Lady Of Sion School | Other Independent School | 1.18 KM | |
| Footprints Children And Family Centre | Children's Centre | 1.25 KM | |
| Reflections Small School | Other Independent School | Good | 1.42 KM |
Images
Nearby Streets
| Name | Average Price | Average Sqft | Distance |
|---|---|---|---|
| Lansdowne Road | £ 360,000 | 0 | 0.00 KM |
| High Beeches | £ 515,000 | 0 | 0.00 KM |
| Bath Road | £ 0 | 0 | 0.00 KM |
| Tennyson Road | £ 0 | 0 | 0.00 KM |
| Norfolk Street | £ 0 | 0 | 0.00 KM |
Nearby Transport
| Name | NLC | TLC | Distance |
|---|---|---|---|
| West Worthing | 5278 | WWO | 1.15 KM |
| Worthing | 5279 | WRH | 1.57 KM |
| Durrington-On-Sea | 5282 | DUR | 2.81 KM |
| East Worthing | 5283 | EWR | 3.82 KM |
| Goring-By-Sea | 5272 | GBS | 5.14 KM |
Nearby Listings
| Address | Price | Type | Score | Distance |
|---|---|---|---|---|
| Manor Road, Worthing | £ 250,000 | BUY | 5 / 10 | 0.00 KM |
| Manor Road, Worthing | £ 925,000 | BUY | 7 / 10 | 0.04 KM |
| Shrewsbury Court, Manor Road, Worthing | £ 325,000 | BUY | 6 / 10 | 0.05 KM |
| Waverley Court, Rowlands Road, Worthing, West Sussex, BN11 | £ 250,000 | BUY | 5 / 10 | 0.05 KM |
| Shrewsbury Court 21-23, Manor Road, Worthing, BN11 | £ 285,000 | BUY | 6 / 10 | 0.05 KM |
Nearby Properties
| Address | Price | Distance |
|---|---|---|
| 19 Manor Road | £ 550,000 | 0.06 KM |
| 10a Manor Road | £ 39,600 | 0.06 KM |
| 10b Manor Road | £ 59,000 | 0.06 KM |
| 6 Manor Road | £ 845,000 | 0.06 KM |
| 12 Manor Road | £ 655,000 | 0.06 KM |