Pearsons says ..
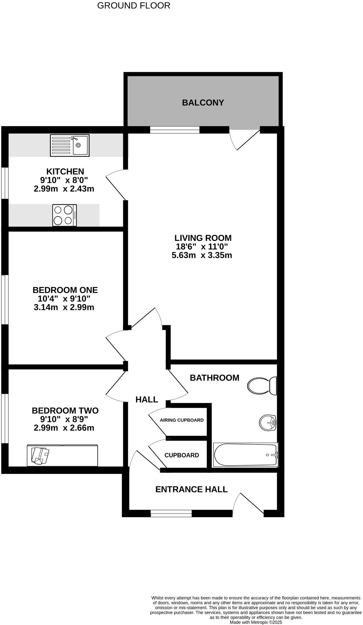
A two bedroom upper ground floor flat located within this popular development WITH THE BENEFIT OF AN EXTENDED LEASE, its own south-facing balcony and secure underground parking. The property's accommodation briefly comprises of a communal entrance with security entry system, private entrance, two...
Property Oracle says ..
This is a 2-bedroom apartment in Fareham, listed for £180,000. The interior appears to be in good, modern condition. The property benefits from a balcony and access to communal gardens. While the building exterior shows some signs of age, the location offers convenient access to local amenities and transport links. The price appears competitive for the area and property type.
Therefore, we give this property 6 / 10. *Disclaimer: This is our option and does constitute a recommendation or financial advice. Do your own research. *
- Price
- 8
- Condition
- 7
- Location
- 7
- Land
- 5
- Bedrooms
- 2
- Bathrooms
- 1
- Sqft (est)
- 467.46
The heatmap indicates the level of crime in the area. The color of the heatmap indicates the crime severity and recency.
Metrics Year-on-Year
- Average area value
- 429,993.00 £Increased by 1.22 %
- Est sale value
- 179,037.18 £Increased by 9.12 %
- Average area rental value
- 1,850.00 £/moIncreased by 33.29 %
- Est letting value
- 467.46 £/moUnchanged by 0.00 %
- Est rental Yield
- 5.16 %Increased by 31.63 %
- Crime Rate
- 0.00 %
Agent Activity
Pearsons created the listing.
Nearby Schools
| Name | Type | Ofsted | Distance |
|---|---|---|---|
| St Jude'S Catholic Primary School | Voluntary Aided School | Good | 0.61 KM |
| St Francis Special School | Community Special School | Good | 0.80 KM |
| Fareham College | Further Education | Outstanding | 0.83 KM |
| Wallisdean Infant School | Community School | Outstanding | 0.85 KM |
| Heathfield Special School | Community Special School | Good | 0.86 KM |
Images
Nearby Streets
| Name | Average Price | Average Sqft | Distance |
|---|---|---|---|
| Brendon Road | £ 269,950 | 0 | 0.00 KM |
| New Broadlaw | £ 120,000 | 0 | 0.00 KM |
| Gold Close | £ 0 | 0 | 0.00 KM |
| Craven Court | £ 315,000 | 0 | 0.00 KM |
| Sandisplatt | £ 254,975 | 0 | 0.00 KM |
Nearby Transport
| Name | NLC | TLC | Distance |
|---|---|---|---|
| Fareham | 5900 | FRM | 1.64 KM |
| Swanwick | 5920 | SNW | 7.11 KM |
| Portchester | 5928 | PTC | 9.12 KM |
| Botley | 5894 | BOE | 9.34 KM |
Nearby Listings
| Address | Price | Type | Score | Distance |
|---|---|---|---|---|
| WILLOW COURT, FAREHAM | £ 180,000 | BUY | 6 / 10 | 0.00 KM |
| Cleveland Drive, Fareham | £ 330,000 | BUY | 7 / 10 | 0.05 KM |
| Cleveland Drive, Fareham, PO14 | £ 150,000 | BUY | 5 / 10 | 0.05 KM |
| Cleveland Drive, Fareham, Hampshire, PO14 | £ 180,000 | BUY | 6 / 10 | 0.08 KM |
| The Avenue, Fareham | £ 875,000 | BUY | 8 / 10 | 0.10 KM |
Nearby Properties
| Address | Price | Distance |
|---|---|---|
| 33 Cleveland Drive | £ 175,000 | 0.05 KM |
| 18 Cleveland Drive | £ 165,000 | 0.05 KM |
| 26 Cleveland Drive | £ 183,000 | 0.05 KM |
| 59 Cleveland Drive | £ 290,000 | 0.05 KM |
| 20 Cleveland Drive | £ 228,000 | 0.05 KM |