Courtney Green says ..
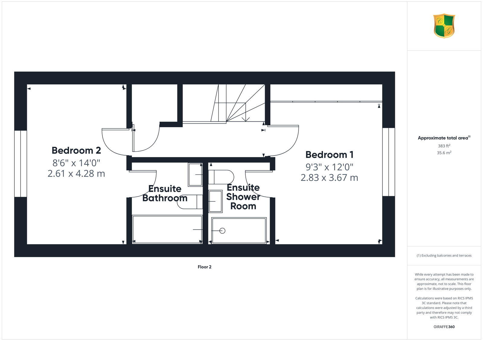
An nearly new and immaculately presented two double bedroom, two bathroom Berkeley Home, located on the popular Broadacres development in Southwater Village. NO CHAIN
Property Oracle says ..
Therefore, we give this property 7 / 10. *Disclaimer: This is our option and does constitute a recommendation or financial advice. Do your own research. *
- Price
- 8
- Condition
- 9
- Location
- 7
- Land
- 7
- Bedrooms
- 2
- Bathrooms
- 2
- Sqft (est)
- 794.00
The heatmap indicates the level of crime in the area. The color of the heatmap indicates the crime severity and recency.
Metrics Year-on-Year
- Average area value
- 511,071.00 £Increased by 4.04 %
- Est sale value
- 474,812.00 £Increased by 58.20 %
- Average area rental value
- 1,750.00 £/moIncreased by 11.96 %
- Est letting value
- 1,588.00 £/moIncreased by 100.00 %
- Est rental Yield
- 4.11 %Increased by 7.59 %
- Crime Rate
- 8.00 %Unchanged by 0.00 %
from 491,248.00 £
from 300,132.00 £
from 1,563.00 £/mo
from 794.00 £/mo
from 3.82 %
from 8.00 %
Agent Activity
Courtney Green created the listing.
Nearby Schools
| Name | Type | Ofsted | Distance |
|---|---|---|---|
| Southwater Children And Family Centre | Children's Centre | 0.85 KM | |
| Southwater Infant Academy | Academy Converter | 0.90 KM | |
| Southwater Junior Academy | Academy Converter | Good | 0.93 KM |
| Castlewood Primary School | Community School | Good | 1.82 KM |
| Christ'S Hospital | Other Independent School | 2.31 KM |
Images
Nearby Streets
| Name | Average Price | Average Sqft | Distance |
|---|---|---|---|
| Balchin Place | £ 0 | 0 | 0.00 KM |
| Kensett Avenue 29. 31 & 33 | £ 785,000 | 0 | 0.00 KM |
| Amber Glade | £ 0 | 0 | 0.00 KM |
| Chessal Avenue | £ 578,636 | 0 | 0.00 KM |
| The Gables | £ 425,000 | 0 | 0.00 KM |
Nearby Transport
| Name | NLC | TLC | Distance |
|---|---|---|---|
| Christs Hospital | 5319 | CHH | 3.10 KM |
| Horsham | 5309 | HRH | 6.36 KM |
| Littlehaven | 5498 | LVN | 8.33 KM |
| Warnham | 5316 | WNH | 8.33 KM |
Nearby Listings
| Address | Price | Type | Score | Distance |
|---|---|---|---|---|
| Southwater, RH13 9JX | £ 450,000 | BUY | 7 / 10 | 0.00 KM |
| Parsons Grove, Southwater, RH13 | £ 600,000 | BUY | 7 / 10 | 0.12 KM |
| Church Lane, Southwater | £ 775,000 | BUY | 7 / 10 | 0.15 KM |
| College Road, Southwater, Horsham, West Sussex | £ 248,000 | BUY | 7 / 10 | 0.20 KM |
| College Road, Southwater, Horsham, West Sussex | £ 375,000 | BUY | 7 / 10 | 0.20 KM |
Nearby Properties
| Address | Price | Distance |
|---|---|---|
| 24 College Road | £ 173,500 | 0.16 KM |
| 42 College Road | £ 169,000 | 0.16 KM |
| 40 College Road | £ 330,000 | 0.16 KM |
| Fair Acres | £ 860,000 | 0.17 KM |
| 16 Ash Road | £ 194,000 | 0.18 KM |