Langham Grove, Maidstone, Kent, ME16
By Leafy Estates
£ 375,000
Reviews
3 out of 5 stars
Leafy Estates says ..
We are delighted to bring to the market this semi-detached bungalow in the sought-after area of Allington on a quiet and very well established residential road.
Property Oracle says ..
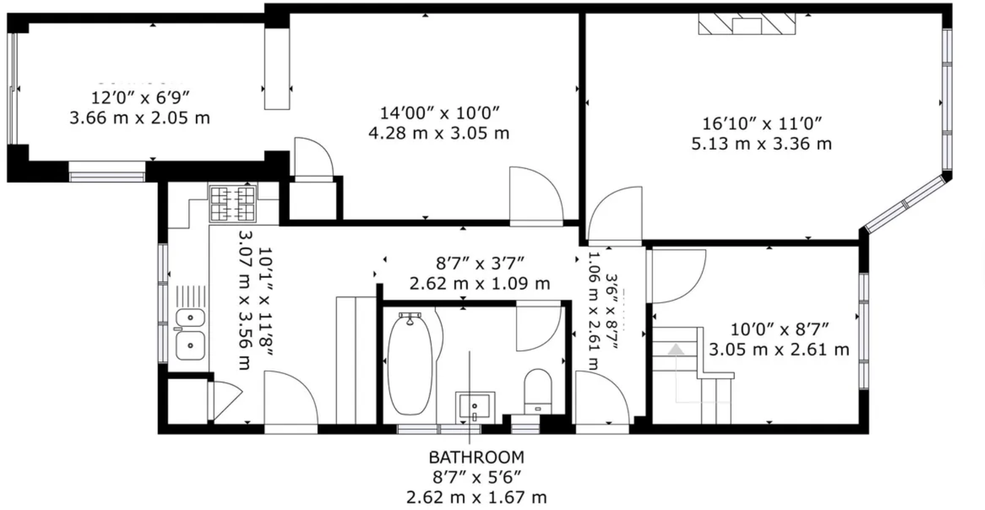
The property is a semi-detached bungalow located in Langham Grove, Maidstone, Kent. It has two bedrooms and one bathroom, and is 1,339.46 square feet. The asking price is £375,000.
The property appears to be in good condition based on the provided images. The kitchen and bathroom have been recently updated, and the rest of the property seems well-maintained. There is a garden, although the exact size is not specified.
The location is good, with several schools and transportation options nearby. St Simon Stock Catholic School, St Francis’ Catholic Primary School, St Augustine Academy, Oakwood Park Grammar School, and Palace Wood Primary School are all within a kilometer of the property. Maidstone Barracks, Maidstone West, Barming, East Farleigh, and Maidstone East train stations are also within a reasonable distance.
Considering the average price per square foot in the area is £391, and this property is slightly larger than average at 1,339.46 sqft, the asking price of £375,000 seems reasonable. Nearby comparable properties on Langham Grove itself range from £185,000 to £325,000, suggesting that the asking price is at the higher end but not unreasonable given the apparent condition and location. The average price in the area is £402,872, further supporting the reasonableness of the asking price.
Based on the images, the property includes a garden and patio area. The property appears modern and well-maintained.
Therefore, we give this property 7 / 10. *Disclaimer: This is our option and does constitute a recommendation or financial advice. Do your own research. *
- Price
- 7
- Condition
- 8
- Location
- 8
- Land
- 7
- Bedrooms
- 2
- Bathrooms
- 1
- Sqft (est)
- 1,339.46
The heatmap indicates the level of crime in the area. The color of the heatmap indicates the crime severity and recency.
Metrics Year-on-Year
- Average area value
- 320,968.00 £Decreased by 12.07 %
- Est sale value
- 472,829.38 £Decreased by 10.63 %
- Average area rental value
- 1,437.00 £/moDecreased by 3.56 %
- Est letting value
- 1,339.46 £/moUnchanged by 0.00 %
- Est rental Yield
- 5.37 %Increased by 9.59 %
- Crime Rate
- 1.00 %Unchanged by 0.00 %
Agent Activity
Leafy Estates created the listing.
Nearby Schools
| Name | Type | Ofsted | Distance |
|---|---|---|---|
| St Simon Stock Catholic School | Academy Converter | Good | 0.27 KM |
| St Francis' Catholic Primary School, Maidstone | Voluntary Aided School | Good | 0.29 KM |
| St Augustine Academy | Academy Sponsor Led | Good | 0.58 KM |
| Oakwood Park Grammar School | Academy Converter | Good | 0.62 KM |
| Palace Wood Primary School | Community School | Good | 0.94 KM |
Images
Nearby Streets
| Name | Average Price | Average Sqft | Distance |
|---|---|---|---|
| Speldhurst Court | £ 0 | 0 | 0.00 KM |
| Roseleigh Avenue | £ 0 | 0 | 0.00 KM |
| Beech Drive | £ 600,000 | 0 | 0.00 KM |
| Pine Lodge | £ 115,000 | 0 | 0.00 KM |
| The Russets | £ 500,000 | 0 | 0.00 KM |
Nearby Transport
| Name | NLC | TLC | Distance |
|---|---|---|---|
| Maidstone Barracks | 5237 | MDB | 1.85 KM |
| Maidstone West | 5222 | MDW | 2.10 KM |
| Barming | 5133 | BMG | 2.31 KM |
| East Farleigh | 5234 | EFL | 2.62 KM |
| Maidstone East | 5115 | MDE | 2.66 KM |
Nearby Listings
| Address | Price | Type | Score | Distance |
|---|---|---|---|---|
| Langham Grove, MAIDSTONE, Kent, ME16 | £ 450,000 | BUY | 6 / 10 | 0.00 KM |
| Langham Grove, Maidstone, Kent, ME16 | £ 375,000 | BUY | 7 / 10 | 0.00 KM |
| Shaftesbury Drive, Maidstone, Kent, ME16 | £ 350,000 | BUY | Unknown | 0.10 KM |
| Queens Road, Maidstone | £ 525,000 | BUY | 6 / 10 | 0.12 KM |
| Pine Cottage, Queens Road, Maidstone, Kent, ME16 0LD | £ 475,000 | BUY | 7 / 10 | 0.13 KM |
Nearby Properties
| Address | Price | Distance |
|---|---|---|
| 24 Langham Grove | £ 297,000 | 0.00 KM |
| 8 Langham Grove | £ 295,000 | 0.00 KM |
| 19 Langham Grove | £ 185,000 | 0.00 KM |
| 20 Langham Grove | £ 215,000 | 0.00 KM |
| 28 Langham Grove | £ 320,000 | 0.00 KM |