Oak Close, Chapel-En-Le-Frith
By Gascoigne Halman
£ 259,950
Reviews
3 out of 5 stars
Gascoigne Halman says ..
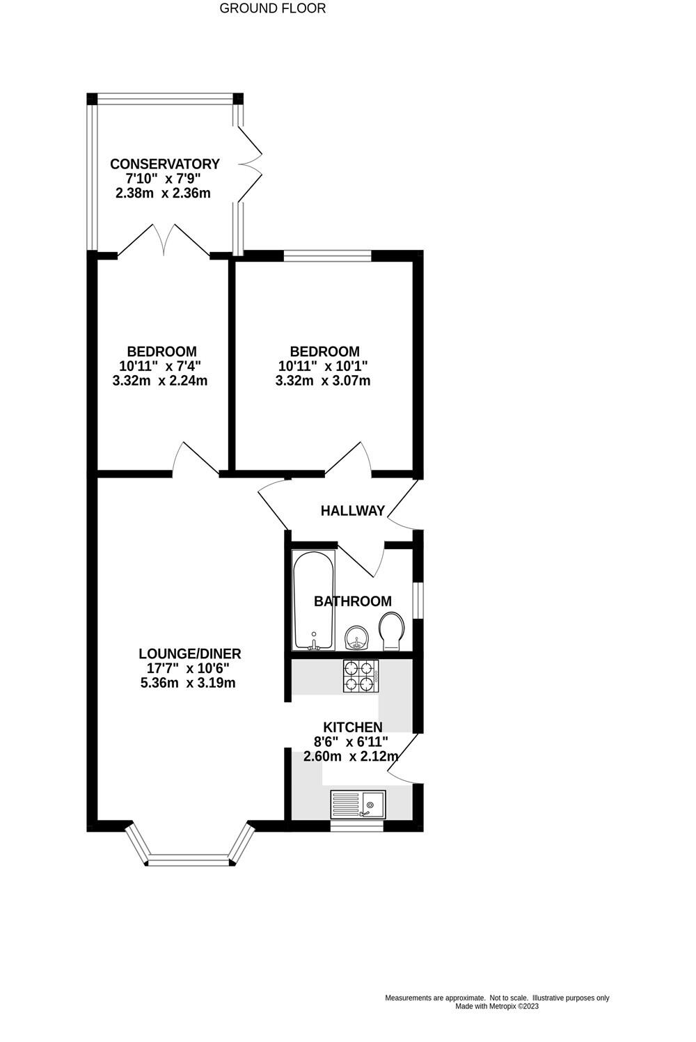
A beautiful presented and newly refurbished, conveniently located two bedroom detached bungalow with detached garage and conservatory to the rear. A modern fitted and bathroom have been install along with new flooring through the majority of the house and decoration throughout. Also boasting off ...
Property Oracle says ..
This two-bedroom detached bungalow in Chapel-en-le-Frith, Derbyshire, presents itself as a reasonably well-maintained property. Recent refurbishment is visible in the photographs, showcasing a modern bathroom and new flooring throughout. The kitchen and living areas also appear updated. The property is situated in Oak Close, Chapel West, offering a convenient location near local schools. Chapel-en-le-Frith High School and Chapel-en-le-Frith Cofe Vc Primary School are both within a reasonable distance and have received good Ofsted ratings. The proximity to the Chapel-en-le-Frith train station is a benefit for commuters. The inclusion of a detached garage and a small garden adds to the property’s appeal, although the garden’s size is somewhat limited. A potential drawback is the lack of comprehensive pricing data for similar properties in the area. In summary, this property presents a decent option for those seeking a recently refurbished, conveniently located home in Chapel-en-le-Frith. However, potential buyers should consider conducting their own thorough due diligence and market research to verify if the listed price accurately reflects the current market value.
Therefore, we give this property 6 / 10. *Disclaimer: This is our option and does constitute a recommendation or financial advice. Do your own research. *
- Price
- 6
- Condition
- 7
- Location
- 7
- Land
- 4
- Bedrooms
- 2
- Bathrooms
- 1
- Sqft (est)
- 837.00
The heatmap indicates the level of crime in the area. The color of the heatmap indicates the crime severity and recency.
Metrics Year-on-Year
- Average area value
- 334,167.00 £Increased by 24.23 %
- Est sale value
- 215,109.00 £Decreased by 19.44 %
- Average area rental value
- 1,252.00 £/moIncreased by 4.33 %
- Est letting value
- 0.00 £/moDecreased by 100.00 %
- Est rental Yield
- 4.50 %Decreased by 15.89 %
- Crime Rate
- 11.00 %Unchanged by 0.00 %
Agent Activity
Gascoigne Halman created the listing.
Nearby Schools
| Name | Type | Ofsted | Distance |
|---|---|---|---|
| Chapel-En-Le-Frith Cofe Vc Primary School | Voluntary Controlled School | Good | 0.42 KM |
| Chapel-En-Le-Frith High School | Community School | Good | 1.44 KM |
| Chinley Primary School | Foundation School | Good | 2.90 KM |
| The Meadows | Other Independent Special School | Outstanding | 3.25 KM |
| Dove Holes Cofe Primary School | Voluntary Controlled School | Good | 3.35 KM |
Images
Nearby Streets
| Name | Average Price | Average Sqft | Distance |
|---|---|---|---|
| Brookside Path | £ 420,000 | 0 | 0.00 KM |
| Heyworth Road | £ 0 | 0 | 0.00 KM |
| Park Crescent | £ 299,995 | 0 | 0.00 KM |
| Fernbank | £ 0 | 0 | 0.00 KM |
| Ash Mews | £ 0 | 0 | 0.00 KM |
Nearby Transport
| Name | NLC | TLC | Distance |
|---|---|---|---|
| Chapel-En-Le-Frith | 2762 | CEF | 1.33 KM |
| Dove Holes | 2766 | DVH | 3.07 KM |
| Chinley | 2823 | CLY | 4.47 KM |
| Buxton | 2946 | BUX | 6.57 KM |
| Whaley Bridge | 2772 | WBR | 8.42 KM |
Nearby Listings
| Address | Price | Type | Score | Distance |
|---|---|---|---|---|
| Oak Close, Chapel-En-Le-Frith | £ 259,950 | BUY | 6 / 10 | 0.00 KM |
| Lower Eaves Farm, High Peak, SK23 | £ 575,000 | BUY | 7 / 10 | 0.02 KM |
| Chapel-En-Le-Frith, Lower Eaves Farm, SK23 | £ 550,000 | BUY | Unknown | 0.03 KM |
| Thornbrook Road, Chapel-En-Le-Frith | £ 47,500 | BUY | 5 / 10 | 0.12 KM |
| Thornbrook Road, Chapel-En-Le-Frith, SK23 | £ 285,000 | BUY | 7 / 10 | 0.18 KM |
Nearby Properties
| Address | Price | Distance |
|---|---|---|
| 1 Lower Eaves View | £ 300,000 | 0.12 KM |
| 60 Warmbrook Road | £ 260,000 | 0.16 KM |
| 58 Warmbrook Road | £ 275,000 | 0.16 KM |
| 55 Warmbrook Road | £ 131,000 | 0.16 KM |
| 64 Warmbrook Road | £ 237,500 | 0.16 KM |