METEOR HOMES says ..
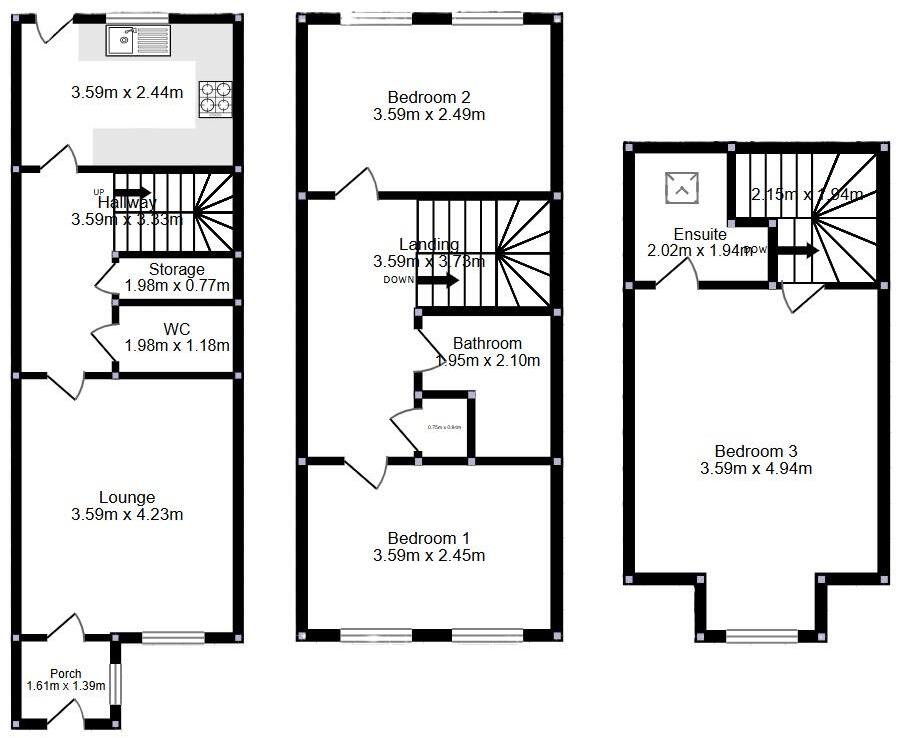
Meteor Homes are delighted to be offer this well presented three-bedroom town house to the market. The property is situated on Cleefield Drive, just off of Ladysmth Road, boasts three generously sized bedrooms with an en-suite to the master bedroom.
Property Oracle says ..
This three-bedroom property in Grimsby is listed at £157,000. Based on the provided images, the property appears to be in excellent condition, recently renovated or newly built. The kitchen and bathrooms are modern and well-equipped. The property benefits from a small, enclosed rear garden, ideal for outdoor seating. While the plot size is not specified, the garden appears relatively small. The location in Heneage, Grimsby, places it within reasonable proximity to schools (Welholme Academy, Edward Heneage Primary Academy, and Saint Mary’s Catholic Voluntary Academy are all within a kilometer) and transportation links (Grimsby Docks, New Clee, and Grimsby Town train stations are all within a 2km radius). Nearby property prices range from £55,000 to £165,000 for similar-sized properties, with the average price seemingly higher for properties with more modern finishes. Considering its condition, location, and amenities, the listed price of £157,000 appears to be in line with, or slightly above, the average for comparable properties in the area.
Therefore, we give this property 6 / 10. *Disclaimer: This is our option and does constitute a recommendation or financial advice. Do your own research. *
- Price
- 7
- Condition
- 9
- Location
- 7
- Land
- 4
- Bedrooms
- 3
- Bathrooms
- 2
- Sqft (est)
- 1,043.13
The heatmap indicates the level of crime in the area. The color of the heatmap indicates the crime severity and recency.
Metrics Year-on-Year
- Average area value
- 137,129.00 £Decreased by 23.46 %
- Est sale value
- 155,426.37 £Decreased by 12.87 %
- Average area rental value
- 586.00 £/moDecreased by 0.85 %
- Est letting value
- 0.00 £/mo
- Est rental Yield
- 5.13 %Increased by 29.55 %
- Crime Rate
- 12.00 %Unchanged by 0.00 %
Agent Activity
METEOR HOMES created the listing.
Nearby Schools
| Name | Type | Ofsted | Distance |
|---|---|---|---|
| Welholme Academy | Academy Converter | Good | 0.42 KM |
| Central Outreach | Children's Centre Linked Site | 0.45 KM | |
| Edward Heneage Primary Academy | Academy Sponsor Led | Good | 0.50 KM |
| Saint Mary'S Catholic Voluntary Academy | Academy Sponsor Led | Good | 0.72 KM |
| Special Educational Needs Support Service (Senss) | Miscellaneous | 0.80 KM |
Images
Nearby Streets
| Name | Average Price | Average Sqft | Distance |
|---|---|---|---|
| Fairbank Drive | £ 0 | 0 | 0.00 KM |
| Wragby Street | £ 0 | 0 | 0.00 KM |
| Ross Mews | £ 0 | 0 | 0.00 KM |
| Humberstone Road | £ 0 | 0 | 0.00 KM |
| The Square | £ 0 | 0 | 0.00 KM |
Nearby Transport
| Name | NLC | TLC | Distance |
|---|---|---|---|
| Grimsby Docks | 6276 | GMD | 1.58 KM |
| New Clee | 6289 | NCE | 1.74 KM |
| Grimsby Town | 6280 | GMB | 1.94 KM |
| Cleethorpes | 6274 | CLE | 4.46 KM |
| Great Coates | 6275 | GCT | 6.89 KM |
Nearby Listings
| Address | Price | Type | Score | Distance |
|---|---|---|---|---|
| Cleefield Drive, Grimsby | £ 160,000 | BUY | 6 / 10 | 0.03 KM |
| Cleefield Drive, Grimsby | £ 155,000 | BUY | 7 / 10 | 0.06 KM |
| Kristine Close, Grimsby, DN32 | £ 135,000 | BUY | 6 / 10 | 0.07 KM |
| Convamore Road, Grimsby, Lincolnshire, DN32 | £ 55,000 | BUY | Unknown | 0.07 KM |
| 323 Convamore Road, Grimsby DN32 9HZ | £ 15,000 | BUY | 6 / 10 | 0.07 KM |
Nearby Properties
| Address | Price | Distance |
|---|---|---|
| 344 Convamore Road | £ 28,000 | 0.11 KM |
| 358 Convamore Road | £ 60,000 | 0.11 KM |
| 365 Convamore Road | £ 81,950 | 0.11 KM |
| 354 Convamore Road | £ 32,000 | 0.11 KM |
| 336 Convamore Road | £ 67,000 | 0.11 KM |