Fraser & Wheeler says ..
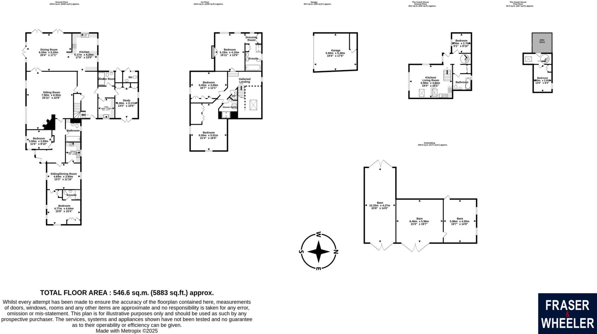
No Onward Chain - A Tuscan-Inspired Sanctuary with Private Lake, Coach House & 19 Acres Set within an enchanting rural landscape, this exquisite Tuscan-style residence offers a rare blend of timeless elegance and serene seclusion. Positioned in a quiet Devon hamlet, within easy reach of Ex...
Property Oracle says ..
Therefore, we give this property 7 / 10. *Disclaimer: This is our option and does constitute a recommendation or financial advice. Do your own research. *
- Price
- 6
- Condition
- 9
- Location
- 7
- Land
- 9
- Bedrooms
- 5
- Bathrooms
- 4
- Sqft (est)
- 4,099.65
The heatmap indicates the level of crime in the area. The color of the heatmap indicates the crime severity and recency.
Metrics Year-on-Year
- Average area value
- 305,488.00 £Decreased by 9.52 %
- Est sale value
- 1,443,076.80 £Increased by 33.84 %
- Average area rental value
- 1,004.00 £/moDecreased by 1.08 %
- Est letting value
- 4,099.65 £/mo
- Est rental Yield
- 3.94 %Increased by 9.14 %
- Crime Rate
- 0.00 %
from 337,636.00 £
from 1,078,207.95 £
from 1,015.00 £/mo
from 0.00 £/mo
from 3.61 %
from 0.00 %
Agent Activity
Fraser & Wheeler created the listing.
Nearby Schools
| Name | Type | Ofsted | Distance |
|---|---|---|---|
| Kenton Primary School | Academy Converter | 3.94 KM | |
| Kenn Church Of England Primary School | Academy Converter | 4.29 KM | |
| Exminster Community Primary | Community School | Good | 5.12 KM |
| The New School | Other Independent School | 5.12 KM | |
| Starcross Primary School | Academy Converter | 6.74 KM |
Images
Nearby Streets
| Name | Average Price | Average Sqft | Distance |
|---|---|---|---|
| Oxton House | £ 0 | 0 | 0.00 KM |
| Ivy Cottages | £ 0 | 0 | 0.00 KM |
Nearby Transport
| Name | NLC | TLC | Distance |
|---|---|---|---|
| Starcross | 3413 | SCS | 6.95 KM |
| Topsham | 5758 | TOP | 7.53 KM |
| Dawlish | 3408 | DWL | 7.92 KM |
| Exton | 5760 | EXN | 8.13 KM |
| Lympstone Commando | 5762 | LYC | 8.19 KM |
Nearby Listings
| Address | Price | Type | Score | Distance |
|---|---|---|---|---|
| Oxton, Kenton, EX6 | £ 2,000,000 | BUY | 7 / 10 | 0.00 KM |
| Kenton, Exeter, EX6 | £ 2,000,000 | BUY | 8 / 10 | 0.01 KM |
| Lyson, Nr Kenton, Exeter | £ 269,500 | BUY | 6 / 10 | 0.74 KM |
| The Orangery, Oxton House, Nr Kenton | £ 600,000 | BUY | 7 / 10 | 0.76 KM |
| Nr Kenton, Exeter, EX6 | £ 650,000 | BUY | 7 / 10 | 0.80 KM |
Nearby Properties
| Address | Price | Distance |
|---|---|---|
| 1 Oakdene Court | £ 315,000 | 0.67 KM |
| 5 Oakdene Court | £ 133,000 | 0.67 KM |
| 2 Oakdene Court | £ 100,000 | 0.67 KM |
| 4 Oakdene Court | £ 197,000 | 0.74 KM |
| 3 Oakdene Court | £ 190,000 | 0.74 KM |