AU
Goddard Avenue, Hull, HU5 2BA
By Auction House
£ 80,000
Reviews
2 out of 5 stars
Auction House says ..
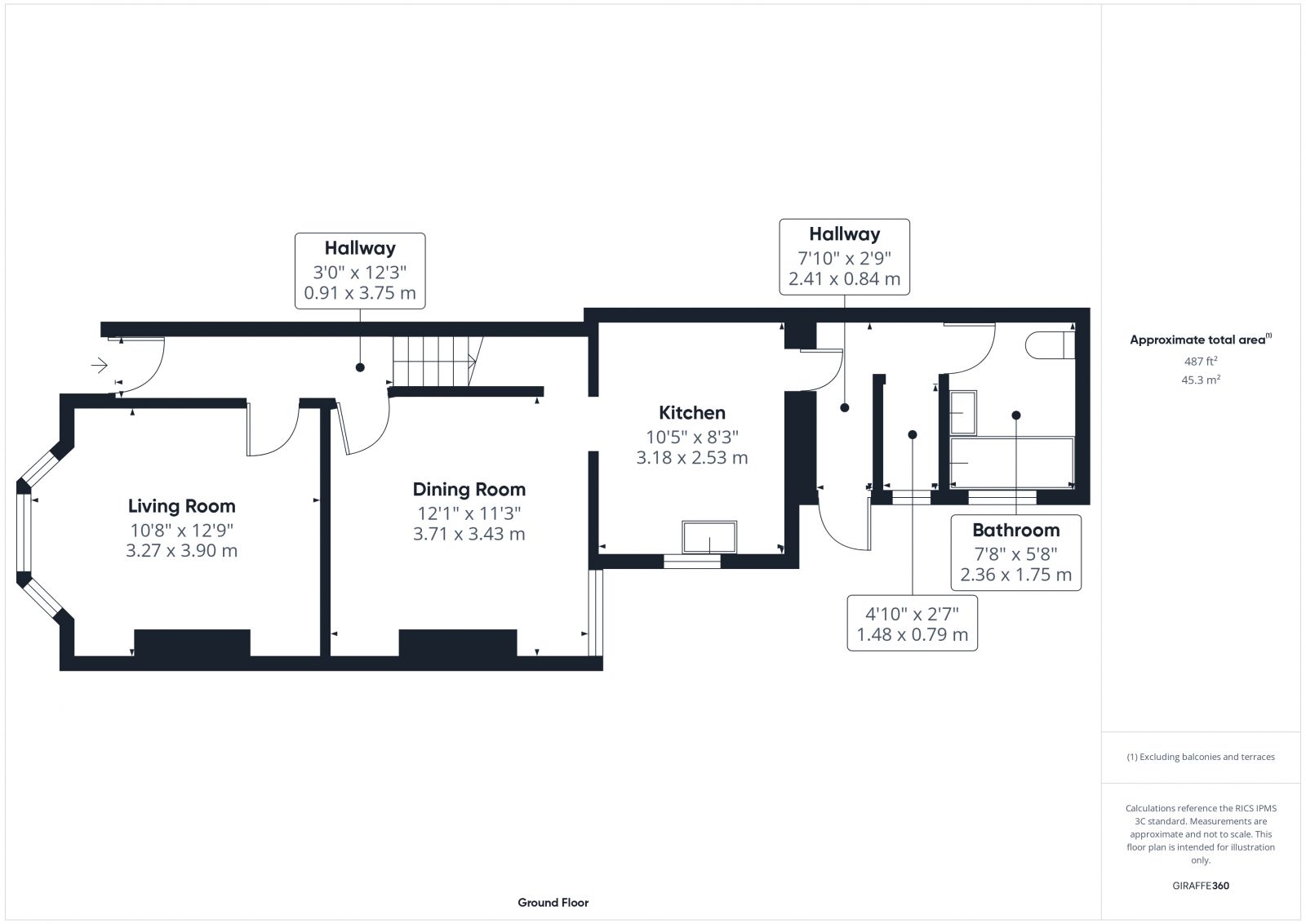
For sale by online Auction on Wednesday 30th July at 1 pm - Guide Price £80,000 - £90,000A three-bedroom mid-terrace house in a popular area close to the university.
Property Oracle says ..
Therefore, we give this property 5 / 10. *Disclaimer: This is our option and does constitute a recommendation or financial advice. Do your own research. *
- Price
- 8
- Condition
- 5
- Location
- 7
- Land
- 3
- Bedrooms
- 3
- Bathrooms
- 1
- Sqft (est)
- 487.61
The heatmap indicates the level of crime in the area. The color of the heatmap indicates the crime severity and recency.
Metrics Year-on-Year
- Average area value
- 136,095.00 £Increased by 6.30 %
- Est sale value
- 89,232.63 £Increased by 25.34 %
- Average area rental value
- 697.00 £/moIncreased by 17.74 %
- Est letting value
- 0.00 £/mo
- Est rental Yield
- 6.15 %Increased by 10.81 %
- Crime Rate
- 0.00 %
from 128,027.00 £
from 71,191.06 £
from 592.00 £/mo
from 0.00 £/mo
from 5.55 %
from 0.00 %
Agent Activity
Auction House created the listing.
Nearby Schools
| Name | Type | Ofsted | Distance |
|---|---|---|---|
| Sidmouth Primary School | Academy Converter | 0.42 KM | |
| Lambert Children'S Centre | Children's Centre Linked Site | 0.68 KM | |
| University Of Hull | Higher Education Institutions | 0.81 KM | |
| Froebel House School | Other Independent School | Good | 0.90 KM |
| St Nicholas Primary School | Academy Converter | Good | 1.01 KM |
Images
Nearby Streets
| Name | Average Price | Average Sqft | Distance |
|---|---|---|---|
| Queens Gardens | £ 0 | 0 | 0.00 KM |
| The Limes | £ 0 | 0 | 0.00 KM |
| The Chestnuts | £ 0 | 0 | 0.00 KM |
| Salisbury Gardens | £ 0 | 0 | 0.00 KM |
| Nunnington Close | £ 0 | 0 | 0.00 KM |
Nearby Transport
| Name | NLC | TLC | Distance |
|---|---|---|---|
| Hull | 8126 | HUL | 2.93 KM |
| Cottingham | 8056 | CGM | 5.12 KM |
| New Holland | 6209 | NHL | 6.81 KM |
| Barrow Haven | 6212 | BAV | 7.96 KM |
| Hessle | 8067 | HES | 9.97 KM |
Nearby Listings
| Address | Price | Type | Score | Distance |
|---|---|---|---|---|
| Goddard Avenue, Hull, HU5 2BA | £ 80,000 | BUY | 5 / 10 | 0.00 KM |
| Goddard Avenue, Hull | £ 110,000 | BUY | 4 / 10 | 0.05 KM |
| Goddard Avenue, Hull | £ 130,000 | BUY | 6 / 10 | 0.05 KM |
| Sharp Street, Hull | £ 90,000 | BUY | 6 / 10 | 0.06 KM |
| Sharp Street, Hull | £ 120,000 | BUY | 6 / 10 | 0.06 KM |
Nearby Properties
| Address | Price | Distance |
|---|---|---|
| 94 Goddard Avenue | £ 69,000 | 0.02 KM |
| 68 Goddard Avenue | £ 100,000 | 0.02 KM |
| 80 Goddard Avenue | £ 85,000 | 0.02 KM |
| 106 Goddard Avenue | £ 113,000 | 0.02 KM |
| 86 Goddard Avenue | £ 33,000 | 0.02 KM |