AL
Strathnairn Street, Bermondsey, SE1
By Alex & Matteo
£ 600,000
Reviews
3 out of 5 stars
Alex & Matteo says ..
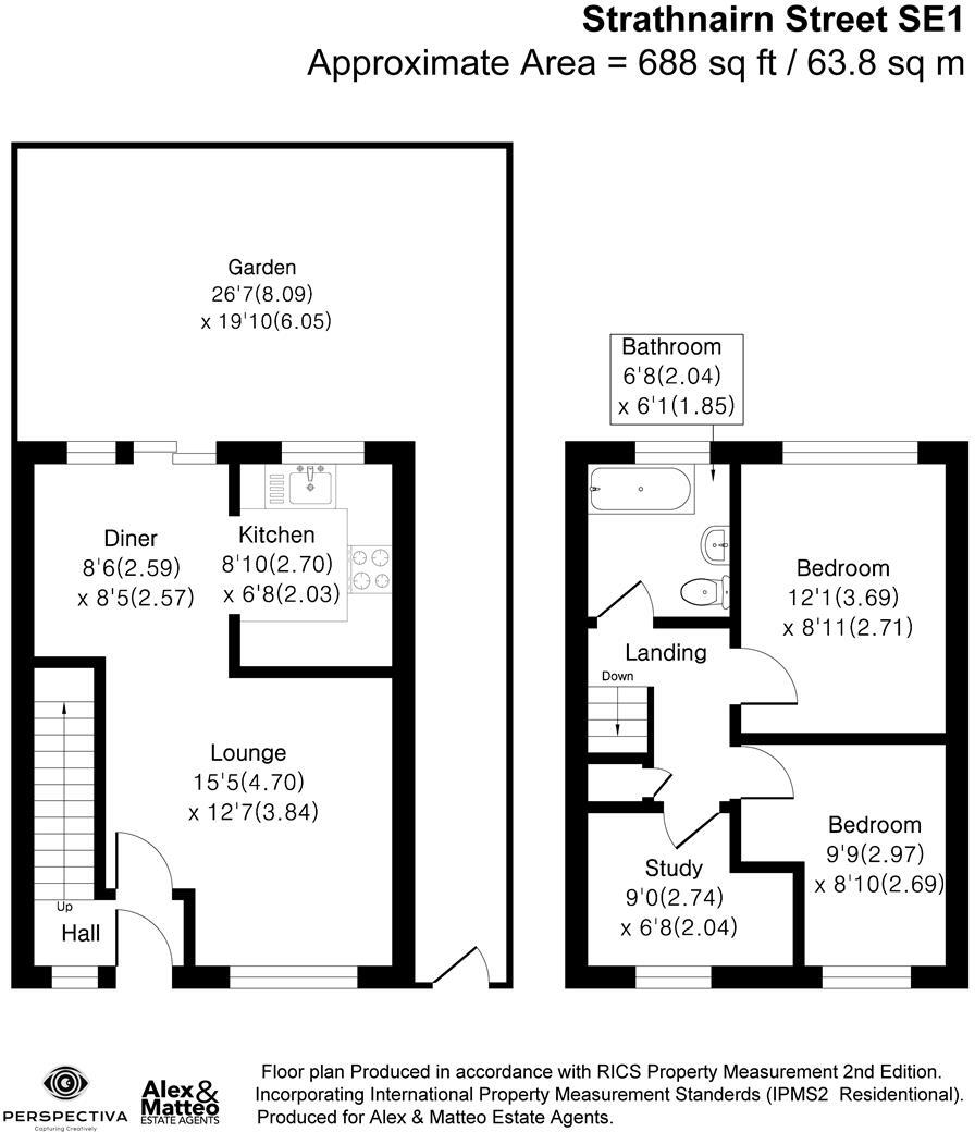
A modern three bedroom freehold house, in a very tranquil residential setting the heart of Bermondsey, moments from iconic markets, and a short walk away from Bermondsey Underground Station as well as the greenery of Southwark Park. The ground floor features a naturally bright living and din...
Property Oracle says ..
Therefore, we give this property 7 / 10. *Disclaimer: This is our option and does constitute a recommendation or financial advice. Do your own research. *
- Price
- 8
- Condition
- 6
- Location
- 7
- Land
- 7
- Bedrooms
- 3
- Bathrooms
- 21
- Sqft (est)
- 1,144.66
The heatmap indicates the level of crime in the area. The color of the heatmap indicates the crime severity and recency.
Metrics Year-on-Year
- Average area value
- 460,000.00 £Decreased by 10.12 %
- Est sale value
- 868,796.94 £Increased by 4.12 %
- Average area rental value
- 2,317.00 £/moIncreased by 6.73 %
- Est letting value
- 3,433.98 £/moUnchanged by 0.00 %
- Est rental Yield
- 6.04 %Increased by 18.66 %
- Crime Rate
- 3.00 %Unchanged by 0.00 %
from 511,784.00 £
from 834,457.14 £
from 2,171.00 £/mo
from 3,433.98 £/mo
from 5.09 %
from 3.00 %
Agent Activity
Alex & Matteo created the listing.
Nearby Schools
| Name | Type | Ofsted | Distance |
|---|---|---|---|
| Spa School, Bermondsey | Academy Special Converter | 0.12 KM | |
| City Of London Academy (Southwark) | Academy Sponsor Led | Good | 0.25 KM |
| South Bermondsey Children And Parents Centre | Children's Centre | 0.48 KM | |
| Harris Academy Bermondsey | Academy Sponsor Led | Outstanding | 0.53 KM |
| Phoenix Primary School | Community School | Outstanding | 0.58 KM |
Images
Nearby Streets
| Name | Average Price | Average Sqft | Distance |
|---|---|---|---|
| Beatrice Road | £ 800,000 | 0 | 0.00 KM |
| Catlin Street | £ 288,333 | 0 | 0.00 KM |
| Stork's Road | £ 0 | 0 | 0.00 KM |
| Rouel Road | £ 0 | 0 | 0.00 KM |
| Spa Road | £ 1,100,000 | 0 | 0.00 KM |
Nearby Transport
| Name | NLC | TLC | Distance |
|---|---|---|---|
| South Bermondsey | 5425 | SBM | 1.37 KM |
| Wapping | 1085 | WPE | 1.90 KM |
| Rotherhithe | 1039 | ROE | 1.95 KM |
| Canada Water | 1659 | ZCW | 2.03 KM |
| New Cross | 5150 | NWX | 2.03 KM |
Nearby Listings
| Address | Price | Type | Score | Distance |
|---|---|---|---|---|
| Strathnairn Street, Bermondsey, SE1 | £ 600,000 | BUY | 7 / 10 | 0.00 KM |
| Townsend House, Bermondsey, SE16 | £ 375,000 | BUY | 6 / 10 | 0.03 KM |
| Strathnairn Street, Bermondsey | £ 750,000 | BUY | Unknown | 0.04 KM |
| Strathnairn Street, Bermondsey | £ 750,000 | BUY | Unknown | 0.04 KM |
| Trothy Road, Bermondsey | £ 675,000 | BUY | 7 / 10 | 0.07 KM |
Nearby Properties
| Address | Price | Distance |
|---|---|---|
| 40 Strathnairn Street | £ 480,000 | 0.02 KM |
| 60 Strathnairn Street | £ 208,000 | 0.02 KM |
| 30 Strathnairn Street | £ 290,000 | 0.02 KM |
| 10 Strathnairn Street | £ 585,000 | 0.02 KM |
| 68 Strathnairn Street | £ 435,000 | 0.02 KM |