FALMOUTH
By Kimberley's Independent Estate Agents
£ 285,000
Reviews
3 out of 5 stars
Kimberley's Independent Estate Agents says ..
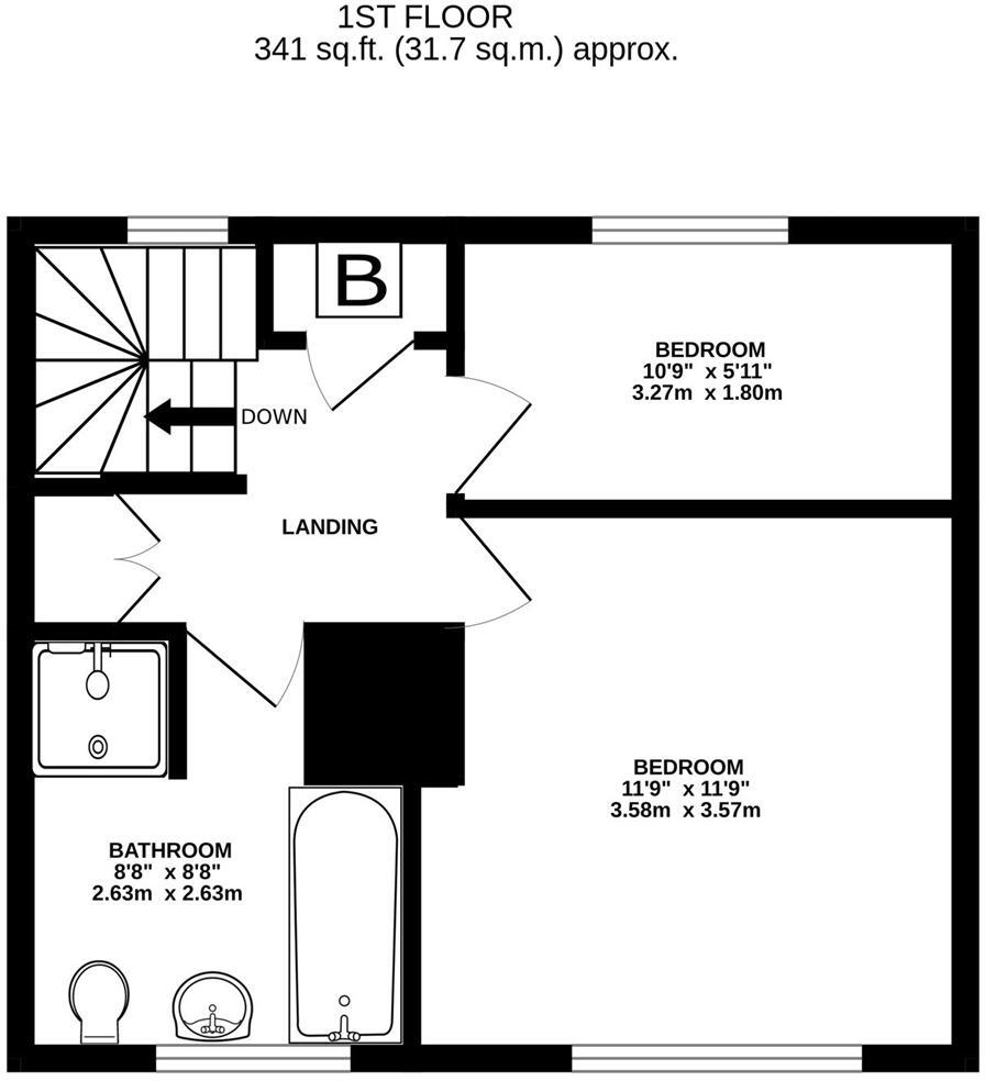
We like to offer for sale, this delightful two bedroom end of terrace house which is set in a popular residential location at Swanvale, within walking distance of local amenities at Boslowick, local schools, Penmere Halt branch line railway station, Swanpool beach and a further stroll into F (cont.)
Property Oracle says ..
Therefore, we give this property 7 / 10. *Disclaimer: This is our option and does constitute a recommendation or financial advice. Do your own research. *
- Price
- 9
- Condition
- 6
- Location
- 8
- Land
- 7
- Bedrooms
- 2
- Bathrooms
- 1
- Sqft (est)
- 300.91
The heatmap indicates the level of crime in the area. The color of the heatmap indicates the crime severity and recency.
Metrics Year-on-Year
- Average area value
- 380,500.00 £Decreased by 7.95 %
- Est sale value
- 91,777.55 £Increased by 0.66 %
- Average area rental value
- 1,550.00 £/moIncreased by 31.91 %
- Est letting value
- 300.91 £/mo
- Est rental Yield
- 4.89 %Increased by 43.40 %
- Crime Rate
- 12.00 %Unchanged by 0.00 %
from 413,363.00 £
from 91,175.73 £
from 1,175.00 £/mo
from 0.00 £/mo
from 3.41 %
from 12.00 %
Agent Activity
Kimberley's Independent Estate Agents created the listing.
Nearby Schools
| Name | Type | Ofsted | Distance |
|---|---|---|---|
| St Mary'S Catholic Primary School, Falmouth | Academy Converter | 0.59 KM | |
| Marlborough School | Community School | Requires improvement | 0.81 KM |
| St Francis Cofe Primary School | Academy Converter | 0.97 KM | |
| Falmouth & Penryn Children'S Centre | Children's Centre | 1.17 KM | |
| Falmouth Primary Academy | Academy Sponsor Led | Good | 1.38 KM |
Images
Nearby Streets
| Name | Average Price | Average Sqft | Distance |
|---|---|---|---|
| Theydon Road | £ 0 | 0 | 0.00 KM |
| Treveglos Road | £ 695,000 | 0 | 0.00 KM |
| Swanpool Hill | £ 0 | 0 | 0.00 KM |
| The Green | £ 692,500 | 0 | 0.00 KM |
| Stewart Court | £ 995,000 | 0 | 0.00 KM |
Nearby Transport
| Name | NLC | TLC | Distance |
|---|---|---|---|
| Penmere | 3499 | PNM | 0.55 KM |
| Falmouth Town | 3591 | FMT | 2.40 KM |
| Falmouth Docks | 3508 | FAL | 3.41 KM |
| Penryn (Cornwall) | 3525 | PYN | 3.84 KM |
| Perranwell | 3528 | PRW | 8.25 KM |
Nearby Listings
| Address | Price | Type | Score | Distance |
|---|---|---|---|---|
| FALMOUTH | £ 285,000 | BUY | 7 / 10 | 0.00 KM |
| Falmouth | £ 398,000 | BUY | 7 / 10 | 0.07 KM |
| Hillside Road, Falmouth, TR11 | £ 345,000 | BUY | 7 / 10 | 0.08 KM |
| Meadowside Road, Falmouth - Terraced family home | £ 285,000 | BUY | Unknown | 0.11 KM |
| FALMOUTH | £ 450,000 | BUY | 6 / 10 | 0.12 KM |
Nearby Properties
| Address | Price | Distance |
|---|---|---|
| 28 Hillside Road | £ 135,000 | 0.02 KM |
| 20 Hillside Road | £ 37,500 | 0.02 KM |
| 23 Hillside Road | £ 220,000 | 0.02 KM |
| 25 Hillside Road | £ 168,000 | 0.02 KM |
| 10 Meadowside Road | £ 178,500 | 0.07 KM |