Hawthorn Street, York
By Ashtons Estate Agents
£ 270,000
Reviews
3 out of 5 stars
Ashtons Estate Agents says ..
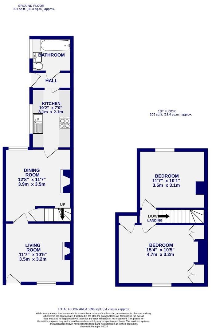
A beautifully refurbished Victorian terrace positioned in a highly convenient location just off Layerthorpe. This charming two bedroom home has been thoughtfully modernised and upgraded in recent years, making it an ideal opportunity for both first time buyers and investors alike.
Property Oracle says ..
This is a two-bedroom terraced house located on Hawthorn Street in Heworth, York. The property benefits from a modern kitchen and bathroom, and a small rear garden. While generally in good condition, some areas could use cosmetic upgrades. The location is convenient, with good access to local amenities, schools, and transport links. The asking price of £270,000 seems reasonable given the property’s size, location, and condition, aligning with comparable sales in the area.
Therefore, we give this property 6 / 10. *Disclaimer: This is our option and does constitute a recommendation or financial advice. Do your own research. *
- Price
- 7
- Condition
- 7
- Location
- 7
- Land
- 4
- Bedrooms
- 2
- Bathrooms
- 1
- Sqft (est)
- 696.43
The heatmap indicates the level of crime in the area. The color of the heatmap indicates the crime severity and recency.
Metrics Year-on-Year
- Average area value
- 494,993.00 £Increased by 52.44 %
- Est sale value
- 349,607.86 £Increased by 168.45 %
- Average area rental value
- 1,198.00 £/moDecreased by 2.44 %
- Est letting value
- 696.43 £/mo
- Est rental Yield
- 2.90 %Decreased by 36.12 %
- Crime Rate
- 3.00 %Unchanged by 0.00 %
Agent Activity
Ashtons Estate Agents created the listing.
Nearby Schools
| Name | Type | Ofsted | Distance |
|---|---|---|---|
| The Avenues Children'S Centre | Children's Centre | 0.59 KM | |
| Tang Hall Primary Academy | Academy Converter | Good | 0.68 KM |
| Park Grove Primary Academy | Academy Converter | 0.89 KM | |
| Heworth Church Of England Primary Academy | Academy Converter | Good | 0.94 KM |
| St Wilfrid'S Catholic Primary School - A Catholic Voluntary Academy | Academy Converter | 1.03 KM |
Images
Nearby Streets
| Name | Average Price | Average Sqft | Distance |
|---|---|---|---|
| Layerthorpe | £ 200,000 | 0 | 0.00 KM |
| Eboracum Way | £ 0 | 0 | 0.00 KM |
| Croft Gardens | £ 0 | 0 | 0.00 KM |
| Heworth Road | £ 0 | 0 | 0.00 KM |
| Agar Court | £ 0 | 0 | 0.00 KM |
Nearby Transport
| Name | NLC | TLC | Distance |
|---|---|---|---|
| York | 8263 | YRK | 2.82 KM |
| Poppleton | 8254 | POP | 8.98 KM |
Nearby Listings
| Address | Price | Type | Score | Distance |
|---|---|---|---|---|
| Hawthorn Street, York | £ 270,000 | BUY | 6 / 10 | 0.00 KM |
| Hawthorn Street, York | £ 235,000 | BUY | Unknown | 0.02 KM |
| Hawthorn Street, Heworth, York | £ 235,000 | BUY | 6 / 10 | 0.02 KM |
| Hawthorn Street, York, YO31 | £ 260,000 | BUY | 6 / 10 | 0.04 KM |
| Glen Road, Heworth | £ 295,000 | BUY | 6 / 10 | 0.06 KM |
Nearby Properties
| Address | Price | Distance |
|---|---|---|
| 18 Hawthorn Street | £ 146,000 | 0.01 KM |
| 9 Hawthorn Street | £ 265,000 | 0.01 KM |
| 8 Hawthorn Street | £ 230,000 | 0.01 KM |
| 28 Hawthorn Street | £ 187,500 | 0.01 KM |
| 26 Hawthorn Street | £ 227,500 | 0.01 KM |