Park Move says ..
A light and spacious brand new 2 bedroom bungalow style property, downsize to the North Norfolk coast and we will even buy you property for 100% market value, contact us today before it's gone.
Property Oracle says ..
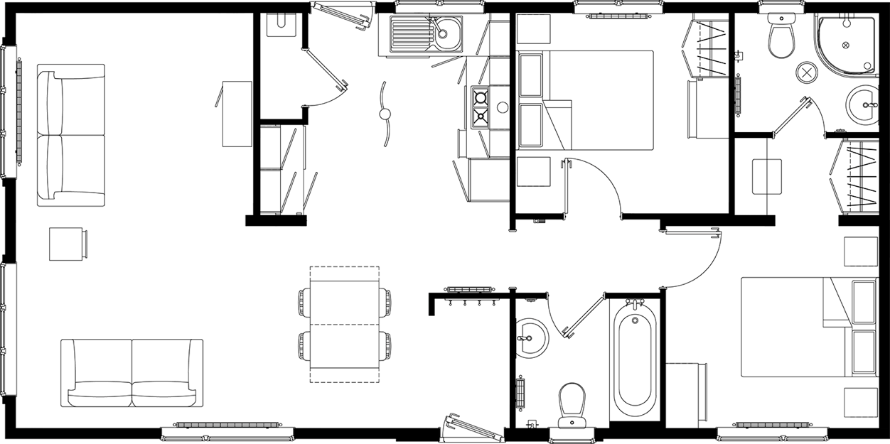
This is a well-presented park home in Bradwell, Norfolk. The property benefits from a modern interior, a garden, and proximity to local amenities. While it is a park home, the price appears reasonable compared to the average price per square foot in the area. The property is located 3.76 KM from the nearest train station. Overall, this property would likely appeal to those seeking a well-maintained and affordable home in a convenient location.
Therefore, we give this property 7 / 10. *Disclaimer: This is our option and does constitute a recommendation or financial advice. Do your own research. *
- Price
- 7
- Condition
- 8
- Location
- 6
- Land
- 7
- Bedrooms
- 2
- Bathrooms
- 0
- Sqft (est)
- 800.00
The heatmap indicates the level of crime in the area. The color of the heatmap indicates the crime severity and recency.
Metrics Year-on-Year
- Average area value
- 424,643.00 £Increased by 10.49 %
- Est sale value
- 350,400.00 £Increased by 29.97 %
- Average area rental value
- 1,206.00 £/moIncreased by 0.50 %
- Est letting value
- 800.00 £/moUnchanged by 0.00 %
- Est rental Yield
- 3.41 %Decreased by 9.07 %
- Crime Rate
- 26.00 %Unchanged by 0.00 %
Agent Activity
Park Move created the listing.
Nearby Schools
| Name | Type | Ofsted | Distance |
|---|---|---|---|
| Gorleston And Hopton Children'S Centre | Children's Centre | 0.21 KM | |
| Stradbroke Primary Academy | Academy Sponsor Led | Good | 0.40 KM |
| St Mary And St Peter Catholic Primary School | Academy Converter | Requires improvement | 0.49 KM |
| East Norfolk Sixth Form College | Academy 16-19 Converter | Good | 0.85 KM |
| Wroughton Infant Academy | Academy Converter | Good | 1.27 KM |
Images
Nearby Streets
| Name | Average Price | Average Sqft | Distance |
|---|---|---|---|
| Colomb Road | £ 150,000 | 0 | 0.00 KM |
| Nelson Road | £ 0 | 0 | 0.00 KM |
| Keppel Road | £ 0 | 0 | 0.00 KM |
| Back Chapel Lane | £ 199,500 | 0 | 0.00 KM |
| Addison Road | £ 160,000 | 0 | 0.00 KM |
Nearby Transport
| Name | NLC | TLC | Distance |
|---|---|---|---|
| Great Yarmouth | 7328 | GYM | 3.76 KM |
Nearby Listings
| Address | Price | Type | Score | Distance |
|---|---|---|---|---|
| Bradwell, Norfolk, NR31 6RB | £ 225,000 | BUY | 6 / 10 | 0.00 KM |
| Bradwell, Norfolk, NR31 6RB | £ 210,000 | BUY | 7 / 10 | 0.00 KM |
| Duke Road, Gorleston | £ 110,000 | BUY | Unknown | 0.09 KM |
| Cross Road, Gorleston | £ 280,000 | BUY | 5 / 10 | 0.11 KM |
| High Street, Gorleston, | £ 230,000 | BUY | 5 / 10 | 0.13 KM |
Nearby Properties
| Address | Price | Distance |
|---|---|---|
| 2 John Road | £ 123,000 | 0.12 KM |
| 38 John Road | £ 144,000 | 0.15 KM |
| 29 John Road | £ 115,000 | 0.15 KM |
| 18 John Road | £ 175,000 | 0.15 KM |
| 31 John Road | £ 190,000 | 0.15 KM |