Mannamead, Plymouth
JU

Mannamead, Plymouth

By Julian Marks

£ 500,000

Reviews

3 out of 5 stars

Julian Marks says ..

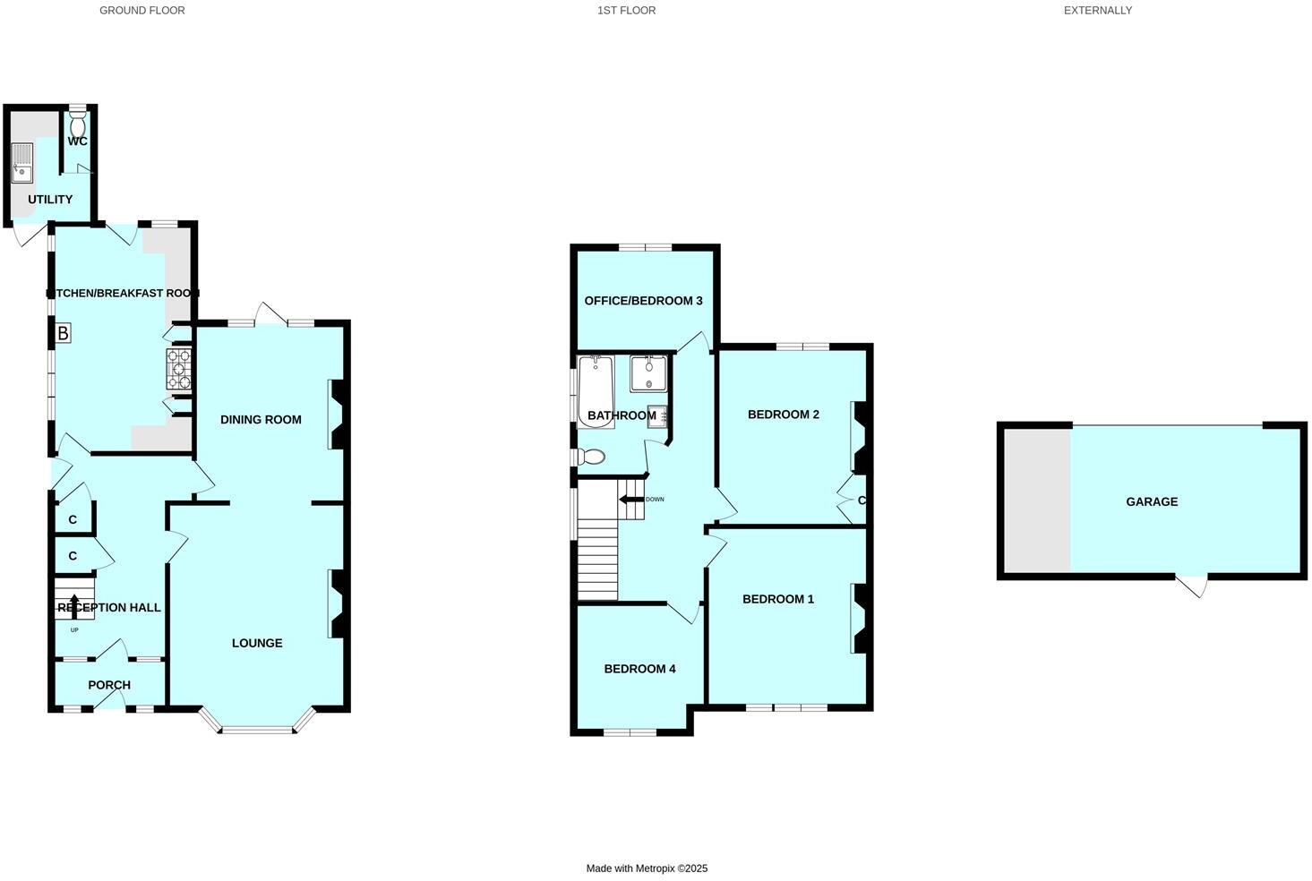
GUIDE PRICE £500,000 - £525,000. A beautifully presented spacious semi-detached house which is understood to have been built in the early 1930s which provides a well proportioned 4 bedroom family home. The property maintained & looked after to a high standard, improved & updated in the past. Reta...

Property Oracle says ..

Therefore, we give this property 7 / 10. *Disclaimer: This is our option and does constitute a recommendation or financial advice. Do your own research. *

Price
6
Condition
8
Location
8
Land
7
Bedrooms
4
Bathrooms
1
Sqft (est)
1,274.00

The heatmap indicates the level of crime in the area. The color of the heatmap indicates the crime severity and recency.

Metrics Year-on-Year

Average area value
332,250.00 £
Increased by 4.68 %
from 317,391.00 £
Est sale value
420,420.00 £
Increased by 22.22 %
from 343,980.00 £
Average area rental value
769.00 £/mo
Increased by 6.81 %
from 720.00 £/mo
Est letting value
0.00 £/mo
from 0.00 £/mo
Est rental Yield
2.78 %
Increased by 2.21 %
from 2.72 %
Crime Rate
4.00 %
Unchanged by 0.00 %
from 4.00 %

Agent Activity

  • Julian Marks created the listing.

Nearby Schools

NameTypeOfstedDistance
Compton Cofe Primary SchoolVoluntary Controlled SchoolGood0.42 KM
King'S SchoolOther Independent School0.89 KM
Sweet Peas Peverell Children'S CentreChildren's Centre0.97 KM
Hyde Park Infants' SchoolAcademy Converter1.14 KM
Hyde Park Junior SchoolAcademy Converter1.17 KM

Images

IMG_3084.jpeg IMG_3078.jpeg IMG_3062.jpeg IMG_3130.jpeg IMG_3129.jpeg IMG_3116.jpeg IMG_3114.jpeg IMG_3115.jpeg IMG_6816.jpg IMG_3142.jpeg Boundaries.jpeg IMG_3143.jpeg IMG_6800.jpg 1.jpeg dji_fly_20250708_113726_0437_1751970555114_photo.j IMG_3119.jpeg IMG_3091.jpeg IMG_3096.jpeg IMG_3070.jpeg IMG_3071.jpeg IMG_3086.jpeg IMG_3118.jpeg IMG_3120.jpeg IMG_3123.jpeg IMG_3095.jpeg IMG_3126.jpeg IMG_3094.jpeg IMG_3109.jpeg IMG_3102.jpeg IMG_3093.jpeg IMG_3103.jpeg IMG_3105.jpeg IMG_3083.jpeg IMG_3065.jpeg IMG_3080.jpeg

Nearby Streets

NameAverage PriceAverage SqftDistance
Compton Leigh £ 000.00 KM
Courtfield Road £ 000.00 KM
Park Road £ 350,00000.00 KM
Harlech Close £ 000.00 KM
Penrose Villas £ 000.00 KM

Nearby Transport

NameNLCTLCDistance
Plymouth3580PLY2.19 KM
Devonport3579DPT4.88 KM
Dockyard (Devonport)3588DOC5.35 KM
Keyham3571KEY5.68 KM
St Budeaux Ferry Road3590SBF6.59 KM

Nearby Listings

AddressPriceTypeScoreDistance
Mannamead, Plymouth £ 500,000BUY7 / 100.00 KM
Sir Leonard Rogers Close, Plymouth £ 400,000BUY7 / 100.08 KM
Gleneagle Road, Plymouth, Devon, PL3 £ 375,000BUY6 / 100.09 KM
Gleneagle Road, Mannamead, Plymouth. Spacious 5-Bedroom End-Terrace with Period Charm & Huge Potential £ 245,000BUY5 / 100.09 KM
Sir Leonard Rogers Close, Plymouth £ 375,000BUY6 / 100.10 KM

Nearby Properties

AddressPriceDistance
35a Eggbuckland Road £ 400,0000.01 KM
37 Eggbuckland Road £ 305,0000.01 KM
19 Eggbuckland Road £ 124,7500.01 KM
29 Eggbuckland Road £ 300,0000.01 KM
33 Eggbuckland Road £ 310,0000.01 KM