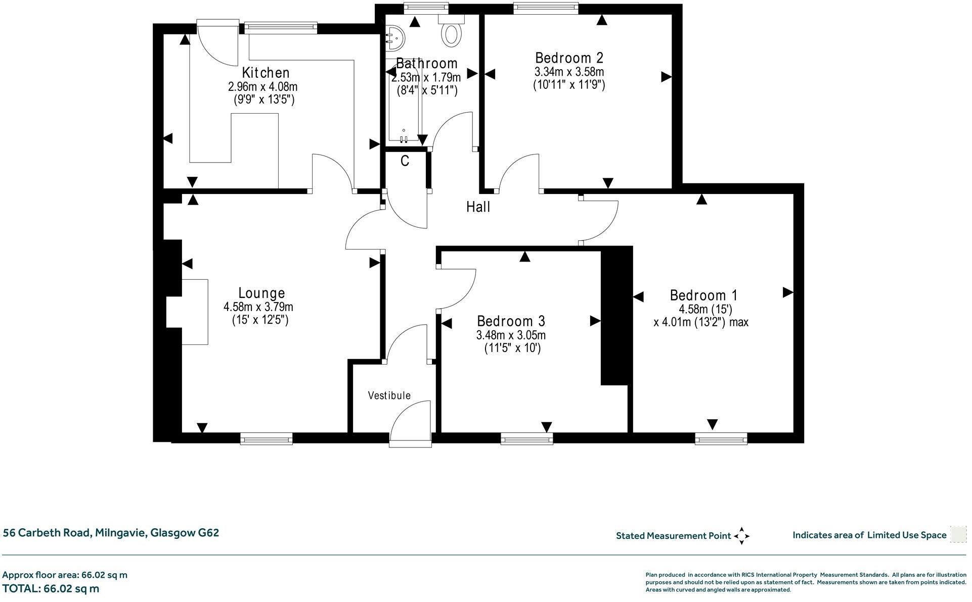
Carbeth Road, Milngavie

Rettie & Co says ..

• Main door three bedroomed lower cottage flat • Very well presented across accommodation • Fantastic location in Milngavie’s Clober Estate • Great room proportions • Private, sunny, garden space to front and rear – beautifully landscaped

Property Oracle says ..

This is a three-bedroom apartment in Milngavie, a suburb of Glasgow. The property appears to be in good condition, with a modern kitchen and bathroom. It benefits from a well-maintained garden. The location is desirable, with good transport links and local amenities. The property is listed at £180,000, which appears to be a reasonable price given the location and condition.

Therefore, we give this property 7 / 10. *Disclaimer: This is our option and does constitute a recommendation or financial advice. Do your own research. *

Price
8
Condition
7
Location
7
Land
8
Bedrooms
3
Bathrooms
1

The heatmap indicates the level of crime in the area. The color of the heatmap indicates the crime severity and recency.

Metrics Year-on-Year

Average area value
512,500.00 £
Increased by 58.76 %
from 322,824.00 £
Average area rental value
1,100.00 £/mo
Decreased by 47.62 %
from 2,100.00 £/mo
Est rental Yield
2.58 %
Decreased by 66.97 %
from 7.81 %
Crime Rate
0.00 %
from 0.00 %

Agent Activity

  • Rettie & Co created the listing.

Images

Picture 1 Picture 3 Picture 6 Picture 4 Picture 9 Picture 11 Picture 12 Picture 13 Picture 18 Picture 19 Picture 21 Picture 23 Picture 14 Picture 2 Picture 5 Picture 7 Picture 8 Picture 10 Picture 16 Picture 22 Picture 24 Picture 25 Picture 15 Picture 17 Picture 20

Nearby Streets

NameAverage PriceAverage SqftDistance
Carbeth Road £ 170,00000.00 KM
Graham Drive £ 210,00000.00 KM
Learmont Place £ 167,00000.00 KM
Balvie Crescent £ 171,99800.00 KM
Craigend Crescent £ 175,00000.00 KM

Nearby Transport

NameNLCTLCDistance
Milngavie9985MLN1.61 KM
Hillfoot9983HLF2.74 KM
Bearsden9966BRN2.91 KM
Westerton9998WES4.31 KM
Drumchapel9994DMC5.67 KM

Nearby Listings

AddressPriceTypeScoreDistance
Carbeth Road, Milngavie £ 180,000BUY7 / 100.00 KM
Carbeth Road, Milngavie, Glasgow, East Dunbartonshire, G62 £ 225,000BUY7 / 100.03 KM
62 Carbeth Road, Milngavie, G62 £ 175,000BUYUnknown0.06 KM
Dumgoyne Avenue, Milngavie, G62 7AJ £ 230,000BUY7 / 100.12 KM
Dumgoyne Avenue, Milngavie £ 175,000BUYUnknown0.19 KM