Stanley Road, Poole Quay, Poole, BH15
By Anthony David & Co
£ 375,000
Reviews
3 out of 5 stars
Anthony David & Co says ..
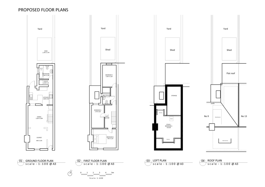
** MOMENTS FROM WATERS EDGE ** Three Bedrooms. POPULAR LOCATION. Characterful Features. Dining Room. Outdoor Shower. UNDERFLOOR HEATING. * PLANNING PERMISSION GRANTED * Internal Viewing Highly Advised.
Property Oracle says ..
The property is located in a desirable area of Poole with good access to amenities and schools. The interior shows recent renovations to the kitchen and bathrooms, while the flooring appears original. The garden is small but well-maintained. The list price seems reasonable considering the location and condition, although a more detailed comparison with similar properties would be beneficial.
Therefore, we give this property 7 / 10. *Disclaimer: This is our option and does constitute a recommendation or financial advice. Do your own research. *
- Price
- 7
- Condition
- 8
- Location
- 9
- Land
- 4
- Bedrooms
- 3
- Bathrooms
- 2
- Sqft (est)
- 855.84
The heatmap indicates the level of crime in the area. The color of the heatmap indicates the crime severity and recency.
Metrics Year-on-Year
- Average area value
- 376,458.00 £Increased by 19.16 %
- Est sale value
- 326,075.04 £Increased by 7.93 %
- Average area rental value
- 1,279.00 £/moDecreased by 4.69 %
- Est letting value
- 855.84 £/moUnchanged by 0.00 %
- Est rental Yield
- 4.08 %Decreased by 20.00 %
- Crime Rate
- 22.00 %Unchanged by 0.00 %
Agent Activity
Anthony David & Co created the listing.
Nearby Schools
| Name | Type | Ofsted | Distance |
|---|---|---|---|
| Old Town Infant School And Nursery | Academy Converter | Good | 0.29 KM |
| Old Town Children'S Centre | Children's Centre | 0.32 KM | |
| Poole High School | Foundation School | Good | 1.35 KM |
| Longfleet Church Of England Primary School | Academy Converter | Good | 1.57 KM |
| Oakdale Junior School | Academy Converter | Good | 1.72 KM |
Images
Nearby Streets
| Name | Average Price | Average Sqft | Distance |
|---|---|---|---|
| Baiter Gardens | £ 281,667 | 0 | 0.00 KM |
| Dolphin Quays | £ 0 | 0 | 0.00 KM |
| Chapel Lane | £ 0 | 0 | 0.00 KM |
| Carter's Lane | £ 0 | 0 | 0.00 KM |
| Nightingale Lane | £ 0 | 0 | 0.00 KM |
Nearby Transport
| Name | NLC | TLC | Distance |
|---|---|---|---|
| Poole | 5883 | POO | 0.80 KM |
| Parkstone (Dorset) | 5882 | PKS | 3.75 KM |
| Hamworthy | 5940 | HAM | 4.53 KM |
| Branksome | 5875 | BSM | 6.88 KM |
Nearby Listings
| Address | Price | Type | Score | Distance |
|---|---|---|---|---|
| Stanley Road, Poole,BH15 | £ 350,000 | BUY | Unknown | 0.00 KM |
| Stanley Road, Poole, Dorset, BH15 | £ 350,000 | BUY | 6 / 10 | 0.01 KM |
| Stanley Road, Poole | £ 375,000 | BUY | 5 / 10 | 0.03 KM |
| Stanley Road, Poole, BH15 | £ 350,000 | BUY | 7 / 10 | 0.04 KM |
| Ballard Close, Poole, Dorset | £ 625,000 | BUY | 6 / 10 | 0.07 KM |
Nearby Properties
| Address | Price | Distance |
|---|---|---|
| 29 Stanley Road | £ 97,000 | 0.01 KM |
| 5 Stanley Road | £ 185,000 | 0.01 KM |
| 41 Stanley Road | £ 315,000 | 0.01 KM |
| 33 Stanley Road | £ 225,000 | 0.01 KM |
| 45 Stanley Road | £ 200,000 | 0.01 KM |