Julian Marks says ..
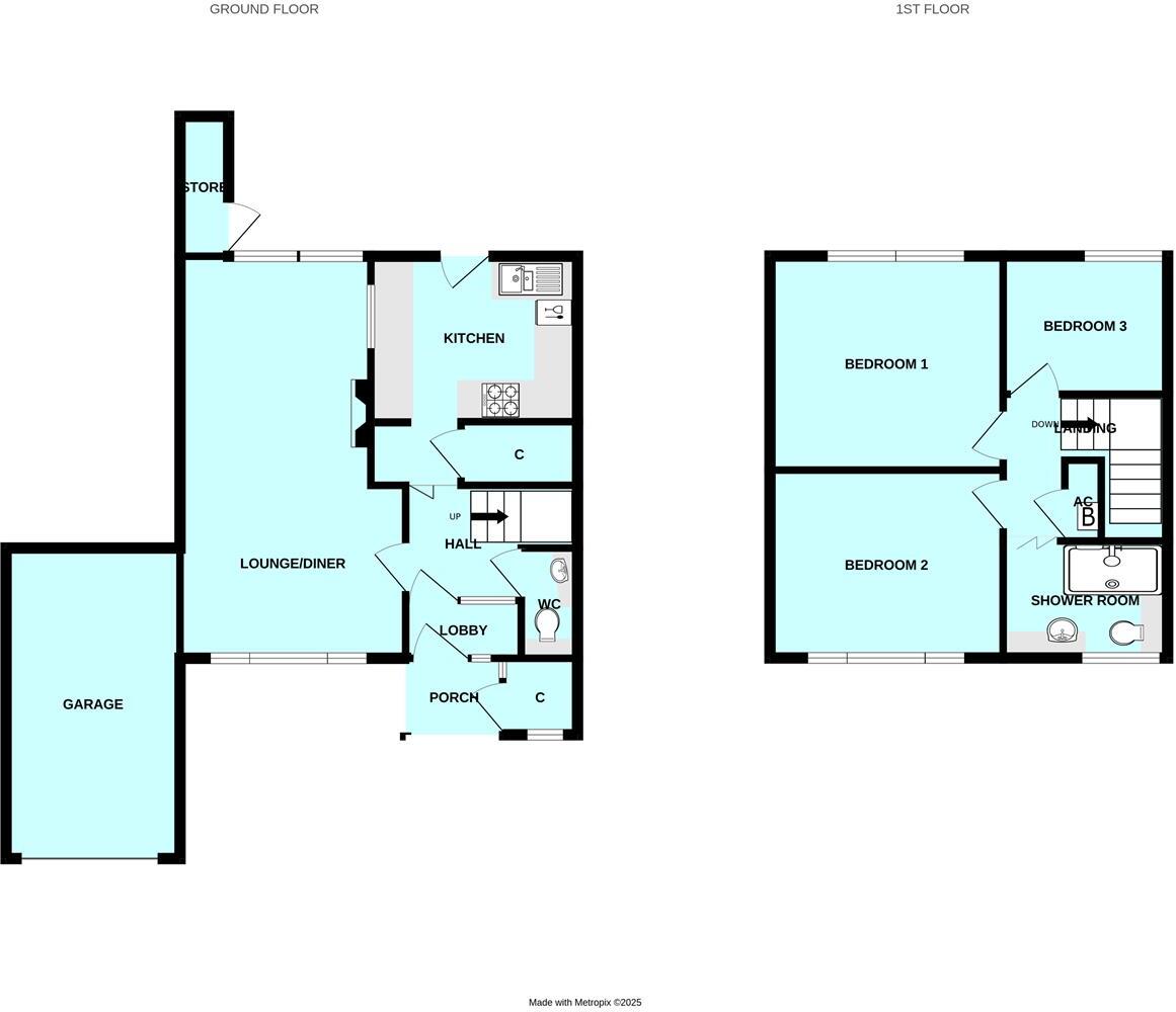
A well presented modern built end of terrace house which has benefited from upgrading & improvement works, including the installation of a new fitted integrated kitchen, redecoration, new carpets & a well appointed modern fitted shower room/wc. The property briefly comprises a spacious lounge/din...
Property Oracle says ..
Therefore, we give this property 7 / 10. *Disclaimer: This is our option and does constitute a recommendation or financial advice. Do your own research. *
- Price
- 8
- Condition
- 8
- Location
- 7
- Land
- 6
- Bedrooms
- 3
- Bathrooms
- 1
- Sqft (est)
- 885.00
The heatmap indicates the level of crime in the area. The color of the heatmap indicates the crime severity and recency.
Metrics Year-on-Year
- Average area value
- 229,475.00 £Increased by 9.15 %
- Est sale value
- 327,450.00 £Increased by 102.19 %
- Average area rental value
- 830.00 £/moIncreased by 5.33 %
- Est letting value
- 885.00 £/mo
- Est rental Yield
- 4.34 %Decreased by 3.56 %
- Crime Rate
- 6.00 %Unchanged by 0.00 %
from 210,243.00 £
from 161,955.00 £
from 788.00 £/mo
from 0.00 £/mo
from 4.50 %
from 6.00 %
Agent Activity
Julian Marks created the listing.
Nearby Schools
| Name | Type | Ofsted | Distance |
|---|---|---|---|
| Austin Farm Academy | Academy Sponsor Led | Requires improvement | 0.54 KM |
| D.E.L.L. Children'S Centre | Children's Centre | 0.62 KM | |
| Crownlands Children'S Centre | Children's Centre | 0.63 KM | |
| Laira Green Primary School | Community School | Requires improvement | 1.27 KM |
| St Edward'S Cofe Primary School | Academy Converter | Good | 1.28 KM |
Images
Nearby Streets
| Name | Average Price | Average Sqft | Distance |
|---|---|---|---|
| Florida Gardens | £ 0 | 0 | 0.00 KM |
| Old Plymouth Road | £ 425,000 | 0 | 0.00 KM |
| Mullet Close | £ 0 | 0 | 0.00 KM |
| Cardigan Road | £ 0 | 0 | 0.00 KM |
| Petersfield Close | £ 0 | 0 | 0.00 KM |
Nearby Transport
| Name | NLC | TLC | Distance |
|---|---|---|---|
| Plymouth | 3580 | PLY | 4.90 KM |
| Devonport | 3579 | DPT | 7.79 KM |
| Dockyard (Devonport) | 3588 | DOC | 8.28 KM |
| Keyham | 3571 | KEY | 8.60 KM |
| St Budeaux Ferry Road | 3590 | SBF | 9.43 KM |
Nearby Listings
| Address | Price | Type | Score | Distance |
|---|---|---|---|---|
| Plymouth, Devon | £ 240,000 | BUY | 7 / 10 | 0.00 KM |
| Humber Close, Plymouth | £ 240,000 | BUY | 7 / 10 | 0.04 KM |
| Humber Close, Deer Park, Plymouth | £ 230,000 | BUY | 6 / 10 | 0.07 KM |
| Wye Gardens, Plymouth | £ 180,000 | BUY | 6 / 10 | 0.12 KM |
| Ribble Gardens, Plymouth | £ 200,000 | BUY | 5 / 10 | 0.13 KM |
Nearby Properties
| Address | Price | Distance |
|---|---|---|
| 12 Humber Close | £ 210,000 | 0.04 KM |
| 10 Dove Gardens | £ 90,000 | 0.04 KM |
| 43 Humber Close | £ 125,000 | 0.04 KM |
| 22 Humber Close | £ 120,000 | 0.04 KM |
| 11 Dove Gardens | £ 113,950 | 0.04 KM |