Middle Lincombe Road, Torquay
ST

Middle Lincombe Road, Torquay

By Stags

£ 400,000

Reviews

4 out of 5 stars

Stags says ..

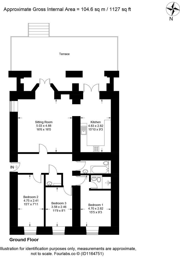
Lyncourt blends the careful refurbishment of a beautiful existing property with thoughtfully designed new build convenience, located within a tranquil setting offering stunning sea views over the breath-taking Torquay Riviera. Stunning Sea Views Torbay, Finished to a High Standard, Sought After ...

Property Oracle says ..

This property is located in Wellswood, Torquay, and benefits from stunning sea views. The property is in good condition and appears well-maintained, as shown in the provided photographs. While the plot size is not specified, the property includes a sizable garden and patio area, ideal for outdoor living and entertaining. Considering the average price per square foot in the area is £282, and this property is listed at £400,000 with 1,125.91 sqft, the list price appears slightly above average. However, the exceptional views and the property’s condition could justify the higher price point. The location is excellent, with good proximity to local schools and transportation links. Nearby properties show a wide range of prices, reflecting the diverse housing options in the area.

Therefore, we give this property 8 / 10. *Disclaimer: This is our option and does constitute a recommendation or financial advice. Do your own research. *

Price
7
Condition
9
Location
9
Land
8
Bedrooms
3
Bathrooms
2
Sqft (est)
1,125.91

The heatmap indicates the level of crime in the area. The color of the heatmap indicates the crime severity and recency.

Metrics Year-on-Year

Average area value
499,500.00 £
Increased by 16.96 %
from 427,069.00 £
Est sale value
405,327.60 £
Decreased by 4.00 %
from 422,216.25 £
Average area rental value
1,072.00 £/mo
Increased by 1.52 %
from 1,056.00 £/mo
Est letting value
0.00 £/mo
from 0.00 £/mo
Est rental Yield
2.58 %
Decreased by 13.13 %
from 2.97 %
Crime Rate
0.00 %
from 0.00 %

Agent Activity

  • Stags created the listing.

Nearby Schools

NameTypeOfstedDistance
Ilsham Church Of England AcademyAcademy ConverterGood0.96 KM
Warberry Cofe AcademyAcademy ConverterGood1.07 KM
All Saints Babbacombe Cofe Primary SchoolAcademy ConverterGood1.58 KM
Torquay Children'S CentreChildren's Centre2.06 KM
The Spires CollegeFoundation SchoolGood2.15 KM

Images

view3.jpg view5.jpg 1237436 (4).jpg 1237436 (5).jpg 1237436 (2).jpg 1237436 (3).jpg 1237436 (7).jpg 1237436 (6).jpg 1237436 (11).jpg 1237436 (8).jpg 1237436 (9).jpg view1.jpg 67a2848f18998-1237436 (6).jpg 67a2851d548c9-1237436 (20).jpg 67a28514df4c3-1237436 (19).jpg 67a284936c4e1-1237436 (7).jpg

Nearby Streets

NameAverage PriceAverage SqftDistance
Hardy Close £ 000.00 KM
Kelly Close £ 1,200,00000.00 KM
Vanehill Road £ 340,00000.00 KM
Torwood Gardens Road £ 000.00 KM
Vernon Close £ 2,000,00000.00 KM

Nearby Transport

NameNLCTLCDistance
Torquay3434TQY3.49 KM
Torre3432TRR4.10 KM
Paignton3427PGN6.53 KM
Teignmouth3430TGM9.95 KM

Nearby Listings

AddressPriceTypeScoreDistance
Middle Lincombe Road, Torquay £ 400,000BUY8 / 100.00 KM
Lincombe Drive, Torquay, Devon, TQ1 2LW £ 425,000BUYUnknown0.06 KM
Courtlands, Higher Lincombe Road £ 189,000BUY6 / 100.07 KM
Lincombe Drive, Torquay £ 685,000BUY8 / 100.07 KM
Middle Lincombe Road, Torquay, TQ1 2EX £ 2,200,000BUY8 / 100.07 KM

Nearby Properties

AddressPriceDistance
Olde Court Cottage £ 290,0000.07 KM
Summerhill £ 950,0000.07 KM
Olde Court Coach House £ 560,0000.07 KM
Lyncourt Lodge £ 480,0000.10 KM
Greville Cottage £ 230,0000.10 KM