TH
Ledgers Road, Slough, Berkshire, SL1
By The Frost Partnership
£ 350,000
Reviews
3 out of 5 stars
The Frost Partnership says ..
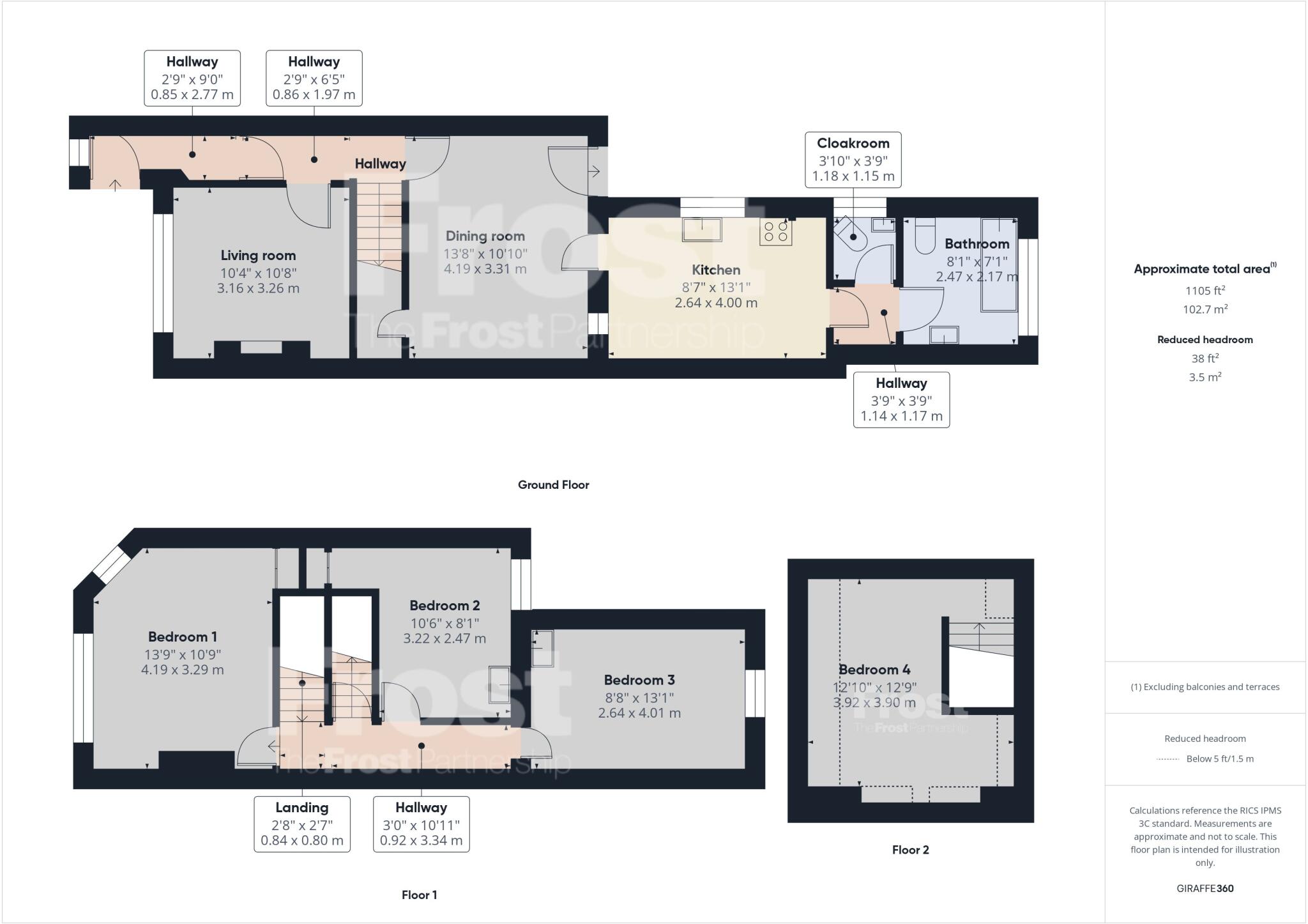
A four bedroom, two reception terraced house offering versatile accommodation situated within walking distance of local shops, amenities, Slough town centre and train station (Elizabeth Line) and the M4 at junction 5 or 6. The property consists of an entrance hall leading to a living room, d...
Property Oracle says ..
Therefore, we give this property 6 / 10. *Disclaimer: This is our option and does constitute a recommendation or financial advice. Do your own research. *
- Price
- 7
- Condition
- 4
- Location
- 7
- Land
- 6
- Bedrooms
- 4
- Bathrooms
- 1
The heatmap indicates the level of crime in the area. The color of the heatmap indicates the crime severity and recency.
Metrics Year-on-Year
- Average area value
- 364,766.00 £Decreased by 2.54 %
- Average area rental value
- 1,277.00 £/moDecreased by 18.09 %
- Est rental Yield
- 4.20 %Decreased by 16.00 %
- Crime Rate
- 3.00 %Unchanged by 0.00 %
from 374,277.00 £
from 1,559.00 £/mo
from 5.00 %
from 3.00 %
Agent Activity
The Frost Partnership created the listing.
Nearby Schools
| Name | Type | Ofsted | Distance |
|---|---|---|---|
| St Mary'S Church Of England Primary School | Voluntary Controlled School | Good | 0.19 KM |
| Yew Tree Road Children'S Centre | Children's Centre | 0.20 KM | |
| Long Close School | Other Independent School | 0.21 KM | |
| Upton Court Grammar School | Academy Converter | 0.72 KM | |
| St Bernard'S Preparatory School | Other Independent School | 1.10 KM |
Images
Nearby Streets
| Name | Average Price | Average Sqft | Distance |
|---|---|---|---|
| Yew Tree Road | £ 0 | 0 | 0.00 KM |
| Mountbatten Close | £ 0 | 0 | 0.00 KM |
| Merton Road | £ 600,000 | 0 | 0.00 KM |
| A412 | £ 0 | 0 | 0.00 KM |
| Grove Close | £ 210,000 | 0 | 0.00 KM |
Nearby Transport
| Name | NLC | TLC | Distance |
|---|---|---|---|
| Slough | 3172 | SLO | 1.16 KM |
| Datchet | 5668 | DAT | 2.37 KM |
| Windsor And Eton Riverside | 5672 | WNR | 3.09 KM |
| Windsor And Eton Central | 3175 | WNC | 3.58 KM |
| Sunnymeads | 5675 | SNY | 4.68 KM |
Nearby Listings
| Address | Price | Type | Score | Distance |
|---|---|---|---|---|
| Ledgers Road, Slough, Berkshire, SL1 | £ 350,000 | BUY | 6 / 10 | 0.00 KM |
| Upton Road, Slough | £ 230,000 | BUY | 4 / 10 | 0.04 KM |
| Upton Road, SLOUGH | £ 494,000 | BUY | 5 / 10 | 0.25 KM |
| Upton Road, Slough | £ 460,000 | BUY | 6 / 10 | 0.25 KM |
| Upton Road, Slough, SL1 | £ 375,000 | BUY | 5 / 10 | 0.25 KM |
Nearby Properties
| Address | Price | Distance |
|---|---|---|
| 115 Upton Road | £ 512,000 | 0.05 KM |
| 133 Upton Road | £ 510,000 | 0.05 KM |
| 145a Upton Road | £ 249,500 | 0.05 KM |
| 105 Upton Road | £ 110,000 | 0.05 KM |
| 147 Upton Road | £ 520,000 | 0.05 KM |