Streets Ahead says ..
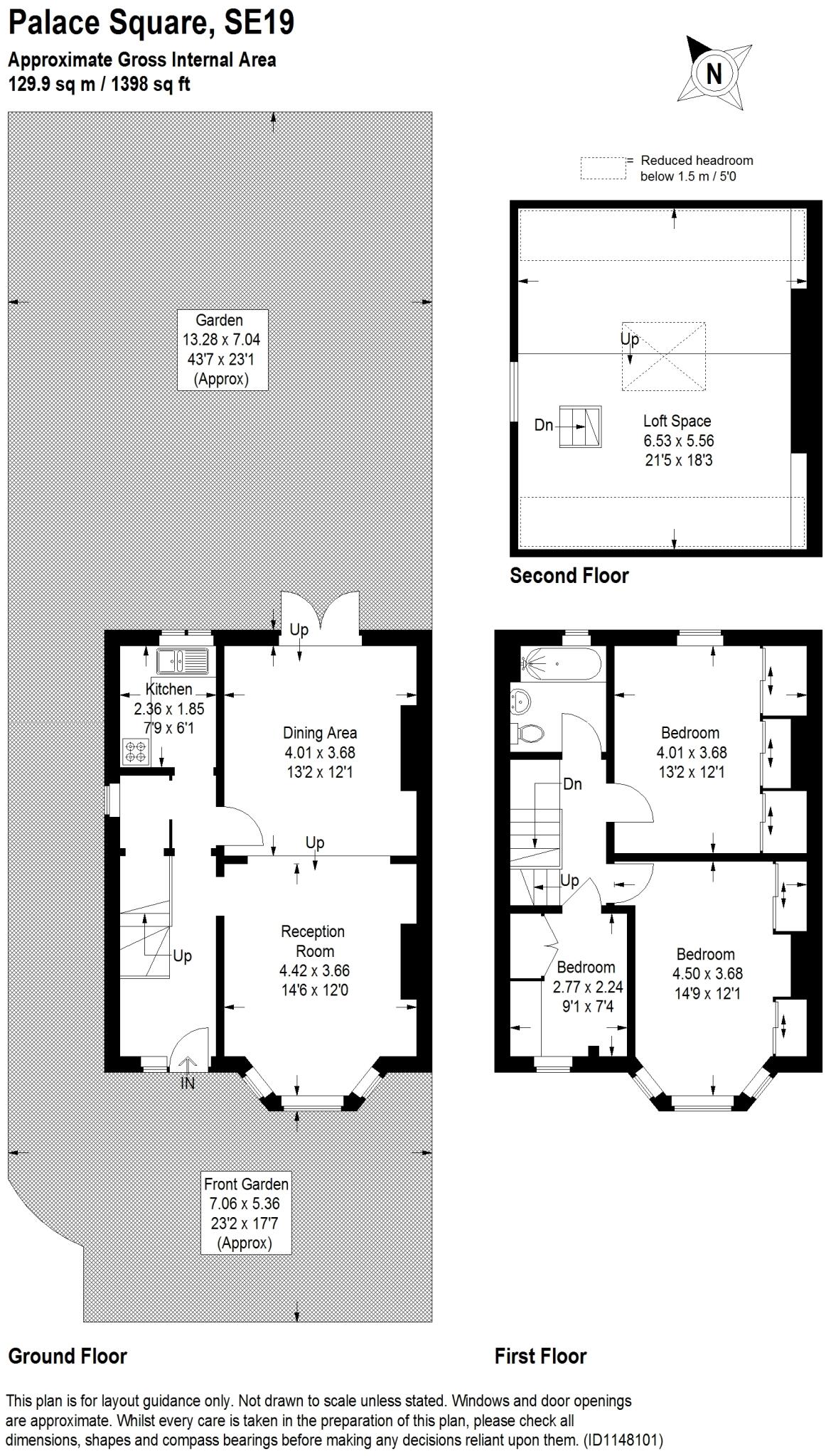
Coming to the market for the first time in over 50 years, this three-bedroom end-of-terrace period family home boasts over 1390 sqft of generous living space. Features include a 14ft reception, 13ft dining area, offstreet parking, a well maintained mature garden, and off street parking.
Property Oracle says ..
This three-bedroom end-of-terrace house in Crystal Palace, London, is presented for sale at £800,000. The property boasts a generous living space of over 1398 sq ft and benefits from off-street parking and a garden. The location is a significant positive, given Crystal Palace’s reputation as a desirable residential area with good transport connections and well-regarded schools within a short distance. The property is very close to Crystal Palace Overground station. However, the property’s condition requires consideration. Images reveal that the kitchen and bathroom facilities are outdated and could benefit from significant renovation. The decor throughout also appears dated. Whilst the home is spacious and benefits from a garden, potential buyers should factor in renovation costs to bring it up to modern standards. This could potentially offset the asking price. Comparing the listing to other properties in the area is challenging due to a lack of precise square footage information for the nearby listed properties. However, based on the information provided, the asking price does seem relatively in line with the market in the area, particularly when accounting for the potential for added value upon renovation. Overall, this property represents a good opportunity for those willing to undertake renovations, given its excellent location in Crystal Palace. A thorough survey is recommended before purchasing. Potential buyers should also factor in renovation costs which could potentially add value, but requires careful budget planning. Potential buyers should also check and obtain an accurate property survey to confirm the condition of the property before committing to a purchase.
Therefore, we give this property 6 / 10. *Disclaimer: This is our option and does constitute a recommendation or financial advice. Do your own research. *
- Price
- 7
- Condition
- 5
- Location
- 7
- Land
- 6
- Bedrooms
- 3
- Bathrooms
- 1
- Sqft (est)
- 1,398.00
The heatmap indicates the level of crime in the area. The color of the heatmap indicates the crime severity and recency.
Metrics Year-on-Year
- Average area value
- 445,000.00 £Increased by 0.77 %
- Est sale value
- 933,864.00 £Increased by 14.58 %
- Average area rental value
- 1,900.00 £/moIncreased by 9.38 %
- Est letting value
- 2,796.00 £/moUnchanged by 0.00 %
- Est rental Yield
- 5.12 %Increased by 8.47 %
- Crime Rate
- 5.00 %Unchanged by 0.00 %
Agent Activity
Streets Ahead created the listing.
Nearby Schools
| Name | Type | Ofsted | Distance |
|---|---|---|---|
| Harris City Academy Crystal Palace | Academy Sponsor Led | Outstanding | 0.62 KM |
| Paxton Primary School | Community School | Outstanding | 0.74 KM |
| James Dixon Primary School | Academy Converter | Good | 1.07 KM |
| Cypress Primary School | Academy Sponsor Led | Good | 1.25 KM |
| All Saints Cofe Primary School | Voluntary Aided School | Good | 1.25 KM |
Images
Nearby Streets
| Name | Average Price | Average Sqft | Distance |
|---|---|---|---|
| Belvedere Road | £ 0 | 0 | 0.00 KM |
| Brunswick Place | £ 0 | 0 | 0.00 KM |
| Crystal Palace Parade | £ 650,000 | 0 | 0.00 KM |
| Tudor Road | £ 0 | 0 | 0.00 KM |
| Bowley Close | £ 0 | 0 | 0.00 KM |
Nearby Transport
| Name | NLC | TLC | Distance |
|---|---|---|---|
| Crystal Palace | 5356 | CYP | 0.44 KM |
| Gipsy Hill | 5363 | GIP | 1.15 KM |
| Anerley | 5397 | ANZ | 1.30 KM |
| Penge West | 5378 | PNW | 1.73 KM |
| Sydenham Hill | 5085 | SYH | 1.78 KM |
Nearby Listings
| Address | Price | Type | Score | Distance |
|---|---|---|---|---|
| Palace Square, London, SE19 | £ 800,000 | BUY | 6 / 10 | 0.00 KM |
| Palace Square, London, SE19 | £ 400,000 | BUY | 8 / 10 | 0.04 KM |
| Palace Square Crystal Palace | £ 440,000 | BUY | 5 / 10 | 0.04 KM |
| Cintra Park, London, SE19 | £ 375,000 | BUY | 7 / 10 | 0.07 KM |
| Cintra Park, Crystal Palace, London, SE19 | £ 475,000 | BUY | Unknown | 0.07 KM |
Nearby Properties
| Address | Price | Distance |
|---|---|---|
| 37b Palace Square | £ 585,000 | 0.06 KM |
| 47 Palace Square | £ 855,000 | 0.06 KM |
| 21 Palace Square | £ 510,000 | 0.06 KM |
| 37a Palace Square | £ 192,500 | 0.06 KM |
| 54 Palace Square | £ 425,000 | 0.07 KM |