JA
Blenheim Road, Sutton, SM1
By James Bailey Sales & Lettings
£ 475,000
Reviews
3 out of 5 stars
James Bailey Sales & Lettings says ..
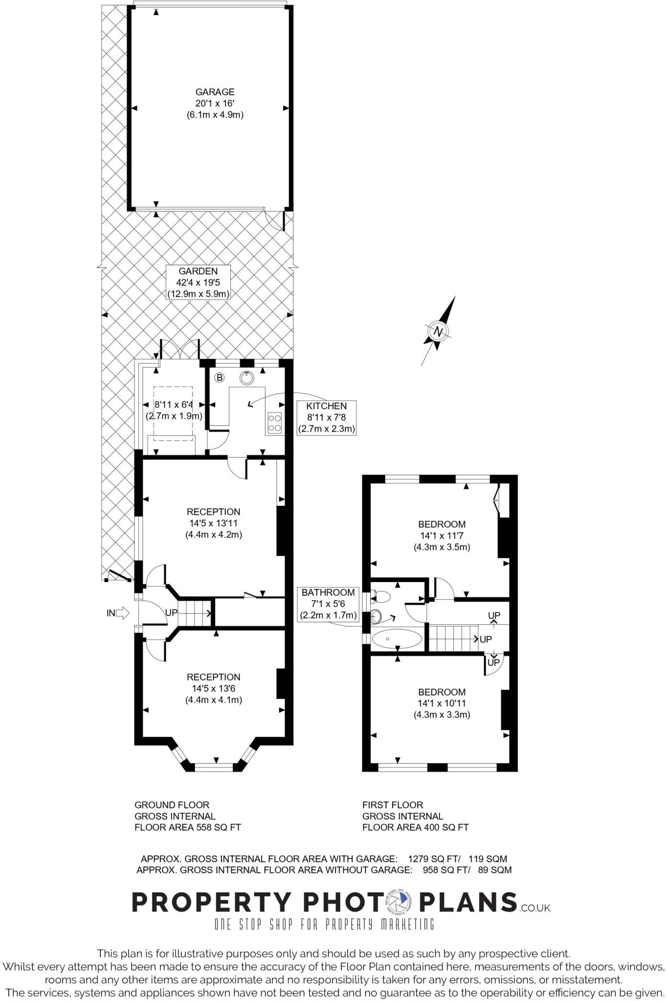
James Bailey is proud to present this wonderful two double bedroom semi detached family home. Offered in good condition throughout, the property has a spacious but cosy front reception room, a dining room, kitchen and conservatory. There is direct access out to the private garden with a garage at...
Property Oracle says ..
Therefore, we give this property 7 / 10. *Disclaimer: This is our option and does constitute a recommendation or financial advice. Do your own research. *
- Price
- 7
- Condition
- 6
- Location
- 8
- Land
- 7
- Bedrooms
- 2
- Bathrooms
- 1
- Sqft (est)
- 1,956.30
The heatmap indicates the level of crime in the area. The color of the heatmap indicates the crime severity and recency.
Metrics Year-on-Year
- Average area value
- 364,000.00 £Decreased by 29.95 %
- Est sale value
- 522,332.10 £Decreased by 53.08 %
- Average area rental value
- 1,700.00 £/moDecreased by 10.62 %
- Est letting value
- 1,956.30 £/moDecreased by 50.00 %
- Est rental Yield
- 5.60 %Increased by 27.56 %
- Crime Rate
- 1.00 %Unchanged by 0.00 %
from 519,658.00 £
from 1,113,134.70 £
from 1,902.00 £/mo
from 3,912.60 £/mo
from 4.39 %
from 1.00 %
Agent Activity
James Bailey Sales & Lettings created the listing.
Nearby Schools
| Name | Type | Ofsted | Distance |
|---|---|---|---|
| Westbourne Primary School | Academy Converter | 0.67 KM | |
| All Saints Benhilton Cofe Primary School | Voluntary Aided School | Good | 0.69 KM |
| Glenthorne High School | Academy Converter | Outstanding | 0.87 KM |
| Robin Hood Junior School | Community School | Good | 0.97 KM |
| The Limes College | Academy Alternative Provision Converter | 1.11 KM |
Images
Nearby Streets
| Name | Average Price | Average Sqft | Distance |
|---|---|---|---|
| All Saints Road | £ 400,000 | 0 | 0.00 KM |
| Vale Road | £ 0 | 0 | 0.00 KM |
| Bushey Road | £ 0 | 0 | 0.00 KM |
| Anderson Close | £ 0 | 0 | 0.00 KM |
| Anton Crescent | £ 0 | 0 | 0.00 KM |
Nearby Transport
| Name | NLC | TLC | Distance |
|---|---|---|---|
| Sutton Common | 5436 | SUC | 0.19 KM |
| West Sutton | 5293 | WSU | 1.22 KM |
| Sutton | 5385 | SUO | 1.77 KM |
| St Helier | 5290 | SIH | 1.77 KM |
| Morden South | 5291 | MDS | 2.47 KM |
Nearby Listings
| Address | Price | Type | Score | Distance |
|---|---|---|---|---|
| Blenheim Road, Sutton, SM1 | £ 475,000 | BUY | 7 / 10 | 0.00 KM |
| Blenheim Road, Sutton | £ 725,000 | BUY | Unknown | 0.03 KM |
| Farrier Place, Sutton | £ 700,000 | BUY | 5 / 10 | 0.08 KM |
| Ref: SM - Sutton Common Road, Sutton, SM1 3HN | £ 775,000 | BUY | Unknown | 0.11 KM |
| Sutton Common Road, Sutton | £ 250,000 | BUY | 7 / 10 | 0.14 KM |
Nearby Properties
| Address | Price | Distance |
|---|---|---|
| 9 Farrier Place | £ 365,000 | 0.06 KM |
| 7 Farrier Place | £ 230,000 | 0.06 KM |
| 4 Farrier Place | £ 398,000 | 0.06 KM |
| 33 Blenheim Road | £ 441,500 | 0.07 KM |
| 11 Blenheim Road | £ 408,000 | 0.07 KM |