WI
Manchester Road, Lostock Gralam, CW9
By Williams Estates
£ 360,000
Williams Estates says ..
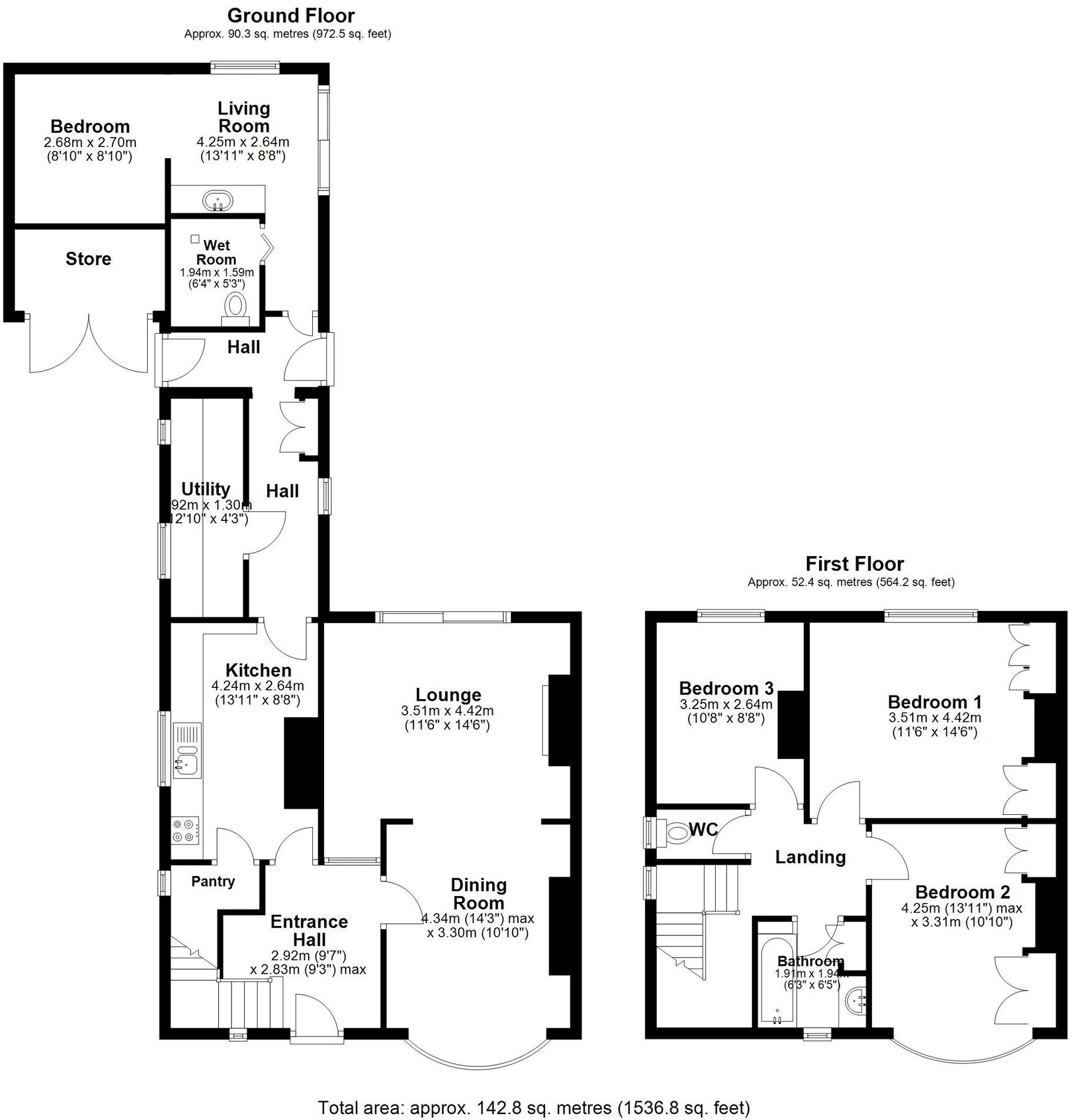
Larger than average, semi-detached family home, located on the outskirts of the town. GFCH & DG. Wide entrance hall, two reception rooms, kitchen, pantry, utility room, ground floor studio, wet room, first floor landing, three double bedrooms, bathroom & WC. Large garden, ample off road parking.
- Bedrooms
- 3
- Bathrooms
- 2
The heatmap indicates the level of crime in the area. The color of the heatmap indicates the crime severity and recency.
Metrics Year-on-Year
- Average area value
- 258,571.00 £Decreased by 18.16 %
- Average area rental value
- 1,230.00 £/moIncreased by 21.30 %
- Est rental Yield
- 5.71 %Increased by 48.31 %
- Crime Rate
- 27.00 %Unchanged by 0.00 %
from 315,930.00 £
from 1,014.00 £/mo
from 3.85 %
from 27.00 %
Agent Activity
Williams Estates created the listing.
Nearby Schools
| Name | Type | Ofsted | Distance |
|---|---|---|---|
| Lostock Gralam Cofe Primary School | Voluntary Controlled School | Good | 0.26 KM |
| Wincham Community Primary School | Community School | Outstanding | 1.71 KM |
| The Rudheath Senior Academy | Academy Sponsor Led | Good | 2.93 KM |
| Rudheath Primary Academy And Nursery | Academy Sponsor Led | Good | 3.14 KM |
| Victoria Road Primary School | Academy Converter | Requires improvement | 4.42 KM |
Images
Nearby Streets
| Name | Average Price | Average Sqft | Distance |
|---|---|---|---|
| Lodge Lane | £ 0 | 0 | 0.00 KM |
| Roberts Road | £ 0 | 0 | 0.00 KM |
| Arthur Street | £ 0 | 0 | 0.00 KM |
| Rosetree Meadow | £ 585,000 | 0 | 0.00 KM |
| Saint Johns Avenue | £ 185,000 | 0 | 0.00 KM |
Nearby Transport
| Name | NLC | TLC | Distance |
|---|---|---|---|
| Lostock Gralam | 2307 | LTG | 0.56 KM |
| Northwich | 2326 | NWI | 4.01 KM |
| Plumley | 2308 | PLM | 4.71 KM |
| Greenbank | 2325 | GBK | 8.28 KM |
| Winsford | 2269 | WSF | 9.72 KM |
Nearby Listings
| Address | Price | Type | Score | Distance |
|---|---|---|---|---|
| Manchester Road, Lostock Gralam, CW9 | £ 360,000 | BUY | Unknown | 0.00 KM |
| Manchester Road, Lostock Gralam | £ 290,000 | BUY | 7 / 10 | 0.07 KM |
| Lodge Lane, Lostock Gralam, Northwich | £ 275,000 | BUY | 6 / 10 | 0.10 KM |
| School Lane, Lostock Gralam | £ 225,000 | BUY | 7 / 10 | 0.17 KM |
| School Lane, Lostock Gralam, Northwich | £ 130,000 | BUY | 6 / 10 | 0.20 KM |
Nearby Properties
| Address | Price | Distance |
|---|---|---|
| 16 Holford Avenue | £ 190,000 | 0.06 KM |
| 7 Holford Avenue | £ 131,600 | 0.06 KM |
| 5 Holford Avenue | £ 157,000 | 0.06 KM |
| 4 Holford Avenue | £ 140,500 | 0.06 KM |
| 8 Holford Avenue | £ 153,250 | 0.06 KM |