Pedder says ..
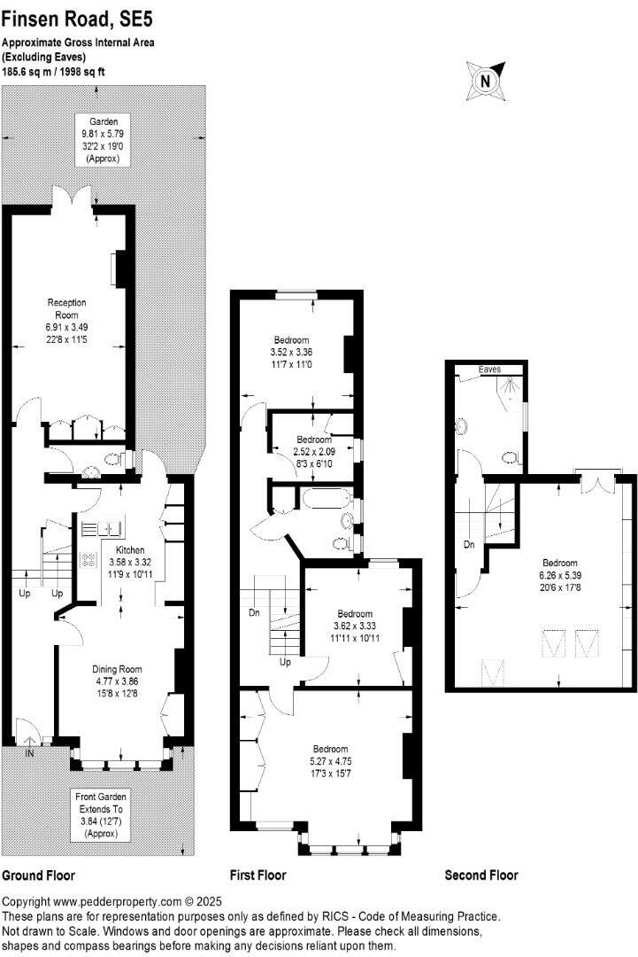
We are delighted to bring to the market this four/five bedroom Edwardian semi-detached house on Finsen Road, a sought after road overlooking the delights of Ruskin Park, SE5. The property is immaculately presented throughout, retains a host of original & restored features to include cor...
Property Oracle says ..
This property is a 5 bedroom, 2 bathroom house located on Finsen Road, in the desirable Herne Hill area of Camberwell, South East London. The property benefits from a large garden, and is close to local amenities and transport links. The house itself is a traditional property which has been well maintained and is presented in good condition throughout. The property is listed at £1,400,000 which is above the average price for the area. However, given the size, location and condition of the property, this price may be justified.
Therefore, we give this property 8 / 10. *Disclaimer: This is our option and does constitute a recommendation or financial advice. Do your own research. *
- Price
- 7
- Condition
- 9
- Location
- 9
- Land
- 8
- Bedrooms
- 5
- Bathrooms
- 2
- Sqft (est)
- 840.00
- Lot (est)
- 1,998.00
The heatmap indicates the level of crime in the area. The color of the heatmap indicates the crime severity and recency.
Metrics Year-on-Year
- Average area value
- 795,417.00 £Increased by 12.21 %
- Est sale value
- 419,160.00 £Decreased by 44.49 %
- Average area rental value
- 2,268.00 £/moDecreased by 0.48 %
- Est letting value
- 840.00 £/moDecreased by 50.00 %
- Est rental Yield
- 3.42 %Decreased by 11.40 %
- Crime Rate
- 2.00 %Unchanged by 0.00 %
Agent Activity
Pedder marked this listing as sold.
Pedder created the listing.
Nearby Schools
| Name | Type | Ofsted | Distance |
|---|---|---|---|
| St Saviour'S Church Of England Primary School | Voluntary Aided School | Good | 0.12 KM |
| The Michael Tippett School | Community Special School | Good | 0.43 KM |
| Jessop Primary School | Community School | Outstanding | 0.66 KM |
| Jessop Primary School & Children'S Centre | Children's Centre | 0.66 KM | |
| The Hospital And Home Tuition Sick Children'S Service | Miscellaneous | 0.72 KM |
Images
Nearby Streets
| Name | Average Price | Average Sqft | Distance |
|---|---|---|---|
| Tram Close | £ 0 | 0 | 0.00 KM |
| Deepdene Road | £ 0 | 0 | 0.00 KM |
| Gordon Grove | £ 0 | 0 | 0.00 KM |
| Wickwood Street | £ 0 | 0 | 0.00 KM |
| Ruskin Park House | £ 0 | 0 | 0.00 KM |
Nearby Transport
| Name | NLC | TLC | Distance |
|---|---|---|---|
| Loughborough Junction | 5082 | LGJ | 0.65 KM |
| Denmark Hill | 5421 | DMK | 0.96 KM |
| Herne Hill | 5066 | HNH | 1.31 KM |
| North Dulwich | 5429 | NDL | 1.43 KM |
| East Dulwich | 5358 | EDW | 1.82 KM |
Nearby Listings
| Address | Price | Type | Score | Distance |
|---|---|---|---|---|
| Finsen Road, Camberwell, SE5 | £ 1,400,000 | BUY | 8 / 10 | 0.00 KM |
| Finsen Road, Denmark Hill, London, SE5 | £ 1,400,000 | BUY | 8 / 10 | 0.01 KM |
| Finsen Road, London | £ 1,175,000 | BUY | 7 / 10 | 0.03 KM |
| Bicknell Road, Herne Hill, London, SE5 | £ 1,175,000 | BUY | Unknown | 0.05 KM |
| Bicknell Road, Camberwell, SE5 | £ 800,000 | BUY | 6 / 10 | 0.06 KM |
Nearby Properties
| Address | Price | Distance |
|---|---|---|
| 36 Finsen Road | £ 290,000 | 0.02 KM |
| 7 Finsen Road | £ 421,250 | 0.02 KM |
| 38 Finsen Road | £ 1,000,000 | 0.02 KM |
| 19 Finsen Road | £ 810,000 | 0.02 KM |
| 23 Finsen Road | £ 700,000 | 0.02 KM |