St Peters Place, Fleetwood, Lancashire, FY7
By Unique Estate Agency Ltd
£ 260,000
Reviews
2 out of 5 stars
Unique Estate Agency Ltd says ..
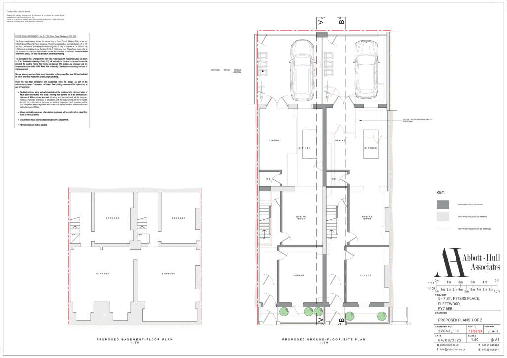
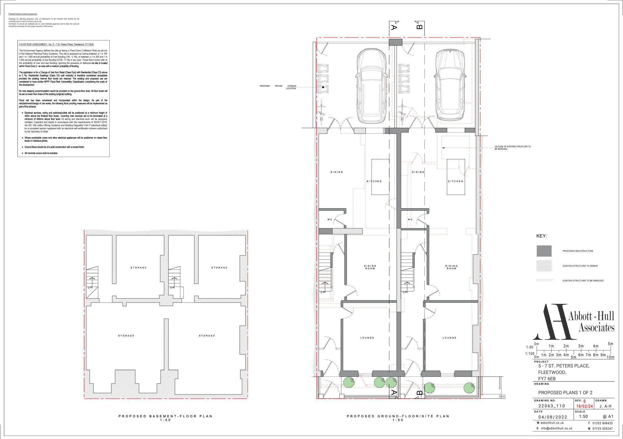
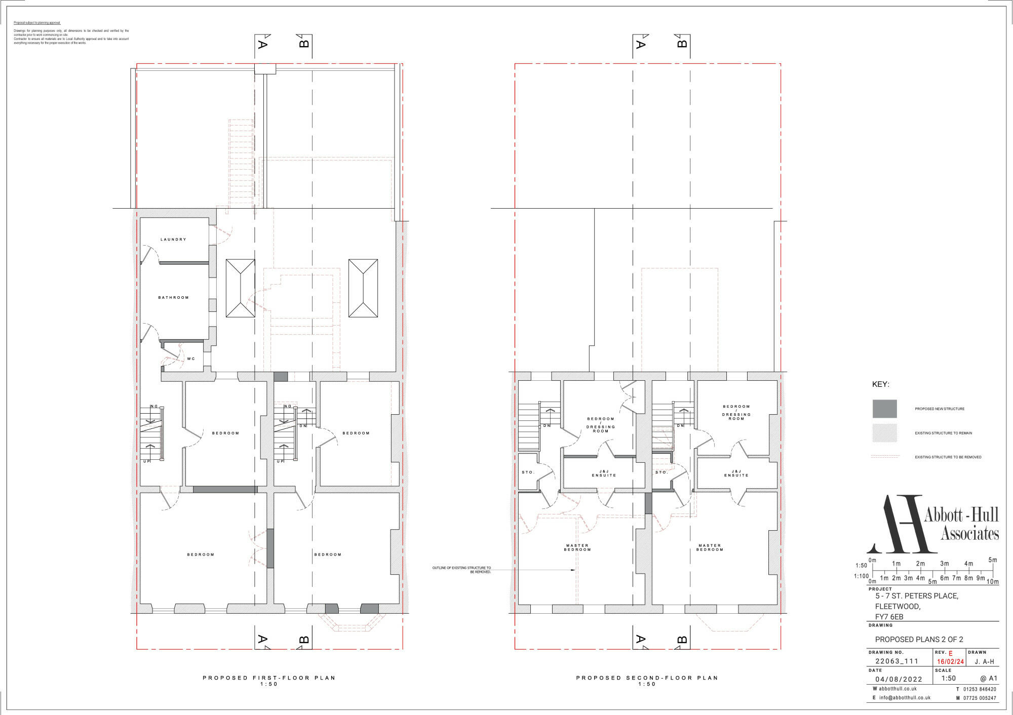
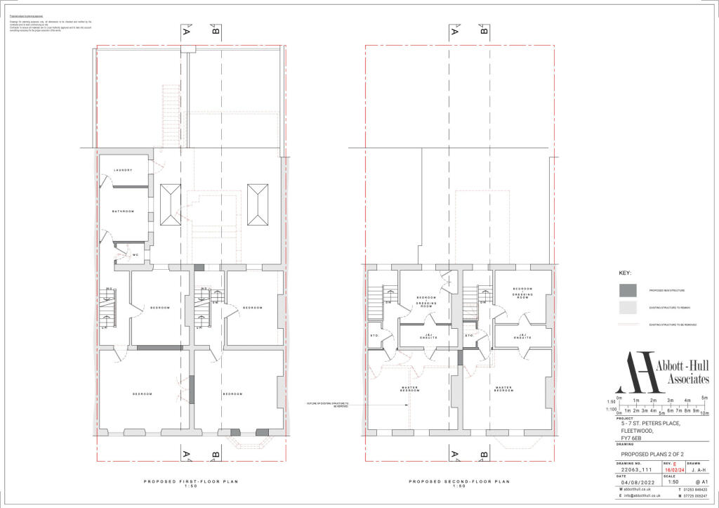
**Development Opportunity** Rare Opportunity Has Arisen To Purchase An Extremely Large Plot With Planning Permission In Place For TWO, FOUR Bedroom, Three Storey Family Homes PLUS Cellar. Situated In A Most Sought After Location With St Peter's Church Views! Close To Lord Street Shops &...
Property Oracle says ..
This property at St Peter’s Place, Fleetwood, presents a unique investment opportunity. The listing highlights its potential for development, presenting itself as a chance to build two four-bedroom houses. The existing structure, however, is currently in a state of disrepair, requiring complete renovation. Photos reveal exposed brickwork, suggesting that the renovation will be extensive and costly. The exact plot size is not provided, but the architectural plans show that the plot of land is relatively small for building two properties. While the location benefits from proximity to local amenities, a church, and some schools, it is not a central location and is located in a smaller town. The listing price of £260,000 is somewhat ambiguous given that a significant investment in renovation work is necessary. Overall, this property is a high-risk, high-reward proposition, suitable for experienced developers or investors who can recognize the potential beyond the current state of disrepair, considering the risk associated with development. Further due diligence is crucial, including a thorough structural survey and cost assessment before committing to a purchase.
Therefore, we give this property 4 / 10. *Disclaimer: This is our option and does constitute a recommendation or financial advice. Do your own research. *
- Price
- 6
- Condition
- 3
- Location
- 7
- Land
- 2
- Bedrooms
- 4
- Bathrooms
- 2
The heatmap indicates the level of crime in the area. The color of the heatmap indicates the crime severity and recency.
Metrics Year-on-Year
- Average area value
- 149,279.00 £Increased by 11.60 %
- Average area rental value
- 713.00 £/moIncreased by 19.23 %
- Est rental Yield
- 5.73 %Increased by 6.90 %
- Crime Rate
- 43.00 %Unchanged by 0.00 %
Agent Activity
Unique Estate Agency Ltd created the listing.
Nearby Schools
| Name | Type | Ofsted | Distance |
|---|---|---|---|
| Sure Start Fleetwood Children'S Centre | Children's Centre | 0.15 KM | |
| St Mary'S Catholic Primary School, Fleetwood | Voluntary Aided School | Good | 0.43 KM |
| Fleetwood Chaucer Community Primary School | Community School | Requires improvement | 0.98 KM |
| Shakespeare Primary School | Community School | Outstanding | 2.20 KM |
| St Wulstan'S And St Edmund'S Catholic Primary School And Nursery | Voluntary Aided School | Requires improvement | 2.57 KM |
Images
Nearby Streets
| Name | Average Price | Average Sqft | Distance |
|---|---|---|---|
| Albert Street | £ 0 | 0 | 0.00 KM |
| Queen Street | £ 0 | 0 | 0.00 KM |
| A585 | £ 0 | 0 | 0.00 KM |
| Deepdale Road | £ 84,950 | 0 | 0.00 KM |
| Darbishire Road | £ 350,000 | 0 | 0.00 KM |
Nearby Transport
| Name | NLC | TLC | Distance |
|---|---|---|---|
| Poulton-Le-Fylde | 2671 | PFY | 8.65 KM |
Nearby Listings
| Address | Price | Type | Score | Distance |
|---|---|---|---|---|
| St Peters Place, Fleetwood, Lancashire, FY7 | £ 260,000 | BUY | 4 / 10 | 0.00 KM |
| St Peters Place, Fleetwood, FY7 | £ 225,000 | BUY | Unknown | 0.01 KM |
| 5 - 7 St. Peters Place, Fleetwood, Lancashire FY7 6EB | £ 160,000 | BUY | 4 / 10 | 0.04 KM |
| Warren Street, Fleetwood, FY7 | £ 119,950 | BUY | 6 / 10 | 0.09 KM |
| Adelaide Street, Fleetwood, FY7 | £ 112,000 | BUY | 6 / 10 | 0.11 KM |
Nearby Properties
| Address | Price | Distance |
|---|---|---|
| 21 St Peters Place | £ 175,000 | 0.01 KM |
| Rear Of 7 St Peters Place | £ 60,000 | 0.01 KM |
| 27 St Peters Place | £ 19,000 | 0.01 KM |
| 25 St Peters Place | £ 159,000 | 0.01 KM |
| 29 St Peters Place | £ 149,950 | 0.01 KM |