Ash Cottage, Sunny Bank Road, Windermere, LA23 2EN
By Matthews Benjamin
£ 465,000
Reviews
3 out of 5 stars
Matthews Benjamin says ..
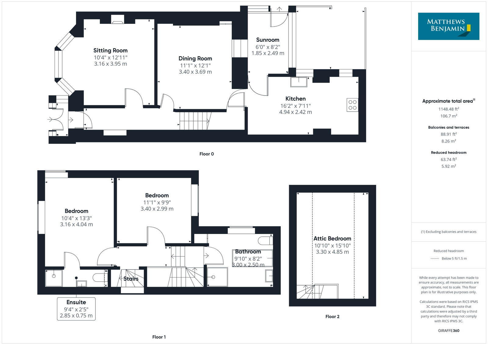
Ash Cottage is a delightful 3-bedroom semi-detached traditional Lakeland stone cottage dating back to the early 19th century. The property has been lovingly cared for by the present owners and retain many original features including stripped pine doors, high ceilings with coving and deep skirt...
Property Oracle says ..
Ash Cottage is a charming 3-bedroom semi-detached property located in Windermere, Cumbria. The property benefits from a good location, close to local amenities and schools, and appears to be well-maintained and presented. While the plot size is not specified, the property includes a small, well-maintained garden with a patio area. The list price of £465,000 is slightly below the average price for the area, and given the property’s condition and location, it could be considered good value. However, further information on the plot size would be beneficial in providing a more comprehensive analysis.
Therefore, we give this property 7 / 10. *Disclaimer: This is our option and does constitute a recommendation or financial advice. Do your own research. *
- Price
- 8
- Condition
- 9
- Location
- 9
- Land
- 4
- Bedrooms
- 3
- Bathrooms
- 2
- Sqft (est)
- 1,148.51
The heatmap indicates the level of crime in the area. The color of the heatmap indicates the crime severity and recency.
Metrics Year-on-Year
- Average area value
- 603,889.00 £Increased by 40.02 %
- Est sale value
- 574,255.00 £Increased by 46.63 %
- Average area rental value
- 1,340.00 £/moIncreased by 1.44 %
- Est letting value
- 1,148.51 £/moUnchanged by 0.00 %
- Est rental Yield
- 2.66 %Decreased by 27.72 %
- Crime Rate
- 3.00 %Unchanged by 0.00 %
Agent Activity
Matthews Benjamin marked this listing as sold.
Matthews Benjamin created the listing.
Nearby Schools
| Name | Type | Ofsted | Distance |
|---|---|---|---|
| St Cuthberts Catholic Primary School, Windermere | Academy Converter | 0.15 KM | |
| St Martin & St Mary Church Of England Primary School | Voluntary Aided School | Good | 0.18 KM |
| Lakes Surestart Children'S Centre | Children's Centre | 0.63 KM | |
| Goodly Dale Primary School | Community School | Good | 0.63 KM |
| The Lakes School | Community School | Good | 2.76 KM |
Images
Nearby Streets
| Name | Average Price | Average Sqft | Distance |
|---|---|---|---|
| Holly Road | £ 0 | 0 | 0.00 KM |
| Woodland Close | £ 0 | 0 | 0.00 KM |
| Salisbury Place | £ 450,000 | 0 | 0.00 KM |
| Havelock Road | £ 322,998 | 0 | 0.00 KM |
| Park View | £ 495,000 | 0 | 0.00 KM |
Nearby Transport
| Name | NLC | TLC | Distance |
|---|---|---|---|
| Windermere | 1978 | WDM | 1.03 KM |
| Staveley (Cumbria) | 1977 | SVL | 9.85 KM |
Nearby Listings
| Address | Price | Type | Score | Distance |
|---|---|---|---|---|
| Ash Cottage, Sunny Bank Road, Windermere, LA23 2EN | £ 465,000 | BUY | 7 / 10 | 0.00 KM |
| Thorncliffe, Princes Road, Windermere, Cumbria, LA23 2DD | £ 495,000 | BUY | 6 / 10 | 0.04 KM |
| Sunnyside Up, Sunny Bank Road, Windermere | £ 330,000 | BUY | 6 / 10 | 0.09 KM |
| 2 Park View, Sunny Bank Road, Windermere, Cumbria, LA23 2EN | £ 445,000 | BUY | 8 / 10 | 0.14 KM |
| Oakghyll, Thornbarrow Road, Windermere, LA23 2DQ | £ 535,000 | BUY | 7 / 10 | 0.20 KM |
Nearby Properties
| Address | Price | Distance |
|---|---|---|
| Thorncliffe | £ 282,500 | 0.04 KM |
| Lunehurst | £ 479,000 | 0.06 KM |
| Ivythwaite | £ 645,000 | 0.06 KM |
| Mardlers | £ 650,000 | 0.09 KM |
| Blencathra | £ 375,000 | 0.09 KM |