Ridge Lane, Oldbury, Nuneaton, CV10
By Adam Purnell Estate Agents
£ 160,000
Reviews
3 out of 5 stars
Adam Purnell Estate Agents says ..
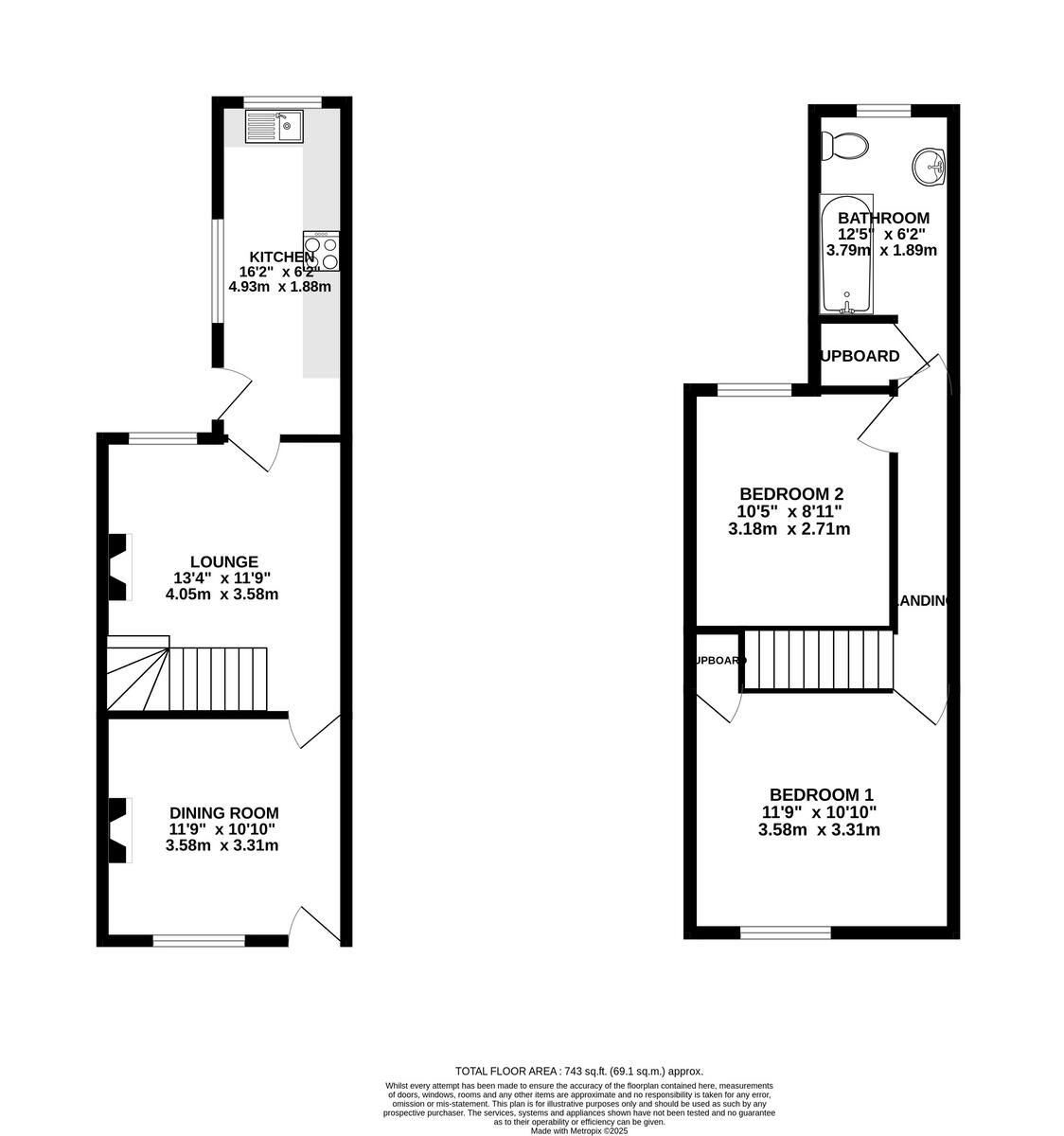
A charming two-bedroom terrace, near shops, a golf course & Brentley Park Wood. Features include two reception rooms with period details, a shaker style kitchen, south facing garden & stylish bathroom. Perfectly placed & well presented
Property Oracle says ..
Therefore, we give this property 7 / 10. *Disclaimer: This is our option and does constitute a recommendation or financial advice. Do your own research. *
- Price
- 8
- Condition
- 6
- Location
- 7
- Land
- 8
- Bedrooms
- 2
- Bathrooms
- 1
- Sqft (est)
- 682.09
The heatmap indicates the level of crime in the area. The color of the heatmap indicates the crime severity and recency.
Metrics Year-on-Year
- Average area value
- 388,798.00 £Increased by 21.11 %
- Est sale value
- 227,135.97 £Increased by 187.07 %
- Average area rental value
- 925.00 £/moIncreased by 48.00 %
- Est letting value
- 0.00 £/mo
- Est rental Yield
- 2.85 %Increased by 21.79 %
- Crime Rate
- 442.00 %Unchanged by 0.00 %
from 321,033.00 £
from 79,122.44 £
from 625.00 £/mo
from 0.00 £/mo
from 2.34 %
from 442.00 %
Agent Activity
Adam Purnell Estate Agents marked this listing as sold.
Adam Purnell Estate Agents created the listing.
Nearby Schools
| Name | Type | Ofsted | Distance |
|---|---|---|---|
| Nursery Hill Primary School | Community School | Requires improvement | 3.01 KM |
| Arc School Ansley | Other Independent Special School | Good | 3.33 KM |
| Outwoods Primary School | Community School | Good | 3.69 KM |
| Atherstone Nursery School | Local Authority Nursery School | Outstanding | 3.99 KM |
| Oneschool Global Uk | Other Independent School | 4.04 KM |
Images
Nearby Streets
| Name | Average Price | Average Sqft | Distance |
|---|---|---|---|
| Tom Pipers Close | £ 0 | 0 | 0.00 KM |
Nearby Transport
| Name | NLC | TLC | Distance |
|---|---|---|---|
| Atherstone | 1074 | ATH | 3.48 KM |
| Polesworth | 1078 | PSW | 9.69 KM |
Nearby Listings
| Address | Price | Type | Score | Distance |
|---|---|---|---|---|
| Ridge Lane, Oldbury, Nuneaton, CV10 | £ 160,000 | BUY | 7 / 10 | 0.00 KM |
| Tom Piper Close, Ridge Lane, Nuneaton, Warwickshire, CV10 | £ 77,000 | BUY | 7 / 10 | 0.11 KM |
| Tom Piper Close, Ridge Lane, Nuneaton | £ 84,000 | BUY | Unknown | 0.12 KM |
| Arden Forest Estate, Ridge Lane, Nuneaton | £ 225,000 | BUY | 7 / 10 | 0.13 KM |
| Arden Forest Estate, Ridge Lane, Nuneaton, Warwickshire, CV10 | £ 119,500 | BUY | Unknown | 0.13 KM |
Nearby Properties
| Address | Price | Distance |
|---|---|---|
| 126 Ridge Lane | £ 94,000 | 0.01 KM |
| 66 Ridge Lane | £ 120,000 | 0.01 KM |
| 88 Ridge Lane | £ 150,000 | 0.01 KM |
| 112 Ridge Lane | £ 91,200 | 0.01 KM |
| 56 Ridge Lane | £ 155,000 | 0.01 KM |