Kennard Terrace, Crumlin, NP113qf
By Cariad Property
£ 155,000
Reviews
3 out of 5 stars
Cariad Property says ..
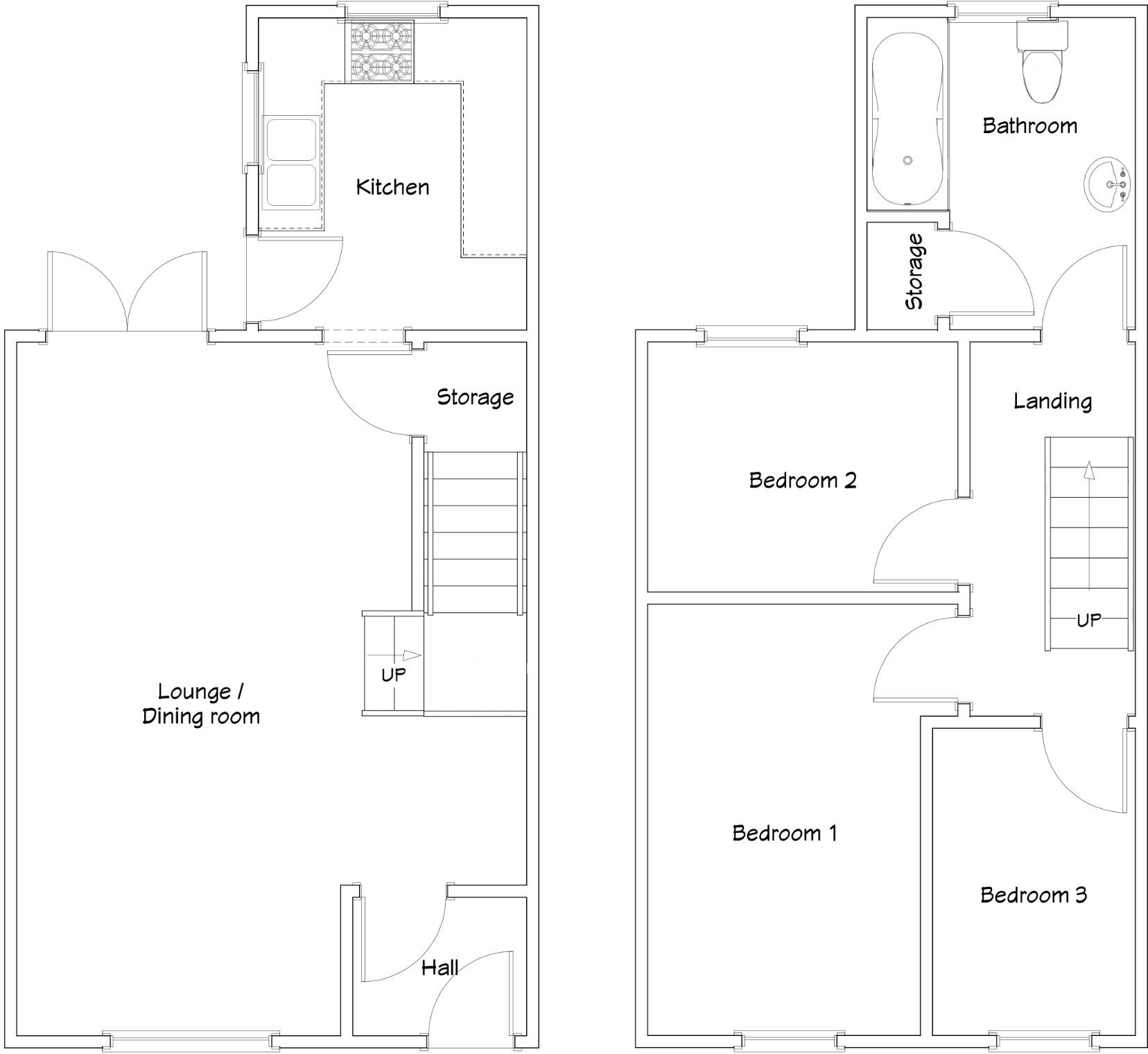
WONDERFUL FIRST TIME/FAMILY HOME, super spacious with a great open plan modern interior, three bedrooms, and a first-floor bathroom, lovely mature gardens, a pure gem.
Property Oracle says ..
Therefore, we give this property 7 / 10. *Disclaimer: This is our option and does constitute a recommendation or financial advice. Do your own research. *
- Price
- 8
- Condition
- 7
- Location
- 7
- Land
- 7
- Bedrooms
- 3
- Bathrooms
- 1
- Sqft (est)
- 869.00
The heatmap indicates the level of crime in the area. The color of the heatmap indicates the crime severity and recency.
Metrics Year-on-Year
- Average area value
- 219,115.00 £Increased by 18.08 %
- Est sale value
- 216,381.00 £Increased by 3.75 %
- Average area rental value
- 1,500.00 £/moIncreased by 50.30 %
- Est letting value
- 869.00 £/moUnchanged by 0.00 %
- Est rental Yield
- 8.21 %Increased by 27.29 %
- Crime Rate
- 5.00 %Unchanged by 0.00 %
from 185,563.00 £
from 208,560.00 £
from 998.00 £/mo
from 869.00 £/mo
from 6.45 %
from 5.00 %
Agent Activity
Cariad Property marked this listing as sold.
Cariad Property created the listing.
Nearby Schools
| Name | Type | Ofsted | Distance |
|---|---|---|---|
| Crumlin High Level Primary School | Welsh Establishment | 0.36 KM | |
| Tynewydd Primary School | Welsh Establishment | 1.03 KM | |
| Pantside Primary School | Welsh Establishment | 1.50 KM | |
| Newbridge School | Welsh Establishment | 1.68 KM | |
| Sofrydd C.P. School | Welsh Establishment | 2.08 KM |
Images
Nearby Streets
| Name | Average Price | Average Sqft | Distance |
|---|---|---|---|
| Oakland Terrace | £ 0 | 0 | 0.00 KM |
| Hillside | £ 120,000 | 0 | 0.00 KM |
| Crumlin Road | £ 0 | 0 | 0.00 KM |
| Pen-y-Lan Terrace | £ 260,000 | 0 | 0.00 KM |
| Park Road | £ 270,000 | 0 | 0.00 KM |
Nearby Transport
| Name | NLC | TLC | Distance |
|---|---|---|---|
| Newbridge | 9919 | NBE | 1.51 KM |
| Llanhilleth | 9916 | LTH | 2.60 KM |
| Crosskeys | 9902 | CKY | 6.82 KM |
| Gilfach Fargoed | 4022 | GFF | 9.01 KM |
| Hengoed | 4028 | HNG | 9.41 KM |
Nearby Listings
| Address | Price | Type | Score | Distance |
|---|---|---|---|---|
| Kennard Terrace, CRUMLIN, Crumlin | £ 150,000 | BUY | 6 / 10 | 0.00 KM |
| Kennard Terrace, Crumlin, NP113qf | £ 155,000 | BUY | 7 / 10 | 0.00 KM |
| Kennard Terrace, Crumlin, Newport | £ 160,000 | BUY | Unknown | 0.02 KM |
| Kennard Terrace, Crumlin, Newport | £ 160,000 | BUY | 5 / 10 | 0.07 KM |
| Treowen Road, Newbridge, Newport | £ 175,000 | BUY | Unknown | 0.18 KM |
Nearby Properties
| Address | Price | Distance |
|---|---|---|
| 17 Kennard Terrace | £ 79,000 | 0.00 KM |
| 19 Kennard Terrace | £ 82,500 | 0.00 KM |
| 3 Kennard Terrace | £ 116,000 | 0.00 KM |
| 13 Kennard Terrace | £ 135,000 | 0.00 KM |
| 8 Kennard Terrace | £ 70,000 | 0.00 KM |