81 Main Street, Great Broughton, Cockermouth
H&H Land & Estates logo

81 Main Street, Great Broughton, Cockermouth

By H&H Land & Estates

£ 320,000

Reviews

3 out of 5 stars

H&H Land & Estates says ..

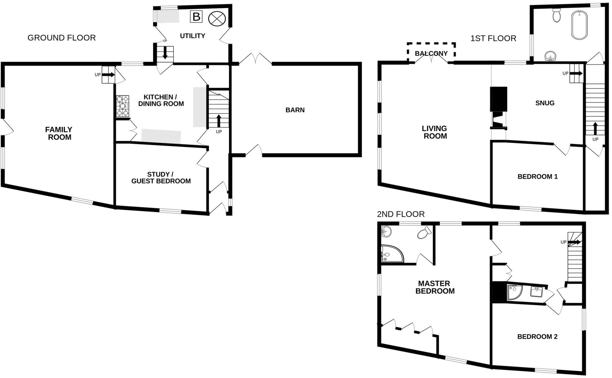
Located in a prominent position in the heart of this popular village, easily accessible to Cockermouth and Workington, an interesting opportunity to acquire a beautifully presented, low maintenance, 3/4 bedroom detached family home, providing spacious and flexible accommodation over 3 levels.

Property Oracle says ..

The property is a large house located on Main Street in Great Broughton. The location benefits from proximity to Broughton Primary School (0.35km), which is rated ‘Good’ by Ofsted. Additional schools within a reasonable distance include St Bridget’s Cofe School and several others, offering families a range of educational options. While the provided data does not include information on the presence of shops or other amenities, the property’s location within the village suggests convenient access to local services. Train stations at Maryport and Flimby are within a reasonable distance, providing transport links.

The photos reveal a property that appears to be in generally good condition. While some areas show signs of age and character, there is no apparent need for major repairs or renovations. The interior shows evidence of recent modernisation in some areas, while others retain original features. The overall impression is one of a well-maintained home with a blend of modern and traditional elements.

The property includes a small paved patio area, suitable for outdoor seating, though it’s not a large garden. This limited outdoor space is a notable feature to consider.

The list price of £320,000 for a 1,770 sqft property is difficult to assess definitively without detailed comparable sales data for similar properties in the area. The nearby listings show a significant range in prices, from £85,000 to £200,000, however, these properties are smaller and of a different type. The absence of sqft data for these properties makes a direct comparison challenging. The lack of information on the average price per sqft in Great Broughton further hinders a complete price analysis. However, considering the property’s size, location, condition, and limited outdoor space, the list price appears to be at the higher end of the market for the area, but not necessarily unreasonable. Further investigation into local comparable sales data would be beneficial to confirm this assessment.

Therefore, we give this property 6 / 10. *Disclaimer: This is our option and does constitute a recommendation or financial advice. Do your own research. *

Price
6
Condition
8
Location
7
Land
3
Bedrooms
4
Bathrooms
3
Sqft (est)
1,770.00

The heatmap indicates the level of crime in the area. The color of the heatmap indicates the crime severity and recency.

Metrics Year-on-Year

Average area value
801,167.00 £
Decreased by 16.35 %
from 957,809.00 £
Est sale value
1,072,620.00 £
Increased by 23.17 %
from 870,840.00 £
Average area rental value
1,142.00 £/mo
Decreased by 67.83 %
from 3,550.00 £/mo
Est letting value
0.00 £/mo
Decreased by 100.00 %
from 1,770.00 £/mo
Est rental Yield
1.71 %
Decreased by 61.57 %
from 4.45 %
Crime Rate
63.00 %
Unchanged by 0.00 %
from 63.00 %

Agent Activity

  • H&H Land & Estates created the listing.

Nearby Schools

NameTypeOfstedDistance
Broughton Primary SchoolAcademy ConverterGood0.35 KM
St Bridget'S Cofe SchoolVoluntary Controlled SchoolGood1.21 KM
Broughton Moor Primary SchoolCommunity SchoolGood4.13 KM
Dearham Primary SchoolAcademy ConverterOutstanding4.85 KM
Bridekirk Dovenby Cofe Primary SchoolVoluntary Controlled SchoolOutstanding5.56 KM

Images

81 Main Street Outside Space Hallway Family Room Family Room Family Room Family Room Study / Guest Bedrm. Snug Living Room Living Room Top Landing Master Bedroom Master Bedroom Master Bed Ensuite Bedroom 2 Shower Room 81 Main Street 81 Main Street Kitchen Dining Room Kitchen Dining Room Kitchen Dining Room Snug Snug Living Room Living Room Bedroom 1 Bathroom Bathroom Top Landing Master Bedroom Master Bedroom Bedroom 2 Bedroom 2 Outside Space Outside Space Outside Space 81 Main Street

Nearby Streets

NameAverage PriceAverage SqftDistance
The Went £ 000.00 KM
Winder Lonning £ 000.00 KM
Stoneybeck £ 450,00000.00 KM
Hill Crescent £ 169,95000.00 KM

Nearby Transport

NameNLCTLCDistance
Maryport1988MRY8.06 KM
Flimby2026FLM9.73 KM

Nearby Listings

AddressPriceTypeScoreDistance
81 Main Street, Great Broughton, Cockermouth £ 320,000BUY6 / 100.00 KM
Main Street, Great Broughton, CA13 £ 160,000BUYUnknown0.04 KM
The Nook, Great Broughton, Cockermouth, CA13 0XD £ 550,000BUYUnknown0.08 KM
Main Street, Great Broughton, CA13 £ 175,000BUY7 / 100.11 KM
The Nook, Great Broughton, Cockermouth, CA13 £ 125,000BUYUnknown0.11 KM

Nearby Properties

AddressPriceDistance
1 The Nook £ 115,0000.09 KM
11 The Nook £ 85,0000.09 KM
14 The Nook £ 105,5000.09 KM
3 The Nook £ 97,5000.09 KM
4 The Nook £ 105,0000.09 KM