Knowle Lane, Cranleigh, Surrey, GU6
By Knight Frank
£ 1,250,000
Reviews
3 out of 5 stars
Knight Frank says ..
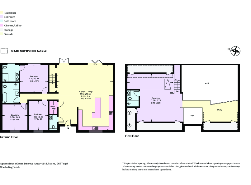
A perfectly situated newly built barn conversion, in a quiet position with stunning views. - 10 year guarantee in place - Modern and high quality finishes throughout - Principal bedroom with en suite of the ground floor - Two further bedrooms - Family bathroom - Potential fourth bedroom with an ...
Property Oracle says ..
This is a well-presented barn conversion in a desirable rural location. The property has been modernised to a high standard and offers spacious living accommodation. The property benefits from a large garden and is surrounded by fields. The price is high compared to other properties in the area.
Therefore, we give this property 7 / 10. *Disclaimer: This is our option and does constitute a recommendation or financial advice. Do your own research. *
- Price
- 6
- Condition
- 9
- Location
- 7
- Land
- 8
- Bedrooms
- 4
- Bathrooms
- 3
The heatmap indicates the level of crime in the area. The color of the heatmap indicates the crime severity and recency.
Metrics Year-on-Year
- Average area value
- 696,250.00 £Increased by 4.84 %
- Average area rental value
- 1,517.00 £/moDecreased by 27.76 %
- Est rental Yield
- 2.61 %Decreased by 31.13 %
- Crime Rate
- 8.00 %Unchanged by 0.00 %
Agent Activity
Knight Frank created the listing.
Nearby Schools
| Name | Type | Ofsted | Distance |
|---|---|---|---|
| St Cuthbert Mayne Catholic Primary School | Academy Converter | 2.66 KM | |
| Christopher Robin Sure Start Children'S Centre | Children's Centre | 2.67 KM | |
| Cranleigh Church Of England Primary School | Voluntary Controlled School | Good | 2.67 KM |
| Glebelands School | Community School | Good | 2.69 KM |
| Rikkyo School-In-England | Other Independent School | Good | 2.83 KM |
Images
Nearby Streets
| Name | Average Price | Average Sqft | Distance |
|---|---|---|---|
| Vachery Lane | £ 962,500 | 0 | 0.00 KM |
| Reins Close | £ 0 | 0 | 0.00 KM |
| Hunter Way | £ 880,000 | 0 | 0.00 KM |
| Christ's Hospital to Peasmarsh Junction Line | £ 775,000 | 0 | 0.00 KM |
| Hawking Drive | £ 0 | 0 | 0.00 KM |
Nearby Listings
| Address | Price | Type | Score | Distance |
|---|---|---|---|---|
| Knowle Lane, Cranleigh, Surrey, GU6 | £ 1,250,000 | BUY | 7 / 10 | 0.00 KM |
| Outskirts of Cranleigh, Knowle Lane | £ 535,000 | BUY | 7 / 10 | 0.18 KM |
| Knowle Lane, Cranleigh, GU6 | £ 1,295,000 | BUY | 7 / 10 | 0.20 KM |
| Knowle Lane, Cranleigh, GU6 | £ 1,350,000 | BUY | 7 / 10 | 0.37 KM |
| Knowle Lane, Cranleigh, Surrey, GU6 | £ 1,750,000 | BUY | 8 / 10 | 0.58 KM |
Nearby Properties
| Address | Price | Distance |
|---|---|---|
| Fortune House | £ 2,700,000 | 0.53 KM |
| Timbers | £ 510,000 | 0.54 KM |
| New House West | £ 2,700,000 | 0.65 KM |
| Waterland Cottage | £ 900,000 | 0.73 KM |
| Whitemeads | £ 870,000 | 0.73 KM |