Sycamore Avenue, Harraton, Washington, Sunderland, NE38
By Jill Moore Select Properties
£ 120,000
Reviews
3 out of 5 stars
Jill Moore Select Properties says ..
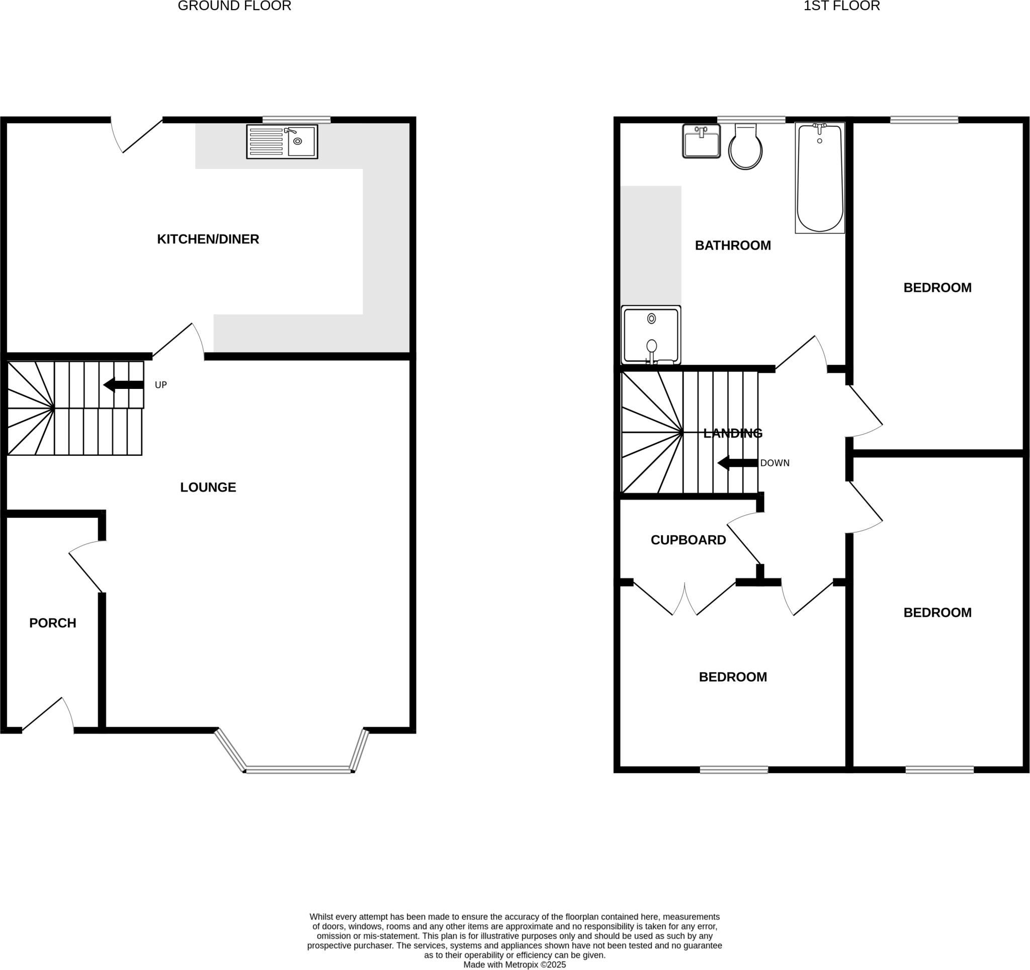
Jill Moore are delighted to present this three bedroom terrace property, in the highly popular Sycamore Avenue with a range of local amenities on the doorstep. Boasting three good-sized bedrooms, modern kitchen and bathroom and enclosed private gardens, this property makes the perfect first time ...
Property Oracle says ..
Therefore, we give this property 7 / 10. *Disclaimer: This is our option and does constitute a recommendation or financial advice. Do your own research. *
- Price
- 9
- Condition
- 8
- Location
- 7
- Land
- 7
- Bedrooms
- 3
- Bathrooms
- 1
- Sqft (est)
- 829.00
The heatmap indicates the level of crime in the area. The color of the heatmap indicates the crime severity and recency.
Metrics Year-on-Year
- Average area value
- 216,545.00 £Decreased by 10.40 %
- Est sale value
- 169,945.00 £Decreased by 18.00 %
- Average area rental value
- 725.00 £/moDecreased by 14.10 %
- Est letting value
- 0.00 £/mo
- Est rental Yield
- 4.02 %Decreased by 4.06 %
- Crime Rate
- 0.00 %
Agent Activity
Jill Moore Select Properties marked this listing as sold.
Jill Moore Select Properties created the listing.
Nearby Schools
| Name | Type | Ofsted | Distance |
|---|---|---|---|
| Lambton Primary School | Community School | Good | 0.92 KM |
| Rickleton Primary School | Community School | Good | 1.51 KM |
| Holley Park Academy | Academy Converter | Good | 1.52 KM |
| Oxclose Community Academy | Academy Converter | Good | 1.65 KM |
| Oxclose Nursery School | Local Authority Nursery School | Outstanding | 1.72 KM |
Images
Nearby Streets
| Name | Average Price | Average Sqft | Distance |
|---|---|---|---|
| Sycamore Avenue | £ 0 | 0 | 0.00 KM |
| East Avenue | £ 0 | 0 | 0.00 KM |
| Cambrian Way | £ 0 | 0 | 0.00 KM |
| Chiltern Close | £ 0 | 0 | 0.00 KM |
| Teal Close | £ 0 | 0 | 0.00 KM |
Nearby Transport
| Name | NLC | TLC | Distance |
|---|---|---|---|
| Chester-Le-Street | 7736 | CLS | 5.37 KM |
| Heworth | 7766 | HEW | 7.86 KM |
Nearby Listings
| Address | Price | Type | Score | Distance |
|---|---|---|---|---|
| Sycamore Avenue, Harraton, Washington, Sunderland, NE38 | £ 120,000 | BUY | 7 / 10 | 0.00 KM |
| Sycamore Avenue, Washington, Tyne and Wear, NE38 | £ 130,000 | BUY | 6 / 10 | 0.01 KM |
| Chestnut Avenue, Harraton, Washington | £ 94,950 | BUY | 7 / 10 | 0.10 KM |
| Sycamore Avenue, Washington, Tyne and Wear, NE38 9BH | £ 145,000 | BUY | Unknown | 0.15 KM |
| Sycamore Avenue, Washington, Tyne and Wear, NE38 9BH | £ 140,000 | BUY | 6 / 10 | 0.15 KM |
Nearby Properties
| Address | Price | Distance |
|---|---|---|
| 33 Sycamore Avenue | £ 83,000 | 0.01 KM |
| 36 Sycamore Avenue | £ 124,950 | 0.01 KM |
| 30 Sycamore Avenue | £ 90,000 | 0.01 KM |
| 38 Sycamore Avenue | £ 135,000 | 0.06 KM |
| 3 Sycamore Avenue | £ 115,000 | 0.06 KM |