Elburton, Plymouth
JU

Elburton, Plymouth

By Julian Marks

£ 579,950

Reviews

3 out of 5 stars

Julian Marks says ..

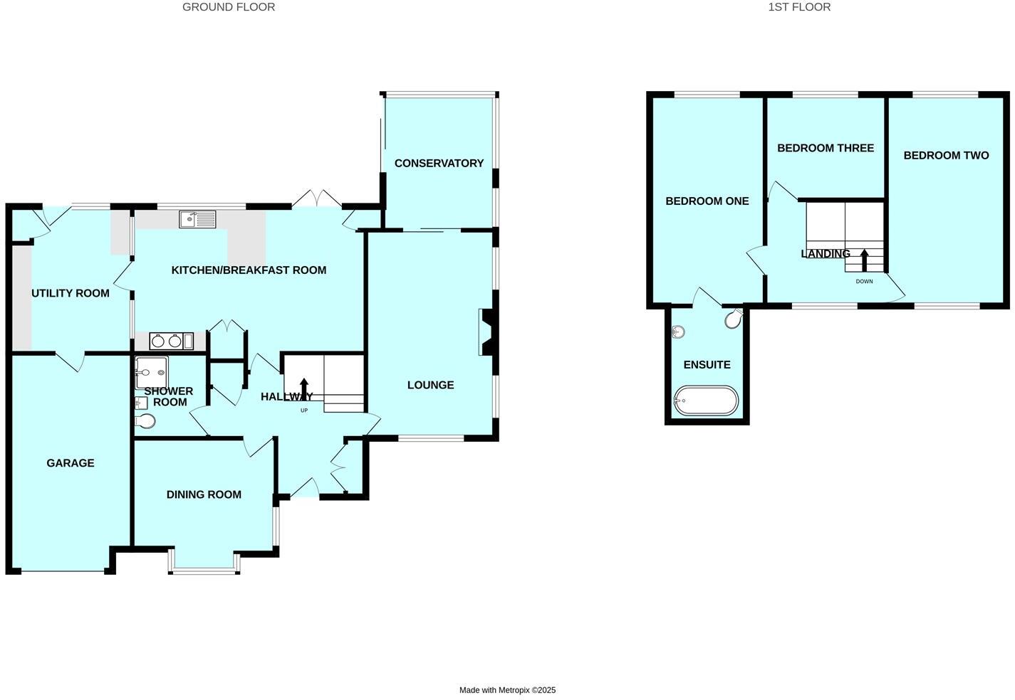
Arundel is an individual property situated in the tucked-away cul-de-sac of Higher Churchway, one of Plymstock and Elburton's most sought-after enclaves. The accommodation briefly comprises an entrance hall with feature hard wood staircase, lounge with fireplace & wood burner leading to a conserv...

Property Oracle says ..

Therefore, we give this property 7 / 10. *Disclaimer: This is our option and does constitute a recommendation or financial advice. Do your own research. *

Price
6
Condition
8
Location
7
Land
7
Bedrooms
4
Bathrooms
2
Sqft (est)
1,168.00

The heatmap indicates the level of crime in the area. The color of the heatmap indicates the crime severity and recency.

Metrics Year-on-Year

Average area value
311,919.00 £
Decreased by 6.41 %
from 333,288.00 £
Est sale value
544,288.00 £
Increased by 32.76 %
from 409,968.00 £
Average area rental value
1,169.00 £/mo
Increased by 9.05 %
from 1,072.00 £/mo
Est letting value
1,168.00 £/mo
Unchanged by 0.00 %
from 1,168.00 £/mo
Est rental Yield
4.50 %
Increased by 16.58 %
from 3.86 %
Crime Rate
0.00 %
from 0.00 %

Agent Activity

  • Julian Marks created the listing.

Nearby Schools

NameTypeOfstedDistance
Coombe Dean SchoolAcademy ConverterRequires improvement0.51 KM
Plymstock Children'S CentreChildren's Centre0.61 KM
Goosewell Primary AcademyAcademy Sponsor LedGood0.92 KM
Elburton Primary SchoolAcademy ConverterOutstanding1.17 KM
Plymstock SchoolAcademy ConverterGood1.35 KM

Images

IMG_2365.jpeg IMG_2337.jpeg IMG_2339.jpeg IMG_2338.jpeg IMG_2340.jpeg IMG_2346.jpeg IMG_2347.jpeg IMG_2351.jpeg IMG_2344.jpeg IMG_2345.jpeg IMG_2348.jpeg IMG_2342.jpeg IMG_2343.jpeg IMG_2360.jpeg IMG_2356.jpeg IMG_2355.jpeg IMG_2354.jpeg IMG_2352.jpeg IMG_2335.jpeg IMG_2341.jpeg IMG_2357.jpeg IMG_2336.jpeg IMG_2358.jpeg IMG_2366.jpeg dji_fly_20250501_145304_0142_1746107590979_photo.j dji_fly_20250501_145252_0141_1746107589364_photo.j 1.jpeg 2.jpeg Boundaries.jpeg dji_fly_20250501_145212_0140_1746107587759_photo.j

Nearby Streets

NameAverage PriceAverage SqftDistance
Springfield Lane £ 000.00 KM
Woodlands £ 000.00 KM
Church Road £ 327,50000.00 KM
Arcadia £ 000.00 KM

Nearby Transport

NameNLCTLCDistance
Plymouth3580PLY7.72 KM

Nearby Listings

AddressPriceTypeScoreDistance
Elburton, Plymouth £ 579,950BUY7 / 100.00 KM
Higher Churchway, Elburton, Plymouth £ 460,000BUYUnknown0.03 KM
Springfield Close, Plymouth, Devon, PL9 £ 400,000BUY6 / 100.07 KM
Great Churchway, Plymouth, Devon £ 550,000BUY7 / 100.09 KM
Elburton, Plymouth £ 700,000BUY8 / 100.12 KM

Nearby Properties

AddressPriceDistance
Woodcroft £ 370,0000.02 KM
25 Great Churchway £ 425,0000.04 KM
24 Great Churchway £ 297,0000.04 KM
Glen Eagles £ 425,0000.04 KM
35 Springfield Close £ 250,0000.07 KM