Church Road, Lyminge, Folkestone, CT18
By Laing Bennett Estate & Letting Agents
£ 750,000
Reviews
3 out of 5 stars
Laing Bennett Estate & Letting Agents says ..
A distinctive double fronted period home of generous size with many splendid characterful features including high ceilings, stripped doors and deep bay windows. The current vendors have updated the property to provide stylish yet classic accommodation that would suit the needs of any modern fa...
Property Oracle says ..
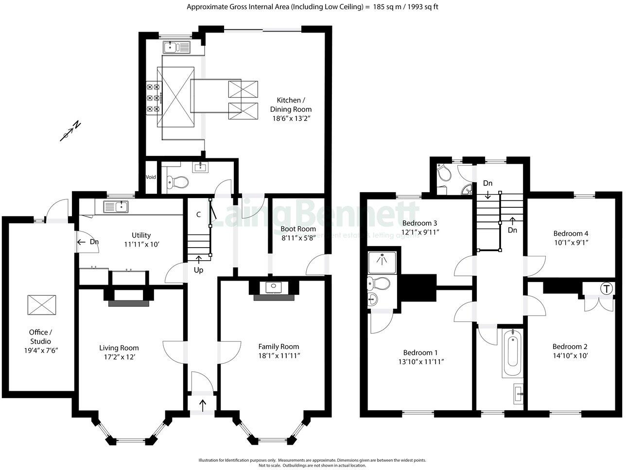
This property is a charming 4-bedroom detached house located on Church Road in Lyminge, Folkestone. The location benefits from being close to Lyminge Church of England Primary School (0.10 KM), which is rated as “Good” by Ofsted. The property itself is in excellent condition, having undergone recent renovations and extensions. The extension includes a modern kitchen and dining area that opens onto a well-maintained garden. The garden is a significant feature, offering ample space for outdoor activities and relaxation. The property also benefits from off-street parking. While the provided data does not include information on local amenities or transport links beyond the train stations, the property is well-presented and appears to be a desirable family home. The list price of £750,000 is higher than the average price for the area (£472,486), but this is likely justified considering the property’s size (1,515.66 sqft), condition, and the substantial garden. The average price per sqft in the area is £405, and this property is larger than average, making the price per sqft slightly lower. More information on comparable properties would be needed to fully assess the value.
Therefore, we give this property 7 / 10. *Disclaimer: This is our option and does constitute a recommendation or financial advice. Do your own research. *
- Price
- 7
- Condition
- 9
- Location
- 7
- Land
- 8
- Bedrooms
- 4
- Bathrooms
- 2
- Sqft (est)
- 1,515.66
- Lot (est)
- 1,993.00
The heatmap indicates the level of crime in the area. The color of the heatmap indicates the crime severity and recency.
Metrics Year-on-Year
- Average area value
- 453,050.00 £Decreased by 26.49 %
- Est sale value
- 745,704.72 £Increased by 11.56 %
- Average area rental value
- 900.00 £/moDecreased by 20.56 %
- Est letting value
- 0.00 £/mo
- Est rental Yield
- 2.38 %Increased by 7.69 %
- Crime Rate
- 9.00 %Unchanged by 0.00 %
Agent Activity
Laing Bennett Estate & Letting Agents created the listing.
Nearby Schools
| Name | Type | Ofsted | Distance |
|---|---|---|---|
| Lyminge Church Of England Primary School | Voluntary Controlled School | Good | 0.10 KM |
| Elham Church Of England Primary School | Voluntary Aided School | Good | 3.46 KM |
| Saltwood Cofe Primary School | Voluntary Aided School | Outstanding | 5.50 KM |
| Brockhill Park Performing Arts College | Academy Converter | Good | 5.86 KM |
| St Augustine'S Catholic Primary School | Voluntary Aided School | Good | 5.96 KM |
Images
Nearby Streets
| Name | Average Price | Average Sqft | Distance |
|---|---|---|---|
| Sparrow Tree Cottages | £ 0 | 0 | 0.00 KM |
| Red House Lane | £ 0 | 0 | 0.00 KM |
| Ark Cottages | £ 0 | 0 | 0.00 KM |
| Hill View Terrace | £ 0 | 0 | 0.00 KM |
Nearby Transport
| Name | NLC | TLC | Distance |
|---|---|---|---|
| Sandling | 5025 | SDG | 4.99 KM |
| Westenhanger | 5030 | WHA | 6.77 KM |
| Folkestone West | 5027 | FKW | 8.75 KM |
Nearby Listings
| Address | Price | Type | Score | Distance |
|---|---|---|---|---|
| Church Road, Lyminge, Folkestone, CT18 | £ 750,000 | BUY | 7 / 10 | 0.00 KM |
| Church Road, Lyminge, Folkestone, CT18 | £ 525,000 | BUY | 7 / 10 | 0.04 KM |
| Silverlands Road, Lyminge, Folkestone, CT18 | £ 795,000 | BUY | 7 / 10 | 0.05 KM |
| Silverlands Road, Lyminge, Folkestone, CT18 | £ 595,000 | BUY | 7 / 10 | 0.10 KM |
| Canterbury Road, Lyminge, Folkestone, CT18 | £ 300,000 | BUY | 7 / 10 | 0.16 KM |
Nearby Properties
| Address | Price | Distance |
|---|---|---|
| Willows | £ 220,000 | 0.04 KM |
| Beechwood | £ 555,000 | 0.04 KM |
| Sandpipers | £ 250,000 | 0.04 KM |
| Coneybank | £ 415,000 | 0.04 KM |
| Rosewood | £ 225,000 | 0.04 KM |