Binswood Avenue, Leamington Spa, Warwickshire, CV32
WI

Binswood Avenue, Leamington Spa, Warwickshire, CV32

By Winkworth

£ 1,400,000

Reviews

4 out of 5 stars

Winkworth says ..

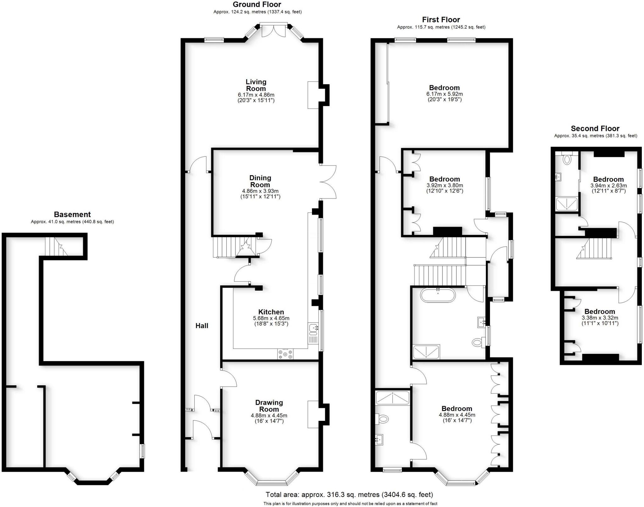
Winkworth Leamington Spa is delighted to present to the market this beautifully renovated four-bedroom, three-bathroom, semi-detached, Victorian townhouse, perfectly situated on the highly desirable Binswood Avenue at the historic heart of Leamington Spa. Having been tastefully moderni...

Property Oracle says ..

Leamington Spa is a highly desirable location in Warwickshire, known for its excellent schools, beautiful parks, and convenient access to transportation links. The property’s location on Binswood Avenue places it within easy reach of Leamington Spa town centre, offering a blend of suburban tranquility and urban amenities. Several highly-rated schools are within a short distance, making it an attractive option for families. The proximity to Leamington Spa train station provides convenient access to larger cities such as Birmingham and London.

The property appears to be in excellent condition. The images showcase a recently renovated interior with modern fixtures and fittings. The rooms are well-maintained and tastefully decorated, suggesting minimal need for repairs or upgrades. The exterior also appears well-maintained, enhancing the property’s overall appeal.

The property boasts a substantial garden, significantly larger than average for properties in this area. The garden is well-landscaped, providing ample outdoor space for relaxation and entertaining. This adds considerable value to the property.

Considering the property’s location in a sought-after area, its excellent condition, and the substantial garden, the list price of £1,400,000 appears to be in line with, or potentially slightly above, market value for similar properties in the area. While the average price per square foot in the area is £345, the superior condition, larger plot size, and prime location justify a higher price per square foot for this specific property. However, a detailed comparative market analysis of recently sold comparable properties would provide a more definitive assessment of the price’s reasonableness.

Therefore, we give this property 8 / 10. *Disclaimer: This is our option and does constitute a recommendation or financial advice. Do your own research. *

Price
8
Condition
9
Location
9
Land
9
Bedrooms
5
Bathrooms
3
Sqft (est)
1,715.88
Lot (est)
3,404.63

The heatmap indicates the level of crime in the area. The color of the heatmap indicates the crime severity and recency.

Metrics Year-on-Year

Average area value
323,778.00 £
Decreased by 12.49 %
from 369,999.00 £
Est sale value
638,307.36 £
Decreased by 6.06 %
from 679,488.48 £
Average area rental value
1,273.00 £/mo
Decreased by 6.53 %
from 1,362.00 £/mo
Est letting value
1,715.88 £/mo
Unchanged by 0.00 %
from 1,715.88 £/mo
Est rental Yield
4.72 %
Increased by 6.79 %
from 4.42 %
Crime Rate
9.00 %
Unchanged by 0.00 %
from 9.00 %

Agent Activity

  • Winkworth created the listing.

Nearby Schools

NameTypeOfstedDistance
The Kingsley SchoolOther Independent School0.18 KM
Arnold Lodge SchoolOther Independent School0.33 KM
Milverton Primary SchoolCommunity SchoolGood0.44 KM
St Peter'S Catholic Primary SchoolVoluntary Aided SchoolGood0.79 KM
Warwickshire College GroupFurther EducationGood1.40 KM

Images

Garden To The House Drawing Room To Bay Kitchen Frontage Stain Glass Dining Room To Bay Sitting Room Bay Hallway Kitchen To Side Kitchen To Dinr Diner View To Garden Drawing Room 3 Drawing Room2 Drawing Room Art Stairs Office/Bedroom 3 Stairs Family Bathroom Bathroom Art Master Bedroom View From Master Master To Front 1st Floor Landing M's Bedroom M En Suite Shower Ro Bedroom 3 Bed3 En-Suite Bedroom 4 Patio To Garden Patio Lawns Lawns To Garden Garden Room Reverse Garden Drone Birdseye High Drone High Drone Binswood Avenue Cellar

Nearby Streets

NameAverage PriceAverage SqftDistance
Hall Road £ 625,00000.00 KM
Grove Street £ 900,00000.00 KM
Riverside £ 189,95000.00 KM
Hamilton Terrace £ 000.00 KM
Cliffe Road £ 000.00 KM

Nearby Transport

NameNLCTLCDistance
Leamington Spa4597LMS1.28 KM
Warwick4600WRW4.89 KM
Kenilworth7985KNW6.44 KM
Warwick Parkway8530WRP8.19 KM

Nearby Listings

AddressPriceTypeScoreDistance
Binswood Avenue, Leamington Spa, Warwickshire, CV32 £ 1,400,000BUY8 / 100.00 KM
Binswood Avenue, Leamington Spa £ 157,500BUYUnknown0.03 KM
Binswood Avenue, Leamington Spa £ 172,500BUY5 / 100.04 KM
Binswood Avenue, Leamington Spa £ 165,000BUY7 / 100.04 KM
Binswood Avenue, Leamington Spa £ 145,995BUY6 / 100.07 KM

Nearby Properties

AddressPriceDistance
34 Binswood Avenue £ 1,135,0000.04 KM
6 Binswood Avenue £ 230,0000.04 KM
24 Binswood Avenue £ 770,0000.04 KM
26a Binswood Avenue £ 249,0000.04 KM
14 Binswood Avenue £ 620,0000.04 KM