Fosseway, Stow On The Wold, GL54 1FF
MC

Fosseway, Stow On The Wold, GL54 1FF

By McCarthy & Stone - West Midlands

£ 130,000

Reviews

3 out of 5 stars

McCarthy & Stone - West Midlands says ..

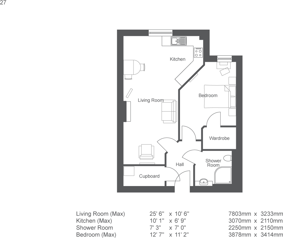
Apartment 27 is a beautiful one-bedroom apartment at our stunning Hawkesbury Place development in Stow-on-the-Wold.

Property Oracle says ..

Therefore, we give this property 6 / 10. *Disclaimer: This is our option and does constitute a recommendation or financial advice. Do your own research. *

Price
8
Condition
9
Location
7
Land
3
Bedrooms
1
Bathrooms
0
Sqft (est)
527.44

The heatmap indicates the level of crime in the area. The color of the heatmap indicates the crime severity and recency.

Metrics Year-on-Year

Average area value
241,538.00 £
Decreased by 4.18 %
from 252,064.00 £
Est sale value
146,100.88 £
Increased by 2.97 %
from 141,881.36 £
Average area rental value
846.00 £/mo
Increased by 4.19 %
from 812.00 £/mo
Est letting value
0.00 £/mo
from 0.00 £/mo
Est rental Yield
4.20 %
Increased by 8.53 %
from 3.87 %
Crime Rate
30.00 %
Unchanged by 0.00 %
from 30.00 %

Agent Activity

  • McCarthy & Stone - West Midlands created the listing.

Nearby Schools

NameTypeOfstedDistance
Stow-On-The-Wold Primary SchoolCommunity SchoolGood0.95 KM
Springboard Children'S Centre (Stow)Children's Centre0.98 KM
Swell Church Of England Primary SchoolVoluntary Controlled SchoolGood3.04 KM
Longborough Church Of England Primary SchoolVoluntary Controlled SchoolGood3.80 KM
St David'S Church Of England Primary SchoolAcademy ConverterGood6.44 KM

Images

Hawkesbury Place, Stow-on-the-Wold - Typical Living Room Hawkesbury Place, Stow-on-the-Wold - Typical Kitchen Hawkesbury Place, Stow-on-the-Wold - Typical Bedroom Hawkesbury Place, Stow-on-the-wold - Front Exterior Hawkesbury Place, Stow-on-the-Wold - Typical Bedroom Hawkesbury Place, Stow-on-the-Wold - Typical Shower Room Hawkesbury Place, Stow-on-the-Wold - Communal Hobby Area Hawkesbury Place, Stow-on-the-Wold - Communal Hobby Area EPC Hawkesbury Place, Stow-on-the-Wold - Typical Living Room Hawkesbury Place, Stow-on-the-wold - Communal Gardens Hawkesbury Place, Stow-on-the-Wold - Typical Second Bedroom Hawkesbury Place, Stow-on-the-wold - Wellness Suite/Spa Hawkesbury Place, Stow-on-the-Wold - Typical Second Bedroom Hawkesbury Place, Stow-on-the-wold - Front exterior Hawkesbury Place, Stow-on-the-wold - Rear Exterior Hawkesbury Place, Stow-on-the-wold - Communal Lounge Hawkesbury Place, Stow-on-the-wold - Communal Bar Hawkesbury Place, Stow-on-the-Wold - Typical Living Room Hawkesbury Place, Stow-on-the-wold - Communal Lounge Hawkesbury Place, Stow-on-the-wold - Communal Restaurant Hawkesbury Place, Stow-on-the-wold - Communal Gardens Hawkesbury Place, Stow-on-the-Wold - Typical Living Room Hawkesbury Place, Stow-on-the-Wold - Typical Kitchen Hawkesbury Place, Stow-on-the-Wold - Typical Bedroom Kitchen Living room Shower room Bedroom Living room Bedroom EPC

Nearby Streets

NameAverage PriceAverage SqftDistance
Hawthorn Cottages £ 596,23800.00 KM
Tewkesbury Road £ 000.00 KM
Parson's Corner £ 365,00000.00 KM
High Street £ 650,00000.00 KM
Drury Lane £ 1,500,00000.00 KM

Nearby Transport

NameNLCTLCDistance
Moreton-In-Marsh4814MIM6.79 KM

Nearby Listings

AddressPriceTypeScoreDistance
Fosseway, Stow On The Wold, GL54 1FF £ 349,995BUY7 / 100.00 KM
Fosseway, Stow On The Wold, GL54 1FF £ 130,000BUY6 / 100.00 KM
Fosseway, Stow On The Wold, GL54 1FF £ 324,995BUY7 / 100.00 KM
Fosseway, Stow On The Wold, GL54 1FF £ 138,750BUY7 / 100.00 KM
Fosseway, Stow On The Wold, GL54 1FF £ 189,995BUYUnknown0.00 KM

Nearby Properties

AddressPriceDistance
Badgers End £ 393,0000.13 KM
The Paddocks £ 1,125,0000.13 KM
Hillbarn £ 430,0000.13 KM
Newlands Cottage £ 235,0000.13 KM
Fox Hill £ 111,0000.13 KM