Goodfellows says ..
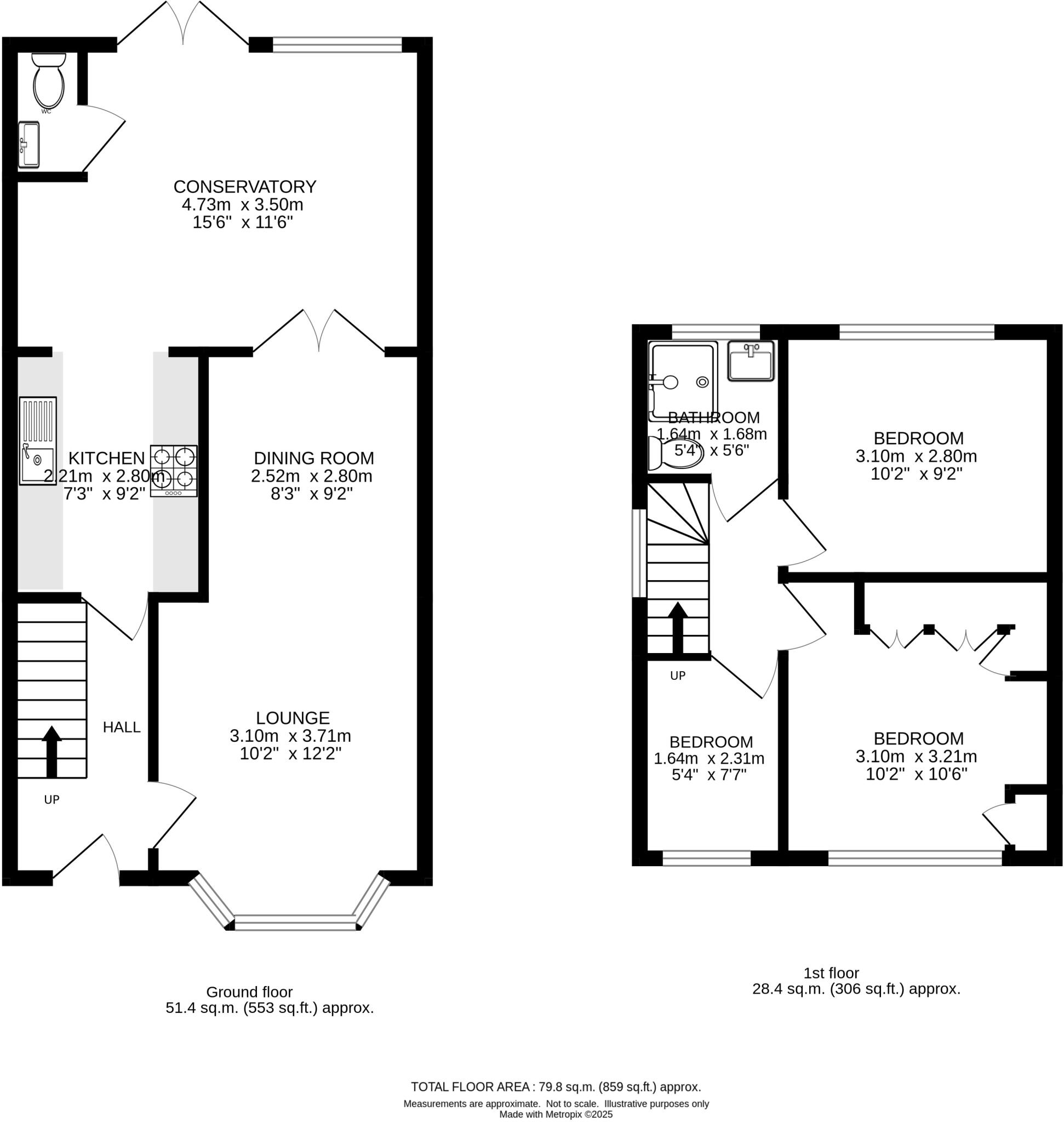
Offered to the market with the vendor suited, is this lovely three bedroom semi detached home. Situated ideally for all types of buyer, being walking distance of bus routes, schools and local amenities. The house itself has been extended to provide a further reception room in additi...
Property Oracle says ..
This is a three-bedroom semi-detached house in Sutton, Greater London. The property is in a good location, close to schools and transport links. The house appears to be in generally good condition, with a modern kitchen and bathroom, and benefits from a garden. While the average price per square foot in the area is £267, the lack of square footage for the property makes it difficult to accurately assess the price. However, given the location and features, the asking price seems reasonable.
Therefore, we give this property 6 / 10. *Disclaimer: This is our option and does constitute a recommendation or financial advice. Do your own research. *
- Price
- 6
- Condition
- 7
- Location
- 7
- Land
- 6
- Bedrooms
- 3
- Bathrooms
- 1
The heatmap indicates the level of crime in the area. The color of the heatmap indicates the crime severity and recency.
Metrics Year-on-Year
- Average area value
- 364,000.00 £Decreased by 29.95 %
- Average area rental value
- 1,700.00 £/moDecreased by 10.62 %
- Est rental Yield
- 5.60 %Increased by 27.56 %
- Crime Rate
- 2.00 %Unchanged by 0.00 %
Agent Activity
Goodfellows created the listing.
Nearby Schools
| Name | Type | Ofsted | Distance |
|---|---|---|---|
| All Saints Benhilton Cofe Primary School | Voluntary Aided School | Good | 0.37 KM |
| Robin Hood Junior School | Community School | Good | 1.00 KM |
| Westbourne Primary School | Academy Converter | 1.03 KM | |
| Glenthorne High School | Academy Converter | Outstanding | 1.05 KM |
| Abbey Primary School | Academy Converter | 1.16 KM |
Images
Nearby Streets
| Name | Average Price | Average Sqft | Distance |
|---|---|---|---|
| All Saints Road | £ 400,000 | 0 | 0.00 KM |
| Dovercourt Lane | £ 0 | 0 | 0.00 KM |
| Vale Road | £ 0 | 0 | 0.00 KM |
| Bushey Road | £ 0 | 0 | 0.00 KM |
| Wilcox Road | £ 0 | 0 | 0.00 KM |
Nearby Transport
| Name | NLC | TLC | Distance |
|---|---|---|---|
| Sutton Common | 5436 | SUC | 0.20 KM |
| West Sutton | 5293 | WSU | 1.51 KM |
| Sutton | 5385 | SUO | 1.69 KM |
| St Helier | 5290 | SIH | 1.79 KM |
| Morden South | 5291 | MDS | 2.48 KM |
Nearby Listings
| Address | Price | Type | Score | Distance |
|---|---|---|---|---|
| Ashleigh Gardens, Sutton, SM1 | £ 550,000 | BUY | 6 / 10 | 0.00 KM |
| Ashleigh Gardens, Sutton, Surrey | £ 750,000 | BUY | 7 / 10 | 0.05 KM |
| Ashleigh Gardens, Sutton | £ 450,000 | BUY | 6 / 10 | 0.08 KM |
| Sutton Common Road, Sutton, SM1 | £ 300,000 | BUY | 6 / 10 | 0.10 KM |
| Aysgarth Court, Sutton Common Road | £ 315,000 | BUY | 6 / 10 | 0.10 KM |
Nearby Properties
| Address | Price | Distance |
|---|---|---|
| 37 Angel Hill | £ 404,000 | 0.08 KM |
| 63 Angel Hill | £ 460,000 | 0.08 KM |
| 41 Angel Hill | £ 250,000 | 0.08 KM |
| 59 Angel Hill | £ 422,000 | 0.08 KM |
| 57 Angel Hill | £ 224,950 | 0.08 KM |