eXp UK says ..
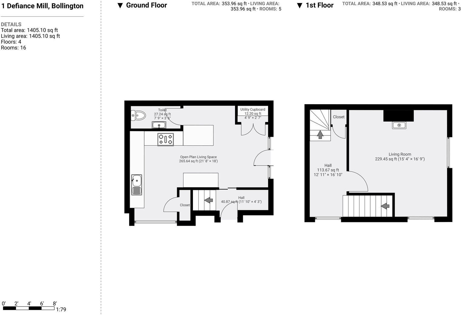
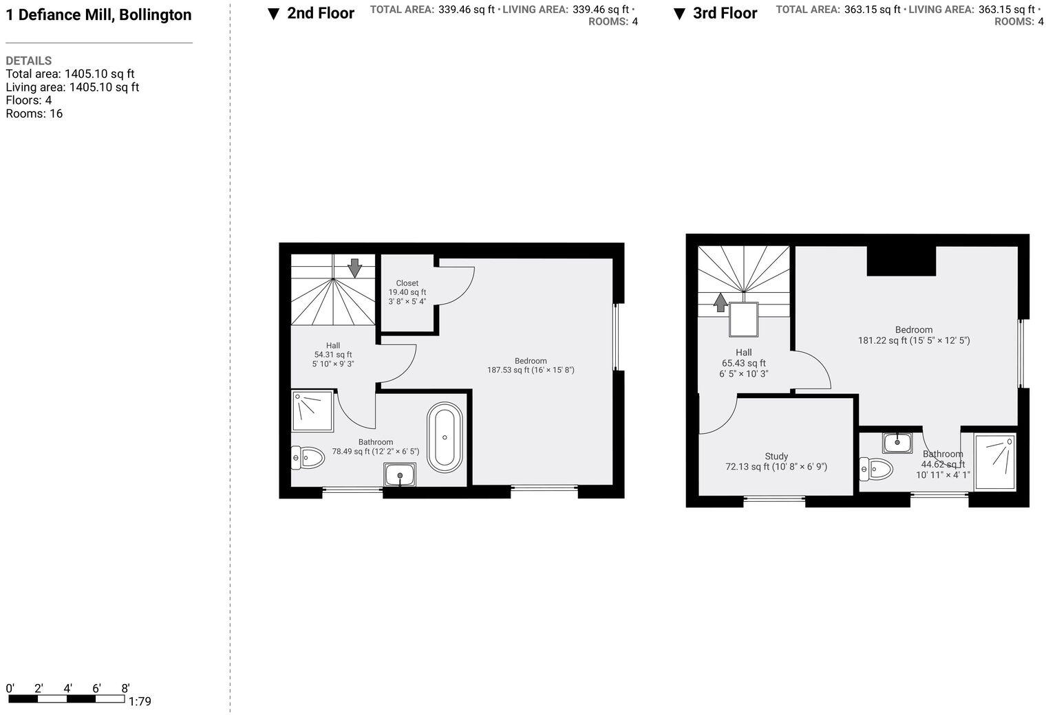
A beautifully presented and stylishly finished three bedroom semi-detached home set over four impressive floors, offering high-spec living in a highly sought after and central Bollington location.
Property Oracle says ..
This semi-detached property is located in Bollington, Cheshire East. The house has 3 bedrooms and 2 bathrooms, with a square footage of 1,405.10. The property appears to be in good condition, with modern interior design. It also benefits from a garden and some surrounding land. The listing price is £575,000, which is higher than the average price in the area.
Therefore, we give this property 7 / 10. *Disclaimer: This is our option and does constitute a recommendation or financial advice. Do your own research. *
- Price
- 6
- Condition
- 8
- Location
- 7
- Land
- 7
- Bedrooms
- 3
- Bathrooms
- 2
- Sqft (est)
- 1,405.10
The heatmap indicates the level of crime in the area. The color of the heatmap indicates the crime severity and recency.
Metrics Year-on-Year
- Average area value
- 382,485.00 £Increased by 0.15 %
- Est sale value
- 570,470.60 £Increased by 38.10 %
- Average area rental value
- 895.00 £/moDecreased by 38.61 %
- Est letting value
- 0.00 £/moDecreased by 100.00 %
- Est rental Yield
- 2.81 %Decreased by 38.65 %
- Crime Rate
- 25.00 %Unchanged by 0.00 %
Agent Activity
eXp UK created the listing.
Nearby Schools
| Name | Type | Ofsted | Distance |
|---|---|---|---|
| Bollington St John'S Cofe Primary School | Voluntary Aided School | Good | 0.79 KM |
| Arnfield Independent School | Other Independent Special School | Good | 1.01 KM |
| Pott Shrigley Church School | Voluntary Aided School | Good | 1.80 KM |
| St Gregory'S Catholic Primary School | Voluntary Aided School | Good | 1.86 KM |
| Dean Valley Community Primary School | Community School | Good | 2.19 KM |
Images
Nearby Streets
| Name | Average Price | Average Sqft | Distance |
|---|---|---|---|
| Store Street | £ 0 | 0 | 0.00 KM |
| Beeston Close | £ 375,000 | 0 | 0.00 KM |
| Cow Lane | £ 0 | 0 | 0.00 KM |
| Hole in the Wall | £ 525,000 | 0 | 0.00 KM |
| Poplar Grove | £ 399,000 | 0 | 0.00 KM |
Nearby Transport
| Name | NLC | TLC | Distance |
|---|---|---|---|
| Adlington (Cheshire) | 2939 | ADC | 4.77 KM |
| Macclesfield | 2871 | MAC | 5.24 KM |
| Prestbury | 2875 | PRB | 5.52 KM |
| Middlewood | 2971 | MDL | 6.96 KM |
| Poynton | 2874 | PYT | 7.16 KM |
Nearby Listings
| Address | Price | Type | Score | Distance |
|---|---|---|---|---|
| Defiance Mill, Bollington | £ 575,000 | BUY | 7 / 10 | 0.00 KM |
| Queen Street, Macclesfield, SK10 | £ 399,500 | BUY | 7 / 10 | 0.01 KM |
| Queen Street, Bollington | £ 300,000 | BUY | 8 / 10 | 0.10 KM |
| Watsons Mill, High Street Bollington, SK10 5PH | £ 345,000 | BUY | 6 / 10 | 0.11 KM |
| High Street, Bollington, SK10 5PH | £ 325,000 | BUY | 5 / 10 | 0.12 KM |
Nearby Properties
| Address | Price | Distance |
|---|---|---|
| 8 Queen Street | £ 63,000 | 0.01 KM |
| 34 Queen Street | £ 179,950 | 0.01 KM |
| 26a Queen Street | £ 159,950 | 0.01 KM |
| 5 Queen Street | £ 325,000 | 0.01 KM |
| 21 Queen Street | £ 230,000 | 0.01 KM |