Highburgh Road, Dowanhill
VA

Highburgh Road, Dowanhill

By Vanilla Square

£ 260,000

Reviews

3 out of 5 stars

Vanilla Square says ..

A beautiful 2 bedroom top floor tenement flat located in Dowanhill, just off Byres Road.

Property Oracle says ..

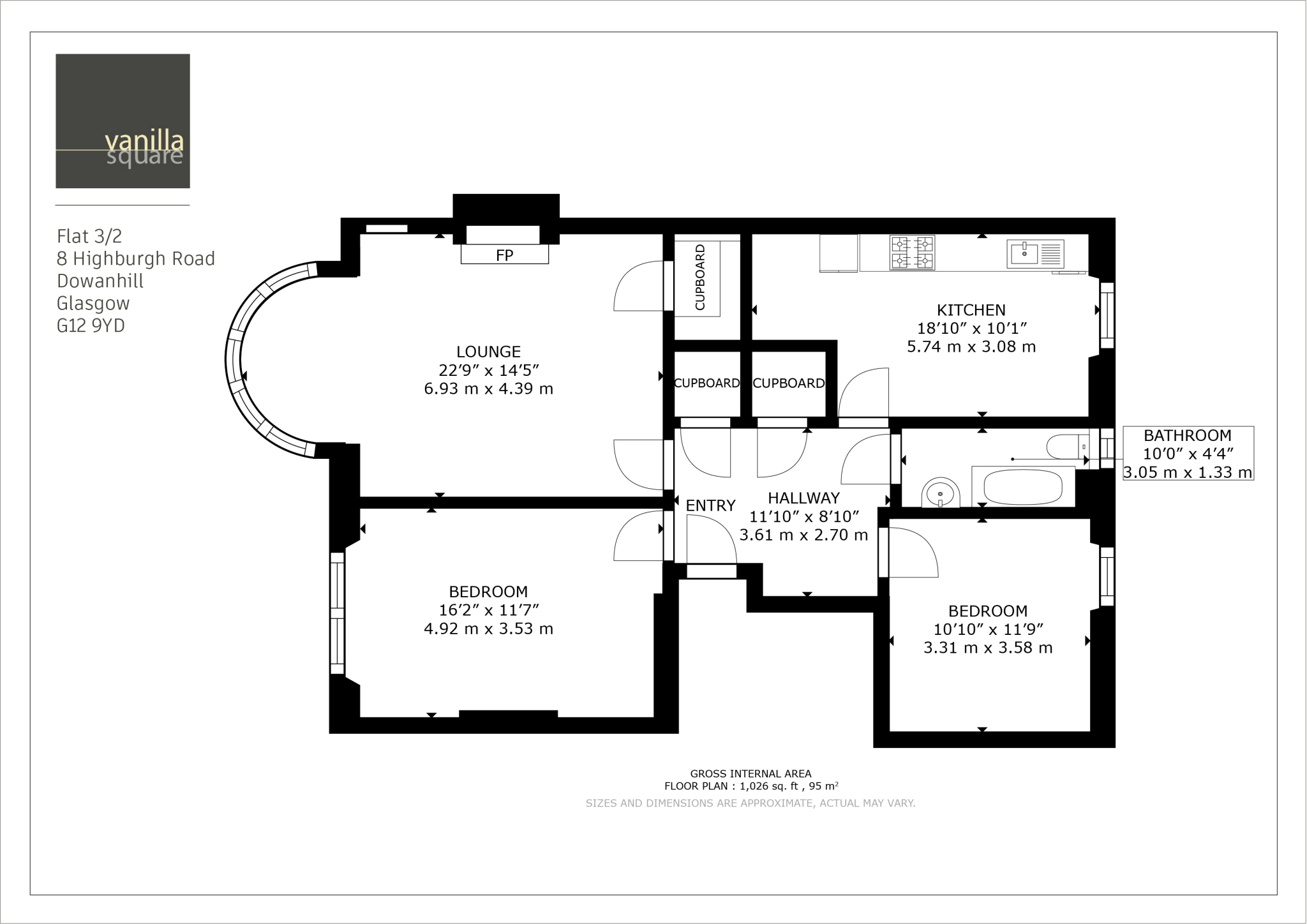
The property is located in Dowanhill, Glasgow, a desirable area known for its Victorian architecture and proximity to amenities. The area benefits from relatively easy access to public transport links, with several train stations within a reasonable distance. While specific schools are not listed, the area’s reputation suggests access to good schooling options. The images show a well-maintained, traditional property with period features, including ornate cornicing and a fireplace. The kitchen appears to be recently updated. The property is a flat, and the plot size is listed as 0.00 sqft, indicating a lack of private outdoor space. The list price is £260,000, while the average price for properties in the area is £333,849, and the average price per sqft is £304.00. Considering the property’s size (1022.57 sqft), its traditional style, and the lack of outdoor space, the list price appears to be slightly below the average price for the area, potentially representing good value. However, further investigation into comparable properties would be needed to confirm this.

Therefore, we give this property 6 / 10. *Disclaimer: This is our option and does constitute a recommendation or financial advice. Do your own research. *

Price
7
Condition
8
Location
9
Land
1
Bedrooms
2
Bathrooms
1
Sqft (est)
1,022.57

The heatmap indicates the level of crime in the area. The color of the heatmap indicates the crime severity and recency.

Metrics Year-on-Year

Average area value
273,565.00 £
Increased by 3.79 %
from 263,578.00 £
Est sale value
288,364.74 £
Increased by 9.73 %
from 262,800.49 £
Average area rental value
1,350.00 £/mo
Decreased by 11.01 %
from 1,517.00 £/mo
Est letting value
1,022.57 £/mo
Unchanged by 0.00 %
from 1,022.57 £/mo
Est rental Yield
5.92 %
Decreased by 14.33 %
from 6.91 %
Crime Rate
0.00 %
from 0.00 %

Agent Activity

  • Vanilla Square created the listing.

Images

MAIN 13-print-8 Highbu... 14-print-8 Highbu... 39-print-8 Highbu... 15-print-8 Highbu... 16-print-8 Highbu... 20-print-8 Highbu... 22-print-8 Highbu... 21-print-8 Highbu... 24-print-8 Highbu... 25-print-8 Highbu... 26-print-8 Highbu... 27-print-8 Highbu... 28-print-8 Highbu... 30-print-8 Highbu... 29-print-8 Highbu... 11-print-8 Highbu... 9-print-8 Highbur... 36-print-8 Highbu... 35-print-8 Highbu... 33-print-8 Highbu... 2-print-8 Highbur... 3-print-8 Highbur... 4-print-8 Highbur...

Nearby Streets

NameAverage PriceAverage SqftDistance
Caledon Street £ 330,00000.00 KM
Telephone Lane £ 000.00 KM
Dowanside Lane £ 000.00 KM
Sutherland Lane £ 000.00 KM
Roxburgh Lane £ 275,00000.00 KM

Nearby Transport

NameNLCTLCDistance
Partick9917PTK1.53 KM
Exhibition Centre (Glasgow)9914EXG1.94 KM
Hyndland9845HYN2.19 KM
Kelvindale1655KVD2.64 KM
Maryhill9957MYH2.65 KM

Nearby Listings

AddressPriceTypeScoreDistance
Highburgh Road, Dowanhill £ 260,000BUY6 / 100.00 KM
Highburgh Road, Dowanhill, Glasgow £ 249,000BUYUnknown0.01 KM
2/3 185 Byres Road, Hillhead, G12 £ 180,000BUY6 / 100.06 KM
4 Caledon Street, Dowanhill, Glasgow G12 9DX £ 325,000BUY7 / 100.09 KM
Dowanside Road, Dowanside, Glasgow, G12 £ 450,000BUY6 / 100.10 KM