Blaenclydach Street, Cardiff
Moginie James logo

Blaenclydach Street, Cardiff

By Moginie James

£ 420,000

Reviews

3 out of 5 stars

Moginie James says ..

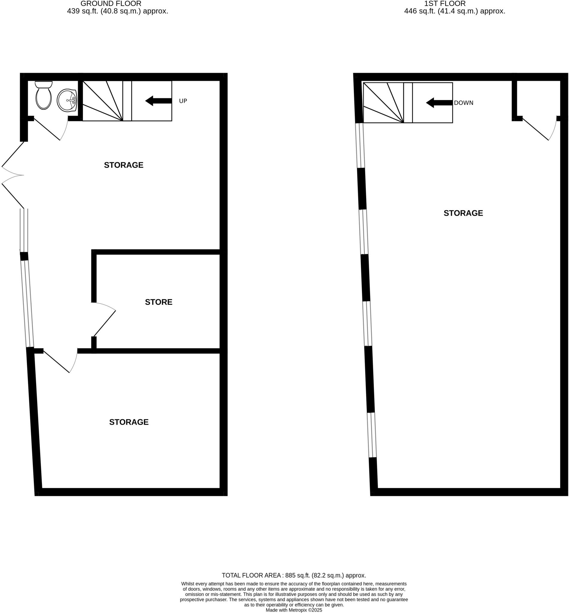
On the market for sale, this immaculate end of terrace house in a sought after location. The property boasts a unique large, two storey, detached coach house, offering a multitude of possibilities, as well as convenient lane access. The house is a perfect blend of traditional and cont...

Property Oracle says ..

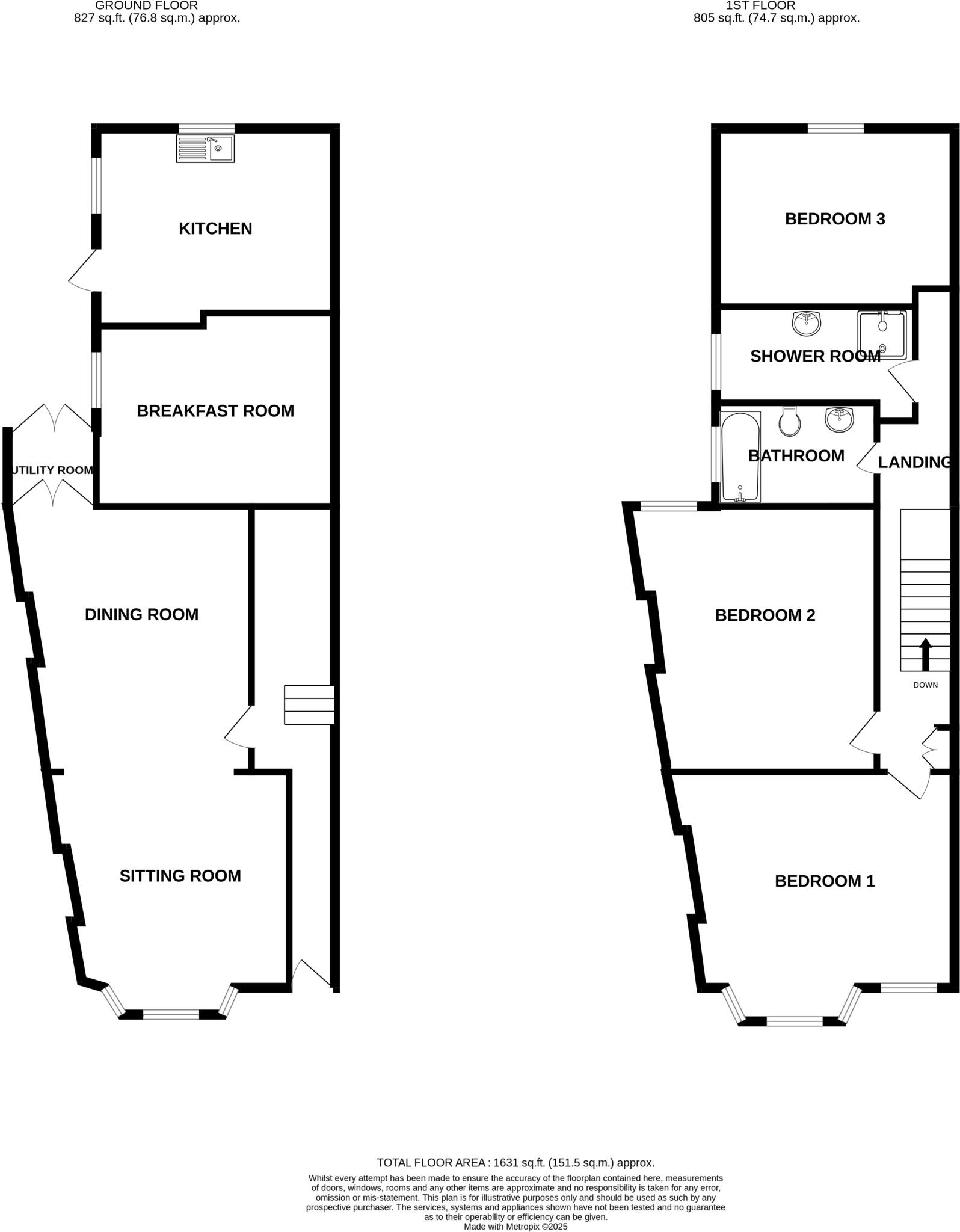
This property is a 3-bedroom end of terrace house located on Blaenclydach Street in Grangetown, Cardiff. The property benefits from being close to Cardiff Central train station and several primary schools. The house itself appears to be a period property that has undergone some modernisation, with a recently updated kitchen and bathroom. It also features a good-sized garden and outbuilding. The list price is higher than the average price for the area but is justified by the size of the property (1381 sqft) and its features. The average price per sqft in the area is £265, but this property is significantly larger than average, and the additional features would command a premium.

Therefore, we give this property 7 / 10. *Disclaimer: This is our option and does constitute a recommendation or financial advice. Do your own research. *

Price
7
Condition
8
Location
7
Land
7
Bedrooms
3
Bathrooms
1
Sqft (est)
1,381.00
Lot (est)
1,631.00

The heatmap indicates the level of crime in the area. The color of the heatmap indicates the crime severity and recency.

Metrics Year-on-Year

Average area value
212,688.00 £
Increased by 2.72 %
from 207,050.00 £
Est sale value
383,918.00 £
Increased by 7.34 %
from 357,679.00 £
Average area rental value
1,100.00 £/mo
Decreased by 0.09 %
from 1,101.00 £/mo
Est letting value
1,381.00 £/mo
Unchanged by 0.00 %
from 1,381.00 £/mo
Est rental Yield
6.21 %
Decreased by 2.66 %
from 6.38 %
Crime Rate
6.00 %
Unchanged by 0.00 %
from 6.00 %

Agent Activity

  • Moginie James created the listing.

Nearby Schools

NameTypeOfstedDistance
Grange Town PrimaryWelsh Establishment0.53 KM
St Patrick'S R.C. Primary SchoolWelsh Establishment0.63 KM
St Paul'S C.I.W. Primary SchoolWelsh Establishment0.72 KM
Grangetown Nursery SchoolWelsh Establishment0.93 KM
St Mary The Virgin C.I.W. Primary SchoolWelsh Establishment1.16 KM

Images

Picture No. 24 Picture No. 23 Picture No. 25 Picture No. 16 Picture No. 12 Picture No. 07 Picture No. 09 Picture No. 15 Picture No. 05 Picture No. 04 Picture No. 21 Picture No. 19 Picture No. 17 Picture No. 10 Picture No. 18 Picture No. 20 Picture No. 22 Picture No. 14 Picture No. 06 Picture No. 08 Google Maps Image

Nearby Streets

NameAverage PriceAverage SqftDistance
Pentre Place £ 150,00000.00 KM
Chester Place £ 283,33300.00 KM
North Street £ 251,65800.00 KM
Warwick Place £ 000.00 KM
Thomas Street £ 000.00 KM

Nearby Transport

NameNLCTLCDistance
Cardiff Central3899CDF0.72 KM
Grangetown (Cardiff)3839GTN0.81 KM
Cardiff Bay3815CDB1.90 KM
Cardiff Queen Street3900CDQ1.90 KM
Cathays3820CYS2.08 KM

Nearby Listings

AddressPriceTypeScoreDistance
Blaenclydach Street, Cardiff £ 420,000BUY7 / 100.00 KM
Blaenclydach Street, Cardiff(City), CF11 £ 270,000BUYUnknown0.01 KM
Taff Embankment, Cardiff(City), CF11 £ 650,000BUY6 / 100.07 KM
Taff Embankment, Cardiff(City), CF11 £ 650,000BUY6 / 100.07 KM
Taff Embankment, Cardiff £ 525,000BUY5 / 100.08 KM

Nearby Properties

AddressPriceDistance
14 Blaenclydach Street £ 181,5000.04 KM
18 Blaenclydach Street £ 262,0000.04 KM
17 Blaenclydach Street £ 135,5000.04 KM
11 Blaenclydach Street £ 127,5000.04 KM
20 Blaenclydach Street £ 180,0000.04 KM