Ocean says ..
A reimagining by the current owners has awakened the delights of this two-bedroom Victorian home in Easton, executed with exquisite taste.
Property Oracle says ..
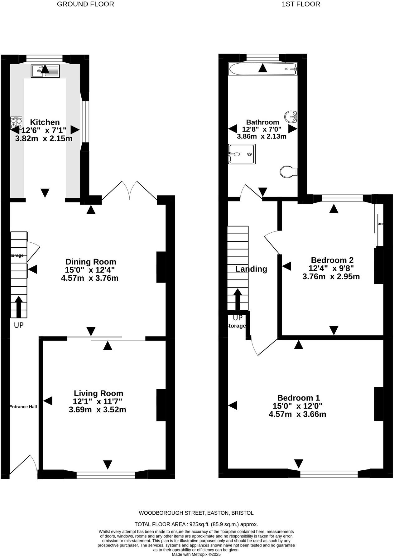
The property is located in Lawrence Hill, Bristol, with good transport links and nearby schools. The property is in good condition, having been recently renovated, and includes a garden. The list price is slightly above average but seems reasonable considering the size and renovations.
Therefore, we give this property 7 / 10. *Disclaimer: This is our option and does constitute a recommendation or financial advice. Do your own research. *
- Price
- 8
- Condition
- 9
- Location
- 7
- Land
- 7
- Bedrooms
- 2
- Bathrooms
- 1
- Sqft (est)
- 924.62
The heatmap indicates the level of crime in the area. The color of the heatmap indicates the crime severity and recency.
Metrics Year-on-Year
- Average area value
- 250,313.00 £Decreased by 14.86 %
- Est sale value
- 379,094.20 £Increased by 4.86 %
- Average area rental value
- 1,834.00 £/moIncreased by 13.07 %
- Est letting value
- 2,773.86 £/moIncreased by 50.00 %
- Est rental Yield
- 8.79 %Increased by 32.78 %
- Crime Rate
- 11.00 %Unchanged by 0.00 %
from 293,989.00 £
from 361,526.42 £
from 1,622.00 £/mo
from 1,849.24 £/mo
from 6.62 %
from 11.00 %
Agent Activity
Ocean created the listing.
Nearby Schools
| Name | Type | Ofsted | Distance |
|---|---|---|---|
| Bannerman Road Children'S Centre | Children's Centre | 0.28 KM | |
| Bannerman Road Community Academy | Academy Sponsor Led | Requires improvement | 0.29 KM |
| Evergreen Primary Academy | Academy Sponsor Led | 0.51 KM | |
| Easton Church Of England Academy | Academy Sponsor Led | Good | 0.79 KM |
| St Werburgh'S Primary School | Academy Converter | 0.81 KM |
Images
Nearby Streets
| Name | Average Price | Average Sqft | Distance |
|---|---|---|---|
| Saint Gabriels Road | £ 375,000 | 0 | 0.00 KM |
| Roman Road | £ 345,000 | 0 | 0.00 KM |
| Brixton Road | £ 340,000 | 0 | 0.00 KM |
| Chapel Road | £ 0 | 0 | 0.00 KM |
| Lower Ashley Way | £ 0 | 0 | 0.00 KM |
Nearby Transport
| Name | NLC | TLC | Distance |
|---|---|---|---|
| Stapleton Road | 3250 | SRD | 0.34 KM |
| Lawrence Hill | 3225 | LWH | 0.85 KM |
| Bristol Temple Meads | 3231 | BRI | 2.30 KM |
| Montpelier | 3203 | MTP | 2.34 KM |
| Redland | 3247 | RDA | 3.48 KM |
Nearby Listings
| Address | Price | Type | Score | Distance |
|---|---|---|---|---|
| Woodborough Street, Bristol | £ 375,000 | BUY | 7 / 10 | 0.00 KM |
| Woodborough Street, Bristol | £ 399,950 | BUY | 5 / 10 | 0.02 KM |
| Woodborough Street, Easton, Bristol | £ 375,000 | BUY | 6 / 10 | 0.04 KM |
| Woodborough Street, Bristol, BS5 | £ 330,000 | BUY | 5 / 10 | 0.05 KM |
| Heron Road, Bristol | £ 400,000 | BUY | 7 / 10 | 0.08 KM |
Nearby Properties
| Address | Price | Distance |
|---|---|---|
| 15 Woodborough Street | £ 272,500 | 0.03 KM |
| 47 Woodborough Street | £ 225,000 | 0.03 KM |
| 29 Woodborough Street | £ 300,000 | 0.03 KM |
| 37 Woodborough Street | £ 287,000 | 0.03 KM |
| 13 Woodborough Street | £ 78,000 | 0.03 KM |