MO
Shorts Reach, Esplanade, Rochester, Kent. ME1
By Moxy Property Consultants
£ 270,000
Reviews
3 out of 5 stars
Moxy Property Consultants says ..
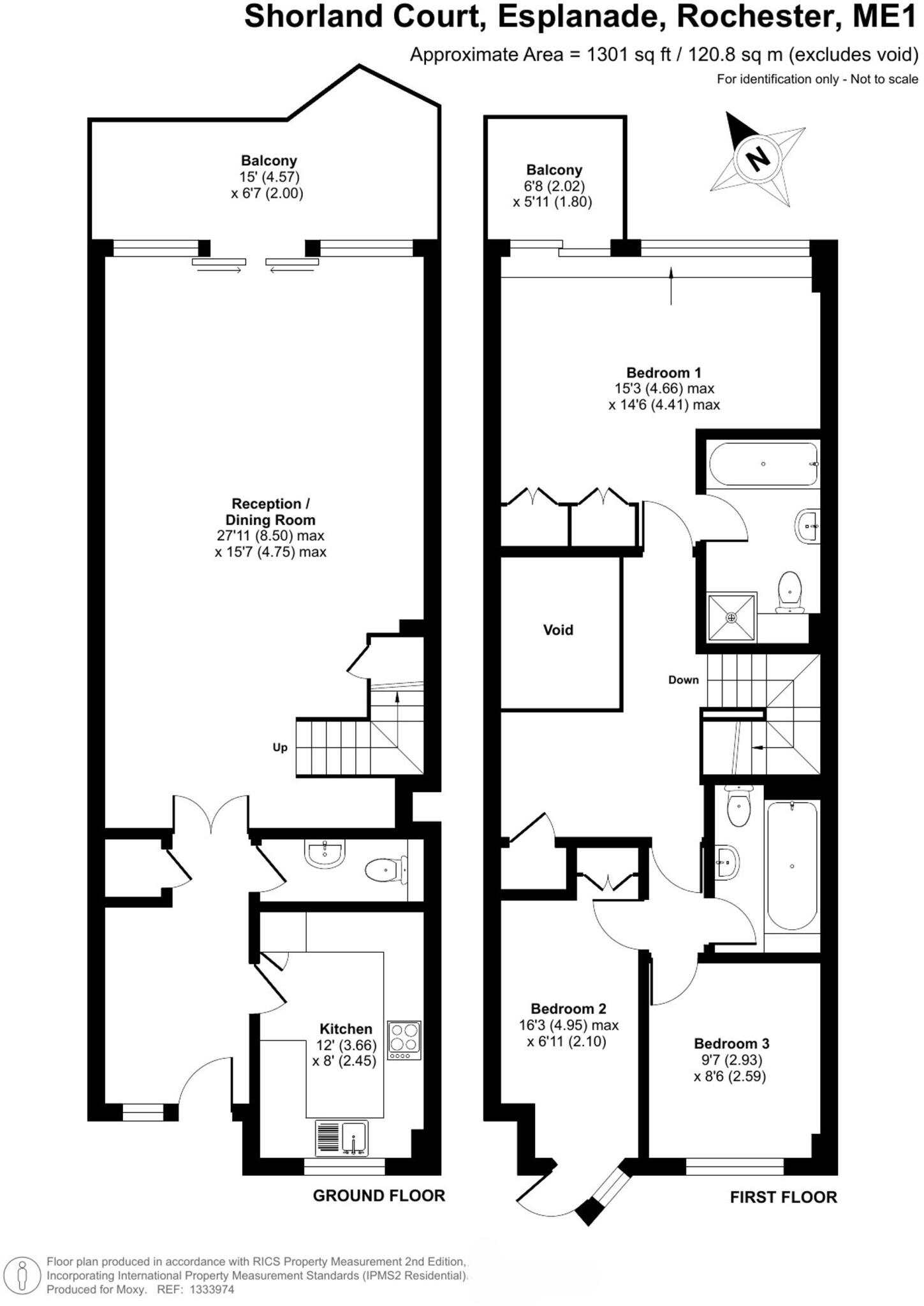
Three bed, two bath, maisonette in an exclusive gated development on Rochester’s Esplanade. 1,300 sq ft, terrace, balcony with castle views. Walk to High Street & station. A rare find! Call MOXY now.
Property Oracle says ..
Therefore, we give this property 7 / 10. *Disclaimer: This is our option and does constitute a recommendation or financial advice. Do your own research. *
- Price
- 9
- Condition
- 6
- Location
- 7
- Land
- 6
- Bedrooms
- 3
- Bathrooms
- 2
- Sqft (est)
- 1,301.00
The heatmap indicates the level of crime in the area. The color of the heatmap indicates the crime severity and recency.
Metrics Year-on-Year
- Average area value
- 265,071.00 £Decreased by 34.02 %
- Est sale value
- 552,925.00 £Increased by 48.60 %
- Average area rental value
- 1,344.00 £/moDecreased by 2.33 %
- Est letting value
- 2,602.00 £/mo
- Est rental Yield
- 6.08 %Increased by 47.93 %
- Crime Rate
- 3.00 %Unchanged by 0.00 %
from 401,762.00 £
from 372,086.00 £
from 1,376.00 £/mo
from 0.00 £/mo
from 4.11 %
from 3.00 %
Agent Activity
Moxy Property Consultants created the listing.
Nearby Schools
| Name | Type | Ofsted | Distance |
|---|---|---|---|
| St Andrew'S School (Rochester) | Other Independent School | 0.26 KM | |
| King'S School, Rochester | Other Independent School | 0.61 KM | |
| St Margaret'S At Troy Town Cofe Voluntary Controlled Primary School | Academy Converter | 0.81 KM | |
| St Margaret'S At Troy Town Children'S Centre | Children's Centre | 0.81 KM | |
| St Peter'S Infant School | Community School | Good | 1.16 KM |
Images
Nearby Streets
| Name | Average Price | Average Sqft | Distance |
|---|---|---|---|
| St. Margaret's Street | £ 740,000 | 0 | 0.00 KM |
| Hooper's Place | £ 0 | 0 | 0.00 KM |
| Castle Hill Court | £ 0 | 0 | 0.00 KM |
| Deanery Gate | £ 0 | 0 | 0.00 KM |
| Isaac Blake Place | £ 0 | 0 | 0.00 KM |
Nearby Transport
| Name | NLC | TLC | Distance |
|---|---|---|---|
| Strood (Kent) | 5191 | SOO | 1.38 KM |
| Rochester | 5203 | RTR | 1.43 KM |
| Chatham | 5199 | CTM | 2.67 KM |
| Cuxton | 5201 | CUX | 4.12 KM |
| Gillingham (Kent) | 5169 | GLM | 5.80 KM |
Nearby Listings
| Address | Price | Type | Score | Distance |
|---|---|---|---|---|
| Shorland Court, Esplanade, Rochester | £ 300,000 | BUY | 6 / 10 | 0.00 KM |
| Shorts Reach, Esplanade, Rochester, Kent. ME1 | £ 240,000 | BUY | 6 / 10 | 0.00 KM |
| Shorts Reach, Esplanade, Rochester, Kent. ME1 | £ 270,000 | BUY | 7 / 10 | 0.00 KM |
| Esplanade, Esplanade, Rochester, Kent | £ 230,000 | BUY | 5 / 10 | 0.00 KM |
| Shorland Court, Esplanade, Rochester, Kent, ME1 | £ 300,000 | BUY | 5 / 10 | 0.01 KM |
Nearby Properties
| Address | Price | Distance |
|---|---|---|
| 1 Shorland Court | £ 265,000 | 0.02 KM |
| 6 Shorland Court | £ 275,000 | 0.02 KM |
| 9 Shorland Court | £ 250,000 | 0.02 KM |
| 3 Shorland Court | £ 240,000 | 0.02 KM |
| 4 Shorland Court | £ 220,000 | 0.02 KM |