Roth Walk, Andover Estate, London, N7
By Drivers & Norris
£ 475,000
Reviews
2 out of 5 stars
Drivers & Norris says ..
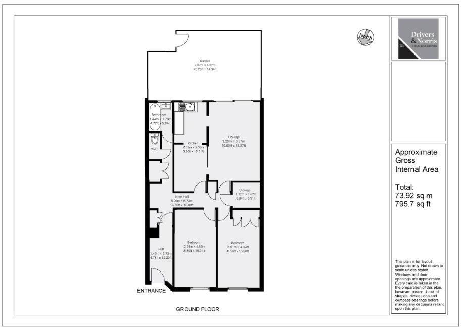
Two double bedroom property with direct access to the private back garden.
Property Oracle says ..
This is a two-bedroom apartment located in Finsbury Park, London. The property is in a good location, with access to local amenities, schools and transport links. The property is reasonably priced compared to similar properties in the area. The property may benefit from some modernisation. It is located close to Finsbury Park station and several schools with ‘Good’ Ofsted ratings.
Therefore, we give this property 5 / 10. *Disclaimer: This is our option and does constitute a recommendation or financial advice. Do your own research. *
- Price
- 7
- Condition
- 5
- Location
- 7
- Land
- 3
- Bedrooms
- 2
- Bathrooms
- 1
- Sqft (est)
- 959.39
The heatmap indicates the level of crime in the area. The color of the heatmap indicates the crime severity and recency.
Metrics Year-on-Year
- Average area value
- 493,333.00 £Decreased by 29.75 %
- Est sale value
- 721,461.28 £Decreased by 12.66 %
- Average area rental value
- 2,514.00 £/moIncreased by 5.59 %
- Est letting value
- 2,878.17 £/moIncreased by 50.00 %
- Est rental Yield
- 6.12 %Increased by 50.37 %
- Crime Rate
- 8.00 %Unchanged by 0.00 %
Agent Activity
Drivers & Norris created the listing.
Nearby Schools
| Name | Type | Ofsted | Distance |
|---|---|---|---|
| Pooles Park Primary School | Community School | Good | 0.30 KM |
| Montem Primary School | Community School | Good | 0.39 KM |
| Hornsey Road Childrens Centre | Children's Centre | 0.48 KM | |
| Pakeman Primary School | Community School | Good | 0.49 KM |
| North Islington Nursery School | Local Authority Nursery School | Good | 0.51 KM |
Images
Nearby Streets
| Name | Average Price | Average Sqft | Distance |
|---|---|---|---|
| Cornwallis Square | £ 250,000 | 0 | 0.00 KM |
| Dulas Street | £ 0 | 0 | 0.00 KM |
| Franchise Place | £ 0 | 0 | 0.00 KM |
| Citizen Road | £ 500,000 | 0 | 0.00 KM |
| Hertslet Road | £ 0 | 0 | 0.00 KM |
Nearby Transport
| Name | NLC | TLC | Distance |
|---|---|---|---|
| Finsbury Park | 6119 | FPK | 0.60 KM |
| Crouch Hill | 7406 | CRH | 1.17 KM |
| Drayton Park | 6000 | DYP | 1.26 KM |
| Harringay | 6012 | HGY | 1.80 KM |
| Highbury And Islington | 6009 | HHY | 2.00 KM |
Nearby Listings
| Address | Price | Type | Score | Distance |
|---|---|---|---|---|
| Roth Walk, Finsbury Park, N7 | £ 350,000 | BUY | 5 / 10 | 0.00 KM |
| Roth Walk, Andover Estate, London, N7 | £ 475,000 | BUY | 5 / 10 | 0.00 KM |
| Roth Walk, Andover Estate, London, N7 | £ 475,000 | BUY | 5 / 10 | 0.00 KM |
| Roth Walk, Islington, London, N7 | £ 450,000 | BUY | 5 / 10 | 0.05 KM |
| Flat 16 Monksfield, Six Acres Estate, Durham Road, Finsbury Park, N4 3PF | £ 200,000 | BUY | 5 / 10 | 0.07 KM |
Nearby Properties
| Address | Price | Distance |
|---|---|---|
| 49 Roth Walk | £ 470,000 | 0.01 KM |
| 62 Roth Walk | £ 480,000 | 0.01 KM |
| 12 Roth Walk | £ 210,000 | 0.01 KM |
| 58 Roth Walk | £ 520,000 | 0.01 KM |
| 16 Roth Walk | £ 230,000 | 0.01 KM |