Trinity Avenue, Mildenhall, Bury St. Edmunds, Suffolk, IP28
By Balmforth
£ 240,000
Reviews
3 out of 5 stars
Balmforth says ..
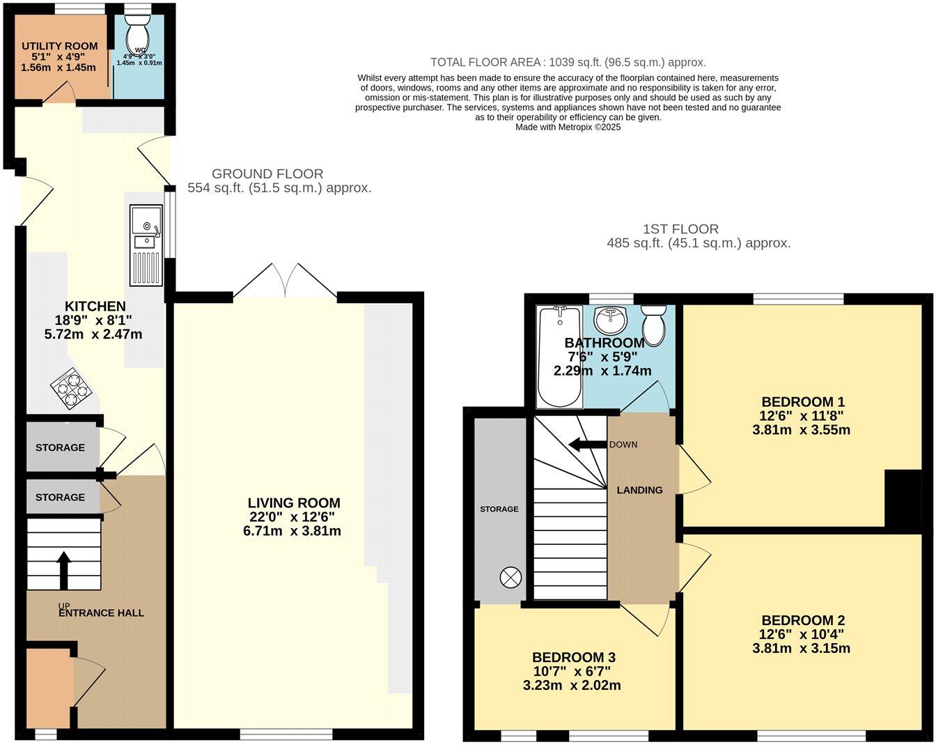
This spacious CHAIN FREE EXTENDED THREE BEDROOM mid-terrace property located within the town of MILDENHALL offers the perfect opportunity to create a home tailored to your taste. Just a short walk from the market square, local schools, and parks, the property boasts GENEROUS room sizes, a lounge/
Property Oracle says ..
This is a three-bedroom terraced house on Trinity Avenue, Mildenhall. The property benefits from its proximity to well-rated schools and a good-sized garden. However, the property requires renovation, with dated decor and some areas in need of repair. The asking price of £240,000 is slightly above the average for the area, but the property offers more square footage than average. Overall, this property presents an opportunity for buyers willing to undertake a renovation project in a convenient location.
Therefore, we give this property 6 / 10. *Disclaimer: This is our option and does constitute a recommendation or financial advice. Do your own research. *
- Price
- 7
- Condition
- 4
- Location
- 7
- Land
- 7
- Bedrooms
- 3
- Bathrooms
- 2
- Sqft (est)
- 828.77
The heatmap indicates the level of crime in the area. The color of the heatmap indicates the crime severity and recency.
Metrics Year-on-Year
- Average area value
- 223,188.00 £Decreased by 13.36 %
- Est sale value
- 260,233.78 £Decreased by 2.48 %
- Average area rental value
- 1,283.00 £/moIncreased by 2.15 %
- Est letting value
- 828.77 £/moUnchanged by 0.00 %
- Est rental Yield
- 6.90 %Increased by 17.95 %
- Crime Rate
- 6.00 %Unchanged by 0.00 %
Agent Activity
Balmforth created the listing.
Nearby Schools
| Name | Type | Ofsted | Distance |
|---|---|---|---|
| St Mary'S Church Of England Academy | Academy Converter | Good | 0.13 KM |
| Great Heath Academy | Academy Sponsor Led | Good | 0.39 KM |
| Lark Children'S Centre | Children's Centre | 0.83 KM | |
| Mildenhall College Academy | Academy Converter | Good | 1.65 KM |
| On Track Education Centre (Mildenhall) | Other Independent Special School | Good | 1.72 KM |
Images
Nearby Streets
| Name | Average Price | Average Sqft | Distance |
|---|---|---|---|
| Darwin Close | £ 0 | 0 | 0.00 KM |
| Fleming Avenue | £ 230,000 | 0 | 0.00 KM |
| Manor Road | £ 0 | 0 | 0.00 KM |
| Old Bakery Lane | £ 0 | 0 | 0.00 KM |
| Manor Road | £ 0 | 0 | 0.00 KM |
Nearby Transport
| Name | NLC | TLC | Distance |
|---|---|---|---|
| Kennett | 7011 | KNE | 8.37 KM |
Nearby Listings
| Address | Price | Type | Score | Distance |
|---|---|---|---|---|
| Trinity Avenue, Mildenhall, Bury St. Edmunds, Suffolk, IP28 | £ 240,000 | BUY | 6 / 10 | 0.00 KM |
| Scott Avenue, Mildenhall, Bury St. Edmunds, Suffolk, IP28 | £ 235,000 | BUY | 7 / 10 | 0.16 KM |
| Bunbury Avenue, Mildenhall, Bury St. Edmunds, Suffolk, IP28 | £ 260,000 | BUY | 6 / 10 | 0.20 KM |
| 45 Bunbury Avenue, Mildenhall, Suffolk, IP28 7LU | £ 75,000 | BUY | 6 / 10 | 0.21 KM |
| Globe Close , Field Road , Mildenhall | £ 280,000 | BUY | 6 / 10 | 0.28 KM |
Nearby Properties
| Address | Price | Distance |
|---|---|---|
| 53 Trinity Avenue | £ 116,000 | 0.09 KM |
| 51 Trinity Avenue | £ 165,000 | 0.09 KM |
| 65 Trinity Avenue | £ 17,000 | 0.09 KM |
| 63 Trinity Avenue | £ 168,000 | 0.09 KM |
| 82 Trinity Avenue | £ 112,000 | 0.09 KM |