Chobham Road, Knaphill, Woking, Surrey, GU21
By Seymours Estate Agents
£ 699,950
Reviews
3 out of 5 stars
Seymours Estate Agents says ..
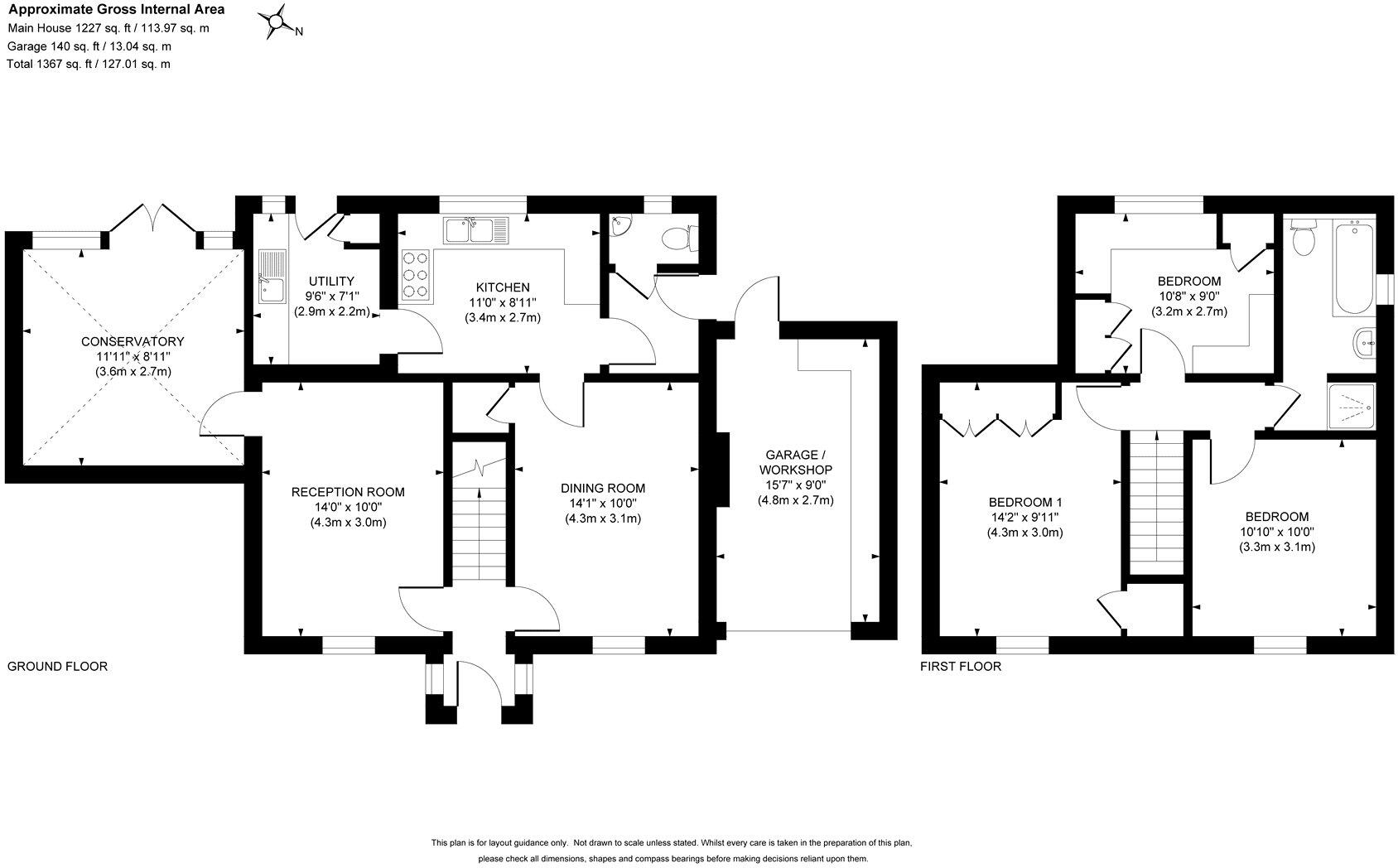
An attractive detached character cottage, just a short walk from Knaphill village, which offers a wide range of amenities. The property is also conveniently located close to Brookwood Mainline Station and is offered to the market with no onward chain. For those who travel frequently, Heathrow Air...
Property Oracle says ..
This is a detached property located on Chobham Road, Knaphill, Woking, Surrey. It features three bedrooms and one bathroom, with a total square footage of 1,035. The property includes a garage, a conservatory, and a generously sized garden with a patio area. While the property appears to be in generally good condition, some areas could benefit from modernisation. The location is convenient, with nearby schools and transportation links. The asking price is slightly above the average for the area, potentially reflecting the detached status and garden size.
Therefore, we give this property 7 / 10. *Disclaimer: This is our option and does constitute a recommendation or financial advice. Do your own research. *
- Price
- 6
- Condition
- 7
- Location
- 7
- Land
- 8
- Bedrooms
- 3
- Bathrooms
- 1
- Sqft (est)
- 1,035.00
The heatmap indicates the level of crime in the area. The color of the heatmap indicates the crime severity and recency.
Metrics Year-on-Year
- Average area value
- 586,400.00 £Increased by 18.76 %
- Est sale value
- 492,660.00 £Increased by 6.01 %
- Average area rental value
- 2,150.00 £/moIncreased by 9.47 %
- Est letting value
- 1,035.00 £/moUnchanged by 0.00 %
- Est rental Yield
- 4.40 %Decreased by 7.76 %
- Crime Rate
- 3.00 %Unchanged by 0.00 %
Agent Activity
Seymours Estate Agents created the listing.
Nearby Schools
| Name | Type | Ofsted | Distance |
|---|---|---|---|
| Knaphill School | Academy Converter | 0.17 KM | |
| The Knaphill Lower School | Academy Converter | 0.26 KM | |
| Bisley Cofe Primary School | Voluntary Aided School | Good | 1.41 KM |
| Brookwood Primary School | Academy Sponsor Led | Good | 1.60 KM |
| St Hugh Of Lincoln Catholic Primary School | Academy Converter | Good | 1.70 KM |
Images
Nearby Streets
| Name | Average Price | Average Sqft | Distance |
|---|---|---|---|
| Trinity Road | £ 660,000 | 0 | 0.00 KM |
| Stafford Lake | £ 0 | 0 | 0.00 KM |
| Barton Close | £ 0 | 0 | 0.00 KM |
| Oak Tree Road | £ 0 | 0 | 0.00 KM |
| Rose Lodge | £ 0 | 0 | 0.00 KM |
Nearby Transport
| Name | NLC | TLC | Distance |
|---|---|---|---|
| Brookwood | 5687 | BKO | 1.96 KM |
| Worplesdon | 5686 | WPL | 5.62 KM |
| Woking | 5685 | WOK | 7.48 KM |
| Longcross | 5674 | LNG | 8.24 KM |
| Sunningdale | 5671 | SNG | 8.35 KM |
Nearby Listings
| Address | Price | Type | Score | Distance |
|---|---|---|---|---|
| Chobham Road, Knaphill, Woking, Surrey, GU21 | £ 699,950 | BUY | 7 / 10 | 0.00 KM |
| Chobham Road, Knaphill, Woking, GU21 | £ 525,000 | BUY | 7 / 10 | 0.05 KM |
| Chobham Road, Knaphill, Woking, Surrey, GU21 | £ 600,000 | BUY | 6 / 10 | 0.07 KM |
| Chobham Road, Knaphill, Woking, Surrey, GU21 | £ 650,000 | BUY | Unknown | 0.14 KM |
| High Street, Knaphill, Woking, Surrey, GU21 | £ 450,000 | BUY | 7 / 10 | 0.14 KM |
Nearby Properties
| Address | Price | Distance |
|---|---|---|
| 25 Chobham Road | £ 270,000 | 0.05 KM |
| 17 Chobham Road | £ 340,000 | 0.05 KM |
| 2 Chobham Road | £ 580,000 | 0.05 KM |
| 20 Chobham Road | £ 310,000 | 0.05 KM |
| 15 Chobham Road | £ 210,000 | 0.05 KM |