Horseshoe Lane, Alderley Edge
By Gascoigne Halman
£ 450,000
Reviews
4 out of 5 stars
Gascoigne Halman says ..
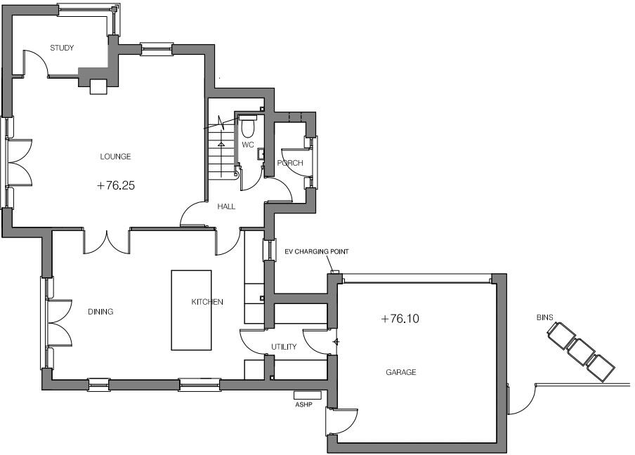
An exciting development opportunity to acquire a plot of land with planning permission granted to construct a four-bedroom detached family home extending to approximately 2090 sq ft. Located within pleasant gardens and within easy reach of Alderley Edge village. FOR SALE BY INFORMAL TENDER closin...
Property Oracle says ..
The property is a plot of land with a proposed new dwelling located in Alderley Edge. It has a substantial garden and is conveniently located near Alderley Edge train station and several schools.
Therefore, we give this property 8 / 10. *Disclaimer: This is our option and does constitute a recommendation or financial advice. Do your own research. *
- Price
- 7
- Condition
- 0
- Location
- 9
- Land
- 8
- Bedrooms
- 0
- Bathrooms
- 0
- Sqft (est)
- 2,296.48
The heatmap indicates the level of crime in the area. The color of the heatmap indicates the crime severity and recency.
Metrics Year-on-Year
- Average area value
- 430,000.00 £Decreased by 45.17 %
- Est sale value
- 707,315.84 £Decreased by 45.87 %
- Average area rental value
- 4,000.00 £/moIncreased by 70.00 %
- Est letting value
- 4,592.96 £/moIncreased by 100.00 %
- Est rental Yield
- 11.16 %Increased by 210.00 %
- Crime Rate
- 4.00 %Unchanged by 0.00 %
Agent Activity
Gascoigne Halman created the listing.
Nearby Schools
| Name | Type | Ofsted | Distance |
|---|---|---|---|
| Alderley Edge School For Girls | Other Independent School | 0.30 KM | |
| Alderley Edge Community Primary School | Community School | Outstanding | 0.46 KM |
| The Ryleys School | Other Independent School | 0.95 KM | |
| Ashdene Primary School | Community School | Outstanding | 1.61 KM |
| St Anne'S Fulshaw C Of E Primary School | Voluntary Controlled School | Good | 1.72 KM |
Images
Nearby Streets
| Name | Average Price | Average Sqft | Distance |
|---|---|---|---|
| Fairfield Gardens | £ 0 | 0 | 0.00 KM |
| Greystoke Drive | £ 0 | 0 | 0.00 KM |
| Orme Street | £ 350,000 | 0 | 0.00 KM |
| Oakfield Close | £ 0 | 0 | 0.00 KM |
| Heathfield | £ 750,000 | 0 | 0.00 KM |
Nearby Transport
| Name | NLC | TLC | Distance |
|---|---|---|---|
| Alderley Edge | 2760 | ALD | 0.42 KM |
| Wilmslow | 2774 | WML | 2.46 KM |
| Styal | 2868 | SYA | 4.55 KM |
| Handforth | 2767 | HTH | 5.05 KM |
| Chelford (Cheshire) | 2764 | CEL | 6.34 KM |
Nearby Listings
| Address | Price | Type | Score | Distance |
|---|---|---|---|---|
| Horseshoe Lane, Alderley Edge | £ 450,000 | BUY | 8 / 10 | 0.00 KM |
| Wilmslow Road, Alderley Edge, Cheshire, SK9 | £ 2,500,000 | BUY | 6 / 10 | 0.05 KM |
| The Oaks, Horseshoe Lane, Alderley Edge | £ 375,000 | BUY | 7 / 10 | 0.06 KM |
| Oak Bank, Brook Lane, Alderley Edge | £ 950,000 | BUY | 8 / 10 | 0.16 KM |
| Brook Lane, Alderley Edge | £ 115,000 | BUY | 5 / 10 | 0.16 KM |
Nearby Properties
| Address | Price | Distance |
|---|---|---|
| Dodge Fold | £ 895,000 | 0.10 KM |
| Bridge Cottage | £ 560,000 | 0.10 KM |
| Hyggelig | £ 495,000 | 0.10 KM |
| 5 Woodleigh Court | £ 239,500 | 0.12 KM |
| 4 Hurstlea Court | £ 265,000 | 0.18 KM |