Pearsons says ..
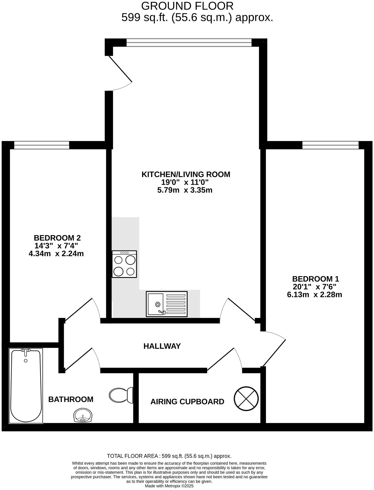
This ground floor two bedroom apartment benefits from its own front door and is located in a popular development to the north of Fareham town centre. The internal accommodation comprises; 19' kitchen/living room, hallway, bathroom, 20' bedroom one and a second bedroom. Outside, the property benef...
Property Oracle says ..
This 2-bedroom, 1-bathroom flat located in Fareham, Hampshire, is listed at £169,950. The property is situated in Furze Court, a development that appears to be in a reasonably maintained condition. The interior photos show a modern, if somewhat sparsely decorated, flat with a functional kitchen and bathroom. The living area is open-plan, creating a sense of spaciousness within the relatively small footprint. The bedrooms appear adequately sized for a two-bedroom property. While the outside space is limited to a small garden area, the location is a definite plus. The close proximity to well-regarded primary schools and Fareham train station adds significant value. The overall impression is of a reasonably priced, well-maintained flat suitable for first-time buyers or investors, although potential buyers should be aware of the limited outdoor space. The absence of detailed information regarding the average price per square foot in the immediate vicinity makes a definitive price analysis challenging. However, comparison with similar properties on the market suggests the listing price is competitive and likely reflects the current market conditions in the area.
Therefore, we give this property 5 / 10. *Disclaimer: This is our option and does constitute a recommendation or financial advice. Do your own research. *
- Price
- 7
- Condition
- 6
- Location
- 7
- Land
- 2
- Bedrooms
- 2
- Bathrooms
- 1
- Sqft (est)
- 598.47
The heatmap indicates the level of crime in the area. The color of the heatmap indicates the crime severity and recency.
Metrics Year-on-Year
- Average area value
- 381,429.00 £Increased by 14.83 %
- Est sale value
- 266,319.15 £Increased by 39.06 %
- Average area rental value
- 1,375.00 £/moIncreased by 14.30 %
- Est letting value
- 598.47 £/moUnchanged by 0.00 %
- Est rental Yield
- 4.33 %Decreased by 0.46 %
- Crime Rate
- 4.00 %Unchanged by 0.00 %
Agent Activity
Pearsons marked this listing as sold.
Pearsons created the listing.
Nearby Schools
| Name | Type | Ofsted | Distance |
|---|---|---|---|
| Boundary Oak School | Other Independent School | 0.74 KM | |
| Harrison Primary School | Community School | Outstanding | 0.93 KM |
| Uplands Primary School | Community School | Good | 1.15 KM |
| Kingsgate School | Other Independent Special School | Good | 1.68 KM |
| Redlands Primary School | Community School | Outstanding | 2.29 KM |
Images
Nearby Streets
| Name | Average Price | Average Sqft | Distance |
|---|---|---|---|
| Tanglewood | £ 750,000 | 0 | 0.00 KM |
| Pook Lane | £ 0 | 0 | 0.00 KM |
| Palmerston Avenue | £ 418,333 | 0 | 0.00 KM |
| Trinity Street | £ 0 | 0 | 0.00 KM |
| Moresby Court | £ 142,250 | 0 | 0.00 KM |
Nearby Transport
| Name | NLC | TLC | Distance |
|---|---|---|---|
| Fareham | 5900 | FRM | 1.86 KM |
| Portchester | 5928 | PTC | 6.53 KM |
| Swanwick | 5920 | SNW | 9.47 KM |
Nearby Listings
| Address | Price | Type | Score | Distance |
|---|---|---|---|---|
| FURZE COURT, FAREHAM | £ 169,950 | BUY | 5 / 10 | 0.00 KM |
| Wickham Road, Fareham | £ 175,000 | BUY | 7 / 10 | 0.03 KM |
| Wickham Road, Fareham | £ 215,000 | BUY | 7 / 10 | 0.03 KM |
| 120 Wickham Road, Fareham, PO16 7FR | £ 165,000 | BUY | 6 / 10 | 0.03 KM |
| Wickham Road, Fareham | £ 175,000 | BUY | 6 / 10 | 0.06 KM |
Nearby Properties
| Address | Price | Distance |
|---|---|---|
| 5 Cornfield | £ 410,000 | 0.08 KM |
| 7 Cornfield | £ 357,500 | 0.08 KM |
| 24 Cornfield | £ 435,000 | 0.08 KM |
| 3 Cornfield | £ 250,000 | 0.08 KM |
| 17 Cornfield | £ 310,000 | 0.08 KM |