Park Lane, Burn, Selby
By Park Row Properties
£ 400,000
Reviews
3 out of 5 stars
Park Row Properties says ..
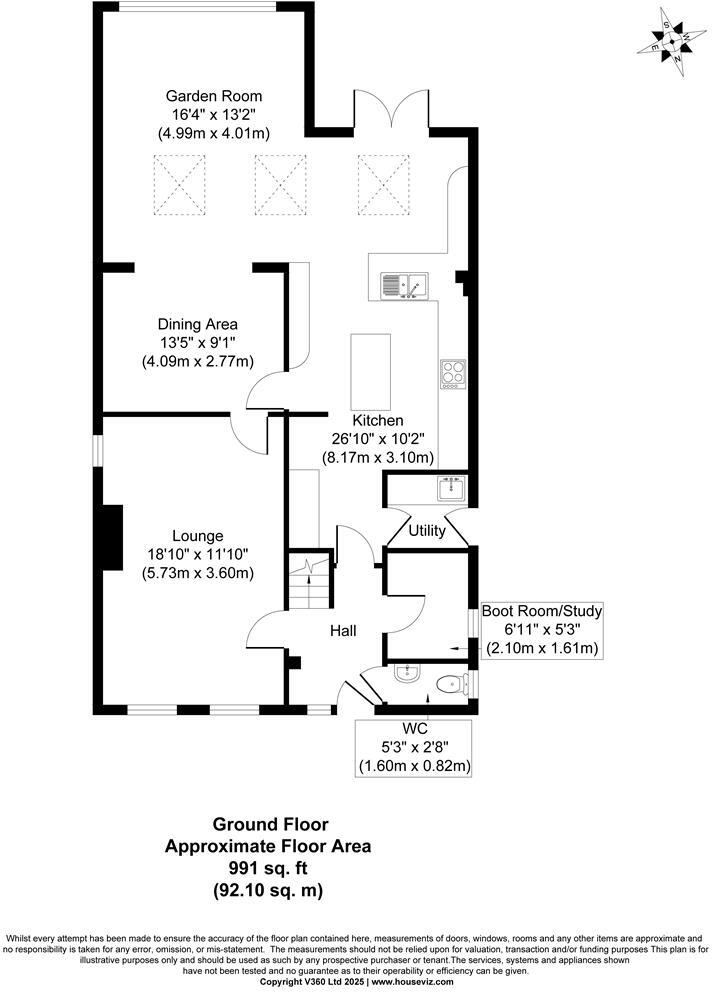
EXTENDED PROPERTY with DETACHED GARAGE
Property Oracle says ..
This four-bedroom, two-bathroom property located on Park Lane in Burn, Selby, presents itself as a well-maintained family home. The interior photographs showcase a modern, updated kitchen and bathrooms, suggesting recent improvements or renovations. The living spaces appear spacious and comfortably furnished. The property benefits from a garden, providing outdoor space. The location in Burn offers a balance between rural tranquility and proximity to the amenities of Selby and transport links. While several primary schools are within reasonable driving distance, access to secondary education would need further investigation. The train stations at Selby and nearby villages provide a connection to larger towns and cities. The list price of £400,000 requires further analysis against comparable properties to determine its competitiveness within the market. The lack of precise plot size information and detailed local market data limits the ability to provide a definitive valuation. Overall, the property appears to be a suitable family home in a convenient location, provided the price aligns with the local market average.
Therefore, we give this property 7 / 10. *Disclaimer: This is our option and does constitute a recommendation or financial advice. Do your own research. *
- Price
- 7
- Condition
- 8
- Location
- 7
- Land
- 6
- Bedrooms
- 4
- Bathrooms
- 2
- Sqft (est)
- 991.36
The heatmap indicates the level of crime in the area. The color of the heatmap indicates the crime severity and recency.
Metrics Year-on-Year
- Average area value
- 227,143.00 £Decreased by 21.02 %
- Est sale value
- 246,848.64 £Decreased by 24.55 %
- Average area rental value
- 1,237.00 £/moIncreased by 11.34 %
- Est letting value
- 991.36 £/moUnchanged by 0.00 %
- Est rental Yield
- 6.54 %Increased by 40.95 %
- Crime Rate
- 8.00 %Unchanged by 0.00 %
Agent Activity
Park Row Properties created the listing.
Nearby Schools
| Name | Type | Ofsted | Distance |
|---|---|---|---|
| Brayton Church Of England Primary School | Academy Sponsor Led | 2.42 KM | |
| St Mary'S Catholic Primary School, A Voluntary Academy | Academy Converter | 3.16 KM | |
| Brayton Academy | Academy Sponsor Led | Outstanding | 3.26 KM |
| Chapel Haddlesey Church Of England Voluntary Controlled Primary School | Voluntary Controlled School | Good | 3.67 KM |
| Selby, Longman'S Hill Community Primary School | Community School | Good | 3.74 KM |
Images
Nearby Streets
| Name | Average Price | Average Sqft | Distance |
|---|---|---|---|
| Harrier Close | £ 251,833 | 0 | 0.00 KM |
| Willow Bank | £ 380,000 | 0 | 0.00 KM |
| Maple Grove | £ 302,500 | 0 | 0.00 KM |
Nearby Transport
| Name | NLC | TLC | Distance |
|---|---|---|---|
| Selby | 8201 | SBY | 5.43 KM |
| Hensall | 8129 | HEL | 5.93 KM |
| Whitley Bridge | 8130 | WBD | 8.56 KM |
Nearby Listings
| Address | Price | Type | Score | Distance |
|---|---|---|---|---|
| Park Lane, Burn, Selby | £ 400,000 | BUY | 7 / 10 | 0.00 KM |
| Main Road, Burn, Selby | £ 500,000 | BUY | 7 / 10 | 0.08 KM |
| Park Lane, Burn, Selby | £ 280,000 | BUY | Unknown | 0.09 KM |
| Plot 1, Snowbird Close, Main Road, Burn, YO8 8LL | £ 595,000 | BUY | 7 / 10 | 0.15 KM |
| Plot 3, Snowbird Close, Main Road, Burn, YO8 8LL | £ 395,000 | BUY | 6 / 10 | 0.15 KM |
Nearby Properties
| Address | Price | Distance |
|---|---|---|
| 18 Park Lane | £ 119,000 | 0.04 KM |
| 6 Park Lane | £ 225,000 | 0.04 KM |
| 10 Park Lane | £ 375,000 | 0.04 KM |
| 3 Park Lane | £ 162,500 | 0.04 KM |
| Chatsworth | £ 200,000 | 0.04 KM |