Whites Lane, Great Torrington, Devon, EX38
By Webbers Property Services
£ 210,000
Reviews
3 out of 5 stars
Webbers Property Services says ..
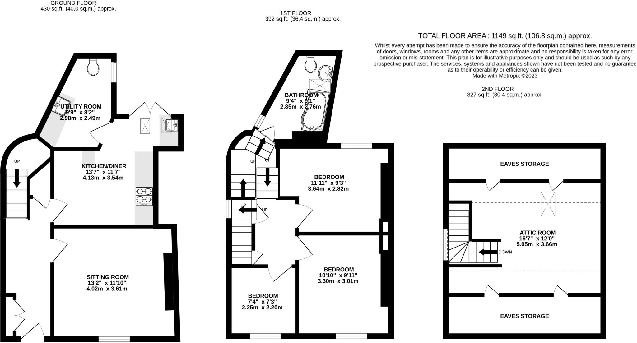
This generous 3 bedroom townhouse makes a brilliant family home a short walk from the town centre of Great Torrington. The low maintenance and proximity to amenities make this a perfect investments or home for first time buyers and retirees alike. Call now to avoid disapointment! EPC: D
Property Oracle says ..
This three-bedroom terraced house in Great Torrington, Devon, is listed at £210,000. The property appears to be in good condition based on the provided images, with a modern kitchen and recently updated bathroom. While the square footage and plot size are not provided, the property benefits from a convenient location near several schools, including Great Torrington Bluecoat Church of England Primary School and Great Torrington School, both rated as “Good” by Ofsted. The average house price in the area is significantly higher at £399,528, suggesting that this property may represent good value for money, although further information on the property size would be needed to confirm this. The surrounding area shows a range of property prices, with some comparable terraced houses listed for slightly more or less than the asking price. The lack of information regarding the plot size makes it difficult to accurately assess the land aspect of the property.
Therefore, we give this property 6 / 10. *Disclaimer: This is our option and does constitute a recommendation or financial advice. Do your own research. *
- Price
- 7
- Condition
- 8
- Location
- 7
- Land
- 3
- Bedrooms
- 3
- Bathrooms
- 1
- Sqft (est)
- 796.00
- Lot (est)
- 1,149.00
The heatmap indicates the level of crime in the area. The color of the heatmap indicates the crime severity and recency.
Metrics Year-on-Year
- Average area value
- 283,167.00 £Increased by 7.70 %
- Est sale value
- 278,600.00 £Increased by 33.59 %
- Average area rental value
- 723.00 £/moIncreased by 8.72 %
- Est letting value
- 0.00 £/mo
- Est rental Yield
- 3.06 %Increased by 0.66 %
- Crime Rate
- 47.00 %Unchanged by 0.00 %
Agent Activity
Webbers Property Services created the listing.
Nearby Schools
| Name | Type | Ofsted | Distance |
|---|---|---|---|
| Bluecoat Children'S Centre | Children's Centre | 1.02 KM | |
| Great Torrington Bluecoat Church Of England Primary School | Voluntary Controlled School | Good | 1.02 KM |
| Great Torrington School | Academy Converter | Good | 1.36 KM |
| Monkleigh Primary School | Community School | Good | 6.03 KM |
| Marland School | Foundation Special School | Good | 6.06 KM |
Images
Nearby Streets
| Name | Average Price | Average Sqft | Distance |
|---|---|---|---|
| White's Lane | £ 290,000 | 0 | 0.00 KM |
| Church Lane | £ 267,500 | 0 | 0.00 KM |
| Villa Road | £ 177,500 | 0 | 0.00 KM |
| Fore Street | £ 0 | 0 | 0.00 KM |
| Torrington Pannier Market | £ 475,000 | 0 | 0.00 KM |
Nearby Listings
| Address | Price | Type | Score | Distance |
|---|---|---|---|---|
| Whites Lane, Great Torrington, Devon, EX38 | £ 210,000 | BUY | 6 / 10 | 0.00 KM |
| Whites Lane, Great Torrington, Devon, EX38 | £ 140,750 | BUY | 6 / 10 | 0.04 KM |
| Whites Lane, Great Torrington, Devon, EX38 | £ 201,000 | BUY | 6 / 10 | 0.04 KM |
| Whites Lane, Great Torrington, Devon, EX38 | £ 300,000 | BUY | 6 / 10 | 0.04 KM |
| New Street, Torrington, Devon, EX38 | £ 225,000 | BUY | 7 / 10 | 0.06 KM |
Nearby Properties
| Address | Price | Distance |
|---|---|---|
| 3 Alice Mews | £ 172,000 | 0.02 KM |
| 3 Bluecoat Villas | £ 187,500 | 0.05 KM |
| 2 Bluecoat Villas | £ 280,000 | 0.05 KM |
| 8 Bluecoat Villas | £ 245,000 | 0.05 KM |
| 13 Bluecoat Villas | £ 214,000 | 0.05 KM |