James Du Pavey says ..
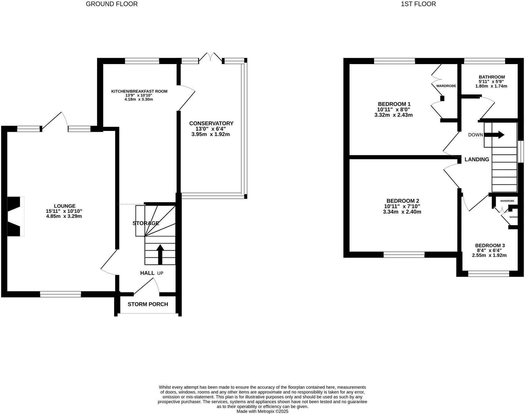
Charming 3-bed semi-detached in Nantwich near Brine Leas Academy. Spacious lounge, open plan kitchen, private garden. No chain.
Property Oracle says ..
Therefore, we give this property 7 / 10. *Disclaimer: This is our option and does constitute a recommendation or financial advice. Do your own research. *
- Price
- 8
- Condition
- 7
- Location
- 8
- Land
- 7
- Bedrooms
- 3
- Bathrooms
- 1
- Sqft (est)
- 661.23
The heatmap indicates the level of crime in the area. The color of the heatmap indicates the crime severity and recency.
Metrics Year-on-Year
- Average area value
- 399,818.00 £Increased by 25.26 %
- Est sale value
- 300,198.42 £Increased by 52.86 %
- Average area rental value
- 1,100.00 £/moIncreased by 9.78 %
- Est letting value
- 661.23 £/mo
- Est rental Yield
- 3.30 %Decreased by 12.47 %
- Crime Rate
- 12.00 %Unchanged by 0.00 %
from 319,179.00 £
from 196,385.31 £
from 1,002.00 £/mo
from 0.00 £/mo
from 3.77 %
from 12.00 %
Agent Activity
James Du Pavey created the listing.
Nearby Schools
| Name | Type | Ofsted | Distance |
|---|---|---|---|
| Brine Leas School | Academy Converter | Good | 0.07 KM |
| Weaver Primary School | Community School | Good | 0.33 KM |
| St Anne'S Catholic Primary School | Voluntary Aided School | Good | 0.70 KM |
| Pear Tree Primary School | Academy Converter | Good | 0.94 KM |
| Stapeley Broad Lane Cofe Primary School | Academy Converter | Outstanding | 1.50 KM |
Images
Nearby Streets
| Name | Average Price | Average Sqft | Distance |
|---|---|---|---|
| Saint Albans Drive | £ 0 | 0 | 0.00 KM |
| Parkfield Drive | £ 0 | 0 | 0.00 KM |
| Rookery Drive | £ 675,000 | 0 | 0.00 KM |
| Blankney Avenue | £ 0 | 0 | 0.00 KM |
| Perch Avenue | £ 0 | 0 | 0.00 KM |
Nearby Transport
| Name | NLC | TLC | Distance |
|---|---|---|---|
| Nantwich | 1247 | NAN | 0.89 KM |
| Crewe | 1243 | CRE | 9.68 KM |
| Wrenbury | 1350 | WRE | 9.97 KM |
Nearby Listings
| Address | Price | Type | Score | Distance |
|---|---|---|---|---|
| The Coppice, Nantwich, CW5 | £ 280,000 | BUY | 7 / 10 | 0.00 KM |
| 4 The Coppice, Nantwich, Cheshire, CW5 7DU | £ 220,000 | BUY | 7 / 10 | 0.00 KM |
| Audlem Road, Nantwich | £ 350,000 | BUY | 7 / 10 | 0.08 KM |
| Audlem Road, Nantwich, CW5 | £ 310,000 | BUY | 8 / 10 | 0.11 KM |
| Burnell Close, Nantwich, CW5 | £ 385,000 | BUY | 8 / 10 | 0.13 KM |
Nearby Properties
| Address | Price | Distance |
|---|---|---|
| 5 Wrens Close | £ 320,000 | 0.13 KM |
| 3 Wrens Close | £ 227,500 | 0.13 KM |
| 2 Wrens Close | £ 240,000 | 0.13 KM |
| 45 Audlem Road | £ 295,000 | 0.14 KM |
| 33 Audlem Road | £ 525,000 | 0.14 KM |